|
|
|
| Larry Stein Oklahoma County Assessor (405) 713-1200 - Public Access System |
|
|
|
|
|
|
| Real Property Display - Screen Produced 2/27/2026 1:42:39 AM | ||||
|---|---|---|---|---|
| Account: R257044050 | Type: Residential | Location: |
23555 N MACARTHUR BLVD |
|
| Building Name/Occupant: |
|
UNINCORPORATED |
||
| Owner Name 1: | MARAVILLA JOHNNY GRILLO |
Parcel PIN#: |
4814-25-704-4050 |
|
| Owner Name 2: | MIRANDA ALYSSA CHRISTINE | 1/4 section #: |
4814 |
|
| Owner Name 3: | Parent Acct: |
4814-25-704-4070 |
||
| Billing Address: | 23555 N MACARTHUR BLVD | Tax District: |
|
|
| City, State, Zip | EDMOND, OK 73025-9495 | School System: |
Deer Creek #6 |
|
|
Country: (If noted) |
Land Size: |
2.3800 Acres |
||
|
Land Value: 78,355 |
|
|||
|
Sect 4-T14N-R4W Qtr SE |
DEER CREEK TOWNSHIP
Block
000
Lot
000
|
|||
| Full Legal Description: DEER CREEK TOWNSHIP PT SE4 SEC 4 14N 4W BEING S253.34FT OF N760FT OF E/2 SE4 SE4 EX E250FT |
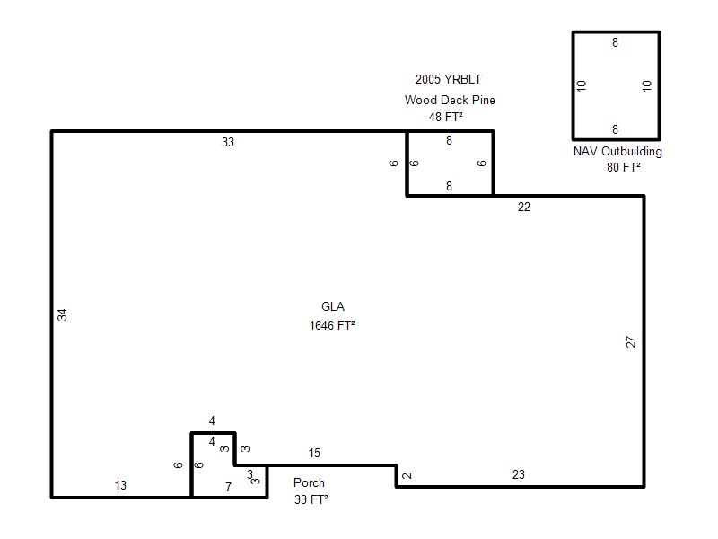
| Photo & Sketch (if available) | Comp Sales (ordered by relevancy) |
|
||||||||||||||||||
|
||||||||||||||||||||
| Value History (*The County Treasurer 405-713-1300 posts & collects actual tax amounts. Contact information HERE) | |||||||||||||
|---|---|---|---|---|---|---|---|---|---|---|---|---|---|
| Year | Market Value | Taxable Mkt Value | Gross Assessed | Exemption | Net Assessed | Millage | Est. Tax | Tax Savings | |||||
|
2025 |
297,500 |
297,500 |
32,725 |
0 |
32,725 |
114.35 |
$3,742 |
$0 |
|||||
|
2024 |
292,500 |
202,860 |
22,314 |
0 |
22,314 |
116.19 |
$2,593 |
$1,146 |
|||||
|
2023 |
276,000 |
193,200 |
21,252 |
0 |
21,252 |
116.77 |
$2,482 |
$1,064 |
|||||
|
2022 |
184,000 |
184,000 |
20,240 |
0 |
20,240 |
114.81 |
$2,324 |
$0 |
|||||
|
2021 |
213,000 |
211,266 |
23,238 |
0 |
23,238 |
112.90 |
$2,624 |
$22 |
|||||
| Property Account Status/Adjustments/Exemptions | ||
|---|---|---|
| Account # | Exemption Description | Amount |
|
R257044050 |
5% Capped Account |
0 |
| Property Deed Transaction History (Recorded in the County Clerk's Office) | |||||||
|---|---|---|---|---|---|---|---|
| Date | Type | Book | Page | Price | Grantor | Grantee | |
|
4/25/2025 |
|
Deeds |
$0 |
MARAVILLA JOHNNY GRILLO |
MARAVILLA JOHNNY GRILLO |
||
|
5/21/2024 |
|
Deeds |
$264,000 |
MARAVILLA JOHNNY GRILLA |
MARAVILLA JOHNNY GRILLO |
||
|
7/16/2021 |
|
Deeds |
$174,500 |
MUR PROPERTIES LLC |
TAYLOR JAMES C & TRACY |
||
|
1/26/2005 |
|
Hmstd Off & |
$0 |
MUR PROPERTIES LLC |
MUR PROPERTIES LLC |
||
| Last Mailed Notice of Value (N.O.V.) Information/History | ||||||||
|---|---|---|---|---|---|---|---|---|
| Year | Date | Market Value | Taxable Market Value | Gross Assessed | Exemption | Net Assessed | ||
|
2026 |
02/06/2026 |
306,000 |
306,000 |
33,660 |
0 |
33,660 |
||
|
2025 |
01/31/2025 |
297,500 |
297,500 |
32,725 |
0 |
32,725 |
||
|
2024 |
01/22/2024 |
292,500 |
202,860 |
22,314 |
0 |
22,314 |
||
|
2023 |
01/23/2023 |
276,000 |
193,200 |
21,252 |
0 |
21,252 |
||
|
2021 |
02/24/2021 |
213,000 |
211,266 |
23,239 |
0 |
23,239 |
||
| Property Building Permit History | ||||||
|---|---|---|---|---|---|---|
| Issued | Permit # | Provided by | Bldg # | Description | Est Construction Cost | Status |
|
7/30/2007 |
10341666 |
COUNTY |
1 |
Main Dwellin |
30,000 |
Inactive |
|
2/1/2005 |
10303052 |
COUNTY |
1 |
Main Dwellin |
30,000 |
Inactive |
| Click button on building number to access detailed information: | ||||||
|---|---|---|---|---|---|---|
| Bldg # | Vacant/Improved Land | Bldg Description | Year Built | SqFt | # Stories | |
|
1 |
Improved |
Ranch 1 Story |
1950 |
1,646 |
1 Stories |
|