Larry Stein Oklahoma County Assessor (405) 713-1200 - Public Access System
Home Contact Us Guest Book Map Search New Search
Real Property Display - Screen Produced   4/25/2026 8:11:31 PM 
Account: R257172995  Type: Residential

  

Location:

7401 NW 215TH ST

Building Name/Occupant:

 

UNINCORPORATED

Owner Name 1:  PRICE JEFF A TRS

Parcel PIN#:

4865-25-717-2995

Owner Name 2:  PRICE JEFF A FAMILY TRUST 1/4 section #:

4865

Owner Name 3:   PRICE APRIL Parent Acct:

 

Billing Address:  7401 NW 215TH ST Tax District:

City, State, Zip  EDMOND, OK  73012-9505 School System:

Deer Creek #6

Country: (If noted)

  

Land Size:

5.0100  Acres

Personal Property

Land Value: 87,675 

Treasurer:

Sect 17-T14N-R4W Qtr NE

 DEER CREEK TOWNSHIP   Block 000  Lot 000   Subdivision Sales
 Full Legal Description:  DEER CREEK TOWNSHIP PT E 1/2 OF SEC 17 14N 4W BEG 1977.04FT S & 1651.99FT W OF NE/C NE4 TH N660.92FT W330.38FT S661.30FT E330.40FT TO BEG CONT 5.01ACRS MORE OR LESS KNOWN AS TR 12

NOTE:  The following sales may or may not be used to determine Fair Market Value

Photo & Sketch (if available) Sales  Sales Report

 21700 N ROCKWELL AVE UNINCORPORATED, OK

07/25/2025

 $775,000 

 7320 NW 220TH ST EDMOND, OK

08/08/2024

 $250,000 

 22830 N ROCKWELL AVE UNINCORPORATED, OK

11/10/2025

 $665,000 

 7475 NW 215TH ST UNINCORPORATED, OK

04/16/2025

 $450,000 

 21700 N ROCKWELL AVE UNINCORPORATED, OK

04/08/2022

 $427,500 

 7325 NW 215TH ST UNINCORPORATED, OK

05/30/2024

 $398,000 

Value History  (*The County Treasurer 405-713-1300 posts & collects actual tax amounts.  Contact information  HERE)
Year Market Value Taxable Mkt Value Gross Assessed Exemption Net Assessed Millage Est. Tax Tax Savings

2026

649,000 

420,908 

46,299 

1,000 

45,299 

114.35 

$5,180 

$2,983 

2025

645,500 

408,649 

44,951 

1,000 

43,951 

114.35 

$5,026 

$3,094 

2024

613,000 

396,747 

43,642 

1,000 

42,642 

116.19 

$4,955 

$2,880 

[1/10]
Property Account Status/Adjustments/Exemptions
Account # Exemption Description Amount

R257172995

Homestead

1,000 

R257172995

3% Cap Homestead

Property Deed Transaction History   (Recorded in the County Clerk's Office)
Date Type Book Page Price Grantor Grantee

7/18/2024

Deeds

15813

1156

 $0 

PRICE JEFF A TRS

PRICE JEFF A TRS

3/21/2022

Deeds

15118

194

 $0 

PRICE JEFFERY ALAN

PRICE JEFF A TRS

7/8/2016

Deeds

13176

342

 $0 

PRICE JEFFERY ALAN & JULIE M

PRICE JEFFERY ALAN

[1/3]
Last Mailed Notice of Value (N.O.V.) Information/History
Year Date Market Value Taxable Market Value Gross Assessed Exemption Net Assessed

2026

02/06/2026

649,000 

420,908 

46,299 

1,000 

45,299 

2025

01/31/2025

645,500 

408,649 

44,951 

1,000 

43,951 

2024

01/22/2024

613,000 

396,747 

43,642 

1,000 

42,642 

[1/5]
Property Building Permit History
Issued Permit # Provided by Bldg # Description Est Construction Cost Status
No Building Permit records returned.
Click button below to access detailed information and additional property photos:
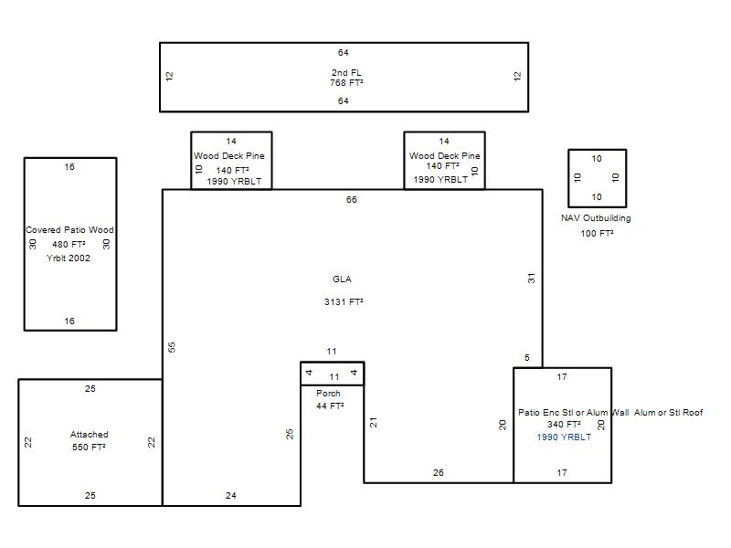
  Bldg # Vacant/Improved Land Bldg Description Year Built SqFt # Stories

Click

1

Improved

1½ Story Fin

1978

3,899 

1.5 Stories