|
|
|
| Larry Stein Oklahoma County Assessor (405) 713-1200 - Public Access System |
|
|
|
|
|
|
| Real Property Display - Screen Produced 2/27/2026 1:42:39 AM | ||||
|---|---|---|---|---|
| Account: R257173065 | Type: Residential | Location: |
7325 NW 215TH ST |
|
| Building Name/Occupant: |
|
UNINCORPORATED |
||
| Owner Name 1: | PHAM DAVID T |
Parcel PIN#: |
4865-25-717-3065 |
|
| Owner Name 2: | 1/4 section #: |
4865 |
||
| Owner Name 3: | Parent Acct: |
|
||
| Billing Address: | 7325 NW 215TH ST | Tax District: |
|
|
| City, State, Zip | EDMOND, OK 73012-9503 | School System: |
Deer Creek #6 |
|
|
Country: (If noted) |
Land Size: |
5.0100 Acres |
||
|
Land Value: 87,675 |
|
|||
|
Sect 17-T14N-R4W Qtr NE |
DEER CREEK TOWNSHIP
Block
000
Lot
000
|
|||
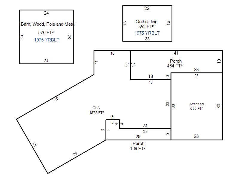
| Full Legal Description: DEER CREEK TOWNSHIP 000 000 UN PT NE4 SEC 17 14N 4W COMM 1977.04FT S & 1321.59FT W OF NE/C OF NE4 FOR PT OF BEG N660.53FT W330.38FT S660.92FT E330.40FT TO PT OF BEG KNOWN AS TR 11 CONT 5.01ACRS MORE OR LESS |
| Photo & Sketch (if available) | Comp Sales (ordered by relevancy) |
|
||||||||||||||||||
|
||||||||||||||||||||
| Value History (*The County Treasurer 405-713-1300 posts & collects actual tax amounts. Contact information HERE) | |||||||||||||
|---|---|---|---|---|---|---|---|---|---|---|---|---|---|
| Year | Market Value | Taxable Mkt Value | Gross Assessed | Exemption | Net Assessed | Millage | Est. Tax | Tax Savings | |||||
|
2025 |
379,500 |
379,500 |
41,745 |
0 |
41,745 |
114.35 |
$4,774 |
$0 |
|||||
|
2024 |
367,500 |
251,645 |
27,680 |
0 |
27,680 |
116.19 |
$3,216 |
$1,481 |
|||||
|
2023 |
341,000 |
239,662 |
26,362 |
1,000 |
25,362 |
116.77 |
$2,962 |
$1,418 |
|||||
|
2022 |
304,000 |
232,682 |
25,594 |
1,000 |
24,594 |
114.81 |
$2,824 |
$1,015 |
|||||
|
2021 |
263,500 |
225,905 |
24,848 |
1,000 |
23,848 |
112.90 |
$2,693 |
$580 |
|||||
| Property Account Status/Adjustments/Exemptions | ||
|---|---|---|
| Account # | Exemption Description | Amount |
|
R257173065 |
5% Capped Account |
0 |
| Property Deed Transaction History (Recorded in the County Clerk's Office) | |||||||
|---|---|---|---|---|---|---|---|
| Date | Type | Book | Page | Price | Grantor | Grantee | |
|
5/30/2024 |
|
Deeds |
$398,000 |
BOWLES MICHAEL J TRS |
PHAM DAVID T |
||
|
6/8/2009 |
|
Deeds |
$0 |
BOWLES MERRILL W |
BOWLES MERRILL WEBSTER TRS |
||
|
8/19/1991 |
|
Historical |
$0 |
BOWLES MERRILL W & CAROL J |
BOWLES MERRILL W |
||
|
5/1/1975 |
|
Historical |
$0 |
|
BOWLES MERRILL W & CAROL J |
||
| Last Mailed Notice of Value (N.O.V.) Information/History | ||||||||
|---|---|---|---|---|---|---|---|---|
| Year | Date | Market Value | Taxable Market Value | Gross Assessed | Exemption | Net Assessed | ||
|
2025 |
01/31/2025 |
379,500 |
379,500 |
41,745 |
0 |
41,745 |
||
|
2024 |
01/22/2024 |
367,500 |
246,851 |
27,152 |
1,000 |
26,152 |
||
|
2024 |
03/01/2024 |
367,500 |
251,645 |
27,680 |
0 |
27,680 |
||
|
2023 |
01/23/2023 |
341,000 |
239,662 |
26,362 |
1,000 |
25,362 |
||
|
2022 |
02/22/2022 |
304,000 |
232,682 |
25,593 |
1,000 |
24,593 |
||
| Property Building Permit History | |||||||||||
|---|---|---|---|---|---|---|---|---|---|---|---|
| Issued | Permit # | Provided by | Bldg # | Description | Est Construction Cost | Status | |||||
| No Building Permit records returned. | |||||||||||
| Click button on building number to access detailed information: | ||||||
|---|---|---|---|---|---|---|
| Bldg # | Vacant/Improved Land | Bldg Description | Year Built | SqFt | # Stories | |
|
1 |
Improved |
Ranch 1 Story |
1975 |
1,872 |
1 Stories |
|