|
|
|
| Larry Stein Oklahoma County Assessor (405) 713-1200 - Public Access System |
|
|
|
|
|
|
| Real Property Display - Screen Produced 3/27/2026 12:34:40 PM | ||||
|---|---|---|---|---|
| Account: R208141680 | Type: Residential | Location: |
3005 NW 191ST ST |
|
| Building Name/Occupant: |
|
OKLAHOMA CITY |
||
| Owner Name 1: | SUTHERLAND CAMERON & TARYN |
Parcel PIN#: |
4897-20-814-1680 |
|
| Owner Name 2: | 1/4 section #: |
4897 |
||
| Owner Name 3: | Parent Acct: |
4897-16-857-4100 |
||
| Billing Address: | 3005 NW 191ST ST | Tax District: |
|
|
| City, State, Zip | EDMOND, OK 73012-9783 | School System: |
Deer Creek #6 |
|
|
Country: (If noted) |
Land Size: |
0.1736 Acres |
||
|
Land Value: 48,031 |
|
|||
|
Sect 25-T14N-R4W Qtr NE |
THE GROVE PH I
Block
002
Lot
013
|
|||
| Full Legal Description: THE GROVE PH I 002 013 |
| Photo & Sketch (if available) | Comp Sales (ordered by relevancy) |
|
||||||||||||||||||
|
||||||||||||||||||||
| Value History (*The County Treasurer 405-713-1300 posts & collects actual tax amounts. Contact information HERE) | |||||||||||||
|---|---|---|---|---|---|---|---|---|---|---|---|---|---|
| Year | Market Value | Taxable Mkt Value | Gross Assessed | Exemption | Net Assessed | Millage | Est. Tax | Tax Savings | |||||
|
2026 |
297,000 |
297,000 |
32,670 |
0 |
32,670 |
129.51 |
$4,231 |
$0 |
|||||
|
2025 |
299,500 |
257,154 |
28,285 |
0 |
28,285 |
129.51 |
$3,663 |
$603 |
|||||
|
2024 |
294,000 |
244,909 |
26,939 |
0 |
26,939 |
131.12 |
$3,532 |
$708 |
|||||
|
2023 |
283,500 |
233,247 |
25,656 |
0 |
25,656 |
131.55 |
$3,375 |
$727 |
|||||
|
2022 |
246,000 |
222,140 |
24,434 |
0 |
24,434 |
130.27 |
$3,183 |
$342 |
|||||
| Property Account Status/Adjustments/Exemptions | ||||||
|---|---|---|---|---|---|---|
| Account # | Exemption Description | Amount | ||||
| No adjustment/exemption records returned. | ||||||
| Property Deed Transaction History (Recorded in the County Clerk's Office) | ||||||||||
|---|---|---|---|---|---|---|---|---|---|---|
| Date | Type | Book | Page | Price | Grantor | Grantee | ||||
|
7/15/2025 |
|
Deeds |
$280,000 |
SUTHERLAND SCOTT M TRS |
SUTHERLAND CAMERON & TARYN |
|||||
|
4/6/2018 |
|
Hmstd Off & |
$0 |
SUTHERLAND SCOTT M TRUST |
SUTHERLAND SCOTT M TRS |
|||||
|
5/28/2014 |
|
Deeds |
$189,000 |
STEELE JAMES B & ANGELA D CO TRS STEELE LIVING TRUST |
SUTHERLAND SCOTT M TRUST |
|||||
|
8/24/2012 |
|
Deeds |
$182,500 |
DENNISON DANIEL |
STEELE JAMES B & ANGELA D CO TRS STEELE LIVING TRUST |
|||||
|
6/4/2010 |
|
Deeds |
$179,500 |
BRASS BRICK HOMES III LLC |
DENNISON DANIEL |
|||||
| Last Mailed Notice of Value (N.O.V.) Information/History | ||||||||
|---|---|---|---|---|---|---|---|---|
| Year | Date | Market Value | Taxable Market Value | Gross Assessed | Exemption | Net Assessed | ||
|
2026 |
02/06/2026 |
297,000 |
297,000 |
32,670 |
0 |
32,670 |
||
|
2025 |
01/31/2025 |
299,500 |
257,154 |
28,285 |
0 |
28,285 |
||
|
2024 |
01/22/2024 |
294,000 |
244,909 |
26,939 |
0 |
26,939 |
||
|
2023 |
01/23/2023 |
283,500 |
233,247 |
25,656 |
0 |
25,656 |
||
|
2022 |
02/22/2022 |
246,000 |
222,140 |
24,434 |
0 |
24,434 |
||
| Property Building Permit History | ||||||
|---|---|---|---|---|---|---|
| Issued | Permit # | Provided by | Bldg # | Description | Est Construction Cost | Status |
|
2/19/2010 |
10404095 |
OKLAHOMA CITY |
1 |
Main Dwellin |
173,000 |
Inactive |
| Click button on building number to access detailed information: | ||||||
|---|---|---|---|---|---|---|
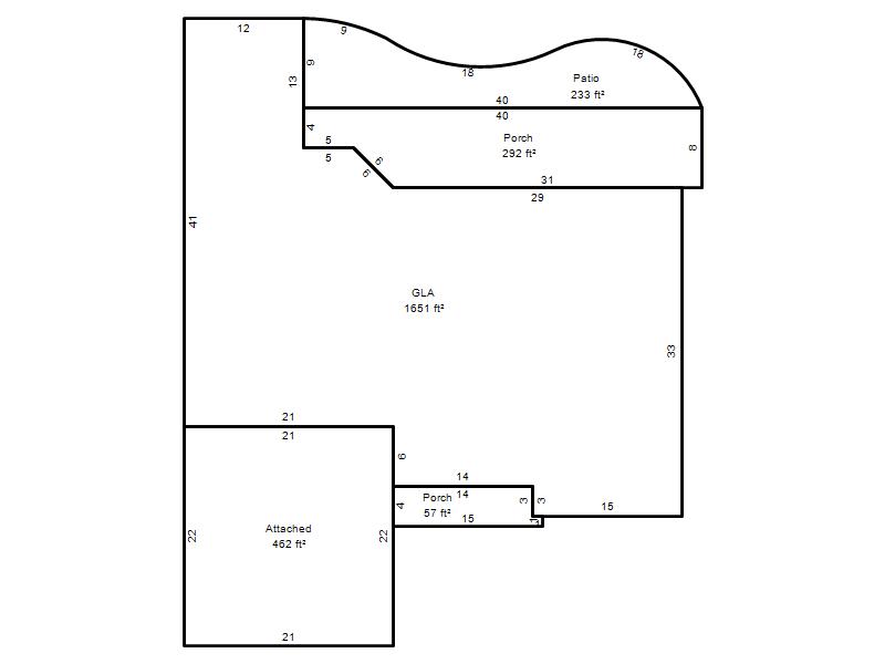
| Bldg # | Vacant/Improved Land | Bldg Description | Year Built | SqFt | # Stories | |
|
1 |
Improved |
Ranch 1 Story |
2010 |
1,651 |
1 Stories |
|