|
|
|
| Larry Stein Oklahoma County Assessor (405) 713-1200 - Public Access System |
|
|
|
|
|
|
| Real Property Display - Screen Produced 3/18/2026 6:24:30 PM | ||||
|---|---|---|---|---|
| Account: R194898015 | Type: Residential | Location: |
334 SHAPARD DR |
|
| Building Name/Occupant: |
|
CHOCTAW |
||
| Owner Name 1: | BLOCK DAVID R ETAL |
Parcel PIN#: |
2330-19-489-8015 |
|
| Owner Name 2: | BLOCK LINDA P | 1/4 section #: |
2330 |
|
| Owner Name 3: | BLOCK JASON P | Parent Acct: |
2330-19-489-8010 |
|
| Billing Address: | 334 SHAPARD DR | Tax District: |
|
|
| City, State, Zip | CHOCTAW, OK 73020 | School System: |
Choctaw #4 |
|
|
Country: (If noted) |
Land Size: |
2.0000 Acres |
||
|
Land Value: 63,132 |
|
|||
|
Sect 33-T12N-R1W Qtr SE |
UNPLTD PT SEC 33 12N 1W
Block
000
Lot
000
|
|||
| Full Legal Description: UNPLTD PT SEC 33 12N 1W 000 000 PT SE4 SEC 33 12N 1W BEG 989.75FT N & 30FT E OF SW/C SE4 TH N164.96FT E528.14FT S164.96FT W528.14FT TO BEG CONT 2ACRS MORE OR LESS AKA TR A |
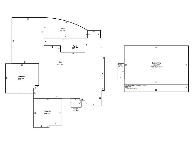
| Photo & Sketch (if available) | Comp Sales (ordered by relevancy) |
|
||||||||||||||||||
|
||||||||||||||||||||
| Value History (*The County Treasurer 405-713-1300 posts & collects actual tax amounts. Contact information HERE) | |||||||||||||
|---|---|---|---|---|---|---|---|---|---|---|---|---|---|
| Year | Market Value | Taxable Mkt Value | Gross Assessed | Exemption | Net Assessed | Millage | Est. Tax | Tax Savings | |||||
|
2025 |
603,000 |
450,956 |
49,604 |
1,000 |
48,604 |
117.21 |
$5,697 |
$2,078 |
|||||
|
2024 |
598,500 |
437,822 |
48,159 |
1,000 |
47,159 |
116.35 |
$5,487 |
$2,173 |
|||||
|
2023 |
539,000 |
425,070 |
46,756 |
1,000 |
45,756 |
118.06 |
$5,402 |
$1,598 |
|||||
|
2022 |
480,000 |
412,690 |
45,395 |
1,000 |
44,395 |
116.14 |
$5,156 |
$976 |
|||||
|
2021 |
419,000 |
400,670 |
44,073 |
1,000 |
43,073 |
116.17 |
$5,004 |
$350 |
|||||
| Property Account Status/Adjustments/Exemptions | ||
|---|---|---|
| Account # | Exemption Description | Amount |
|
R194898015 |
3% Cap Homestead |
0 |
|
R194898015 |
Homestead |
1,000 |
| Property Deed Transaction History (Recorded in the County Clerk's Office) | ||||||||||
|---|---|---|---|---|---|---|---|---|---|---|
| Date | Type | Book | Page | Price | Grantor | Grantee | ||||
|
11/12/2020 |
|
Deeds |
$0 |
BLOCK DAVID R & LINDA P |
BLOCK DAVID R ETAL |
|||||
|
12/8/2017 |
|
Deeds |
$0 |
SWM & SONS INC |
BLOCK DAVID R & LINDA P |
|||||
|
4/17/2017 |
|
Deeds |
$52,000 |
TERRAHOMA INC |
BLOCK DAVID R & LINDA P |
|||||
|
11/18/2015 |
|
Deeds |
$0 |
COOPER JAMES P & JENNY L TRS COOPER FAMILY TRUST |
POYNER ADRION G & GAIL A |
|||||
|
11/18/2015 |
|
Deeds |
$45,000 |
POYNER ADRION G & GAIL A |
TERRAHOMA INC |
|||||
| Last Mailed Notice of Value (N.O.V.) Information/History | ||||||||
|---|---|---|---|---|---|---|---|---|
| Year | Date | Market Value | Taxable Market Value | Gross Assessed | Exemption | Net Assessed | ||
|
2026 |
02/06/2026 |
609,000 |
464,484 |
51,093 |
1,000 |
50,093 |
||
|
2025 |
01/31/2025 |
603,000 |
450,956 |
49,604 |
1,000 |
48,604 |
||
|
2024 |
01/22/2024 |
598,500 |
437,822 |
48,159 |
1,000 |
47,159 |
||
|
2023 |
01/23/2023 |
539,000 |
425,070 |
46,756 |
1,000 |
45,756 |
||
|
2022 |
02/22/2022 |
480,000 |
412,690 |
45,395 |
1,000 |
44,395 |
||
| Property Building Permit History | ||||||
|---|---|---|---|---|---|---|
| Issued | Permit # | Provided by | Bldg # | Description | Est Construction Cost | Status |
|
12/11/2018 |
|
|
1 |
Add On |
1,600 |
Inactive |
|
9/5/2018 |
|
|
1 |
Storage Buil |
30,000 |
Inactive |
|
3/3/2017 |
10494100 |
CHOCTAW |
1 |
Main Dwellin |
489,940 |
Inactive |
| Click button on building number to access detailed information: | ||||||
|---|---|---|---|---|---|---|
| Bldg # | Vacant/Improved Land | Bldg Description | Year Built | SqFt | # Stories | |
|
1 |
Improved |
Ranch 1 Story |
2017 |
3,087 |
1 Stories |
|