Larry Stein Oklahoma County Assessor (405) 713-1200 - Public Access System
Home Contact Us Guest Book Map Search New Search
Real Property Display - Screen Produced   4/27/2026 2:28:07 PM 
Account: R267033500  Type: Residential

  

Location:

1401 S DOBBS RD

Building Name/Occupant:

 

UNINCORPORATED

Owner Name 1:  MCCORD MICHAEL

Parcel PIN#:

1010-26-703-3500

Owner Name 2:    1/4 section #:

1010

Owner Name 3:    Parent Acct:

 

Billing Address:  1401 S DOBBS RD Tax District:

City, State, Zip  HARRAH, OK  73045 School System:

Harrah #7

Country: (If noted)

  

Land Size:

8.1800  Acres

Personal Property

Land Value: 117,600 

Treasurer:

Sect 3-T11N-R1E Qtr SE

 POTTAWATOMIE TOWNSHIP   Block 000  Lot 000   Subdivision Sales
 Full Legal Description:  POTTAWATOMIE TOWNSHIP PT SE4 SEC 3 11N 1E BEG 2112FT E & 660FT N OF SW/C OF SE4 TH E540FT N660FT W540FT S660FT TO BEG

NOTE:  The following sales may or may not be used to determine Fair Market Value

Photo & Sketch (if available) Sales  Sales Report

 17703 SE 29TH ST UNINCORPORATED, OK

08/08/2024

 $245,000 

 1740 S HARRAH RD UNINCORPORATED, OK

05/22/2025

 $240,000 

 21434 SE 15TH ST UNINCORPORATED, OK

03/26/2025

 $300,000 

 19806 AARON DR UNINCORPORATED, OK

02/28/2025

 $240,000 

 1249 WOODCREST DR UNINCORPORATED, OK

12/11/2024

 $455,000 

 2507 FERGUSON DR UNINCORPORATED, OK

07/18/2025

 $352,500 

Value History  (*The County Treasurer 405-713-1300 posts & collects actual tax amounts.  Contact information  HERE)
Year Market Value Taxable Mkt Value Gross Assessed Exemption Net Assessed Millage Est. Tax Tax Savings

2026

237,000 

227,298 

25,002 

25,002 

107.54 

$2,689 

$115 

2025

252,500 

216,475 

23,811 

23,811 

107.54 

$2,561 

$426 

2024

254,000 

206,167 

22,677 

22,677 

110.62 

$2,509 

$582 

[1/10]
Property Account Status/Adjustments/Exemptions
Account # Exemption Description Amount

R267033500

5% Capped Account

Property Deed Transaction History   (Recorded in the County Clerk's Office)
Date Type Book Page Price Grantor Grantee

10/15/2019

Deeds

14161

878

 $195,000 

YOUNG JUDITH & WILLIE JOE

MCCORD MICHAEL

6/1/2009

Deeds

11112

1217

 $140,000 

KILLIAN JERALD W JR & LEIGH ANN

YOUNG JUDITH & WILLIE JOE

12/2/2005

Deeds

9946

1458

 $56,500 

VILLALOBOS JUAN F & JEANNE A

KILLIAN JERALD W JR & LEIGH ANN

[1/3]
Last Mailed Notice of Value (N.O.V.) Information/History
Year Date Market Value Taxable Market Value Gross Assessed Exemption Net Assessed

2026

02/06/2026

237,000 

227,298 

25,002 

25,002 

2025

01/31/2025

252,500 

216,475 

23,811 

23,811 

2024

01/22/2024

254,000 

206,167 

22,677 

22,677 

[1/3]
Property Building Permit History
Issued Permit # Provided by Bldg # Description Est Construction Cost Status

3/2/2006

10321079

COUNTY

1

Storage Buil

16,000 

Inactive

Click button below to access detailed information and additional property photos:
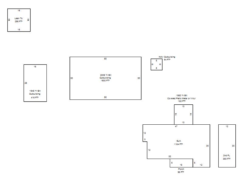
  Bldg # Vacant/Improved Land Bldg Description Year Built SqFt # Stories

Click

1

Improved

1½ Story Fin

1945

1,524 

1.5 Stories