|
|
|
| Larry Stein Oklahoma County Assessor (405) 713-1200 - Public Access System |
|
|
|
|
|
|
| Real Property Display - Screen Produced 3/12/2026 5:35:55 AM | ||||
|---|---|---|---|---|
| Account: R213491980 | Type: Residential | Location: |
20550 AUTUMN TRL |
|
| Building Name/Occupant: |
|
HARRAH |
||
| Owner Name 1: | KEENE JASON M & JENNIFER |
Parcel PIN#: |
1005-21-349-1980 |
|
| Owner Name 2: | 1/4 section #: |
1005 |
||
| Owner Name 3: | Parent Acct: |
1005-26-702-1040 |
||
| Billing Address: | 20550 AUTUMN TRL | Tax District: |
|
|
| City, State, Zip | HARRAH, OK 73045-8148 | School System: |
Harrah #7 |
|
|
Country: (If noted) |
Land Size: |
0.1500 Acres |
||
|
Land Value: 34,625 |
|
|||
|
Sect 2-T11N-R1E Qtr NE |
FALL CREEK PH 3
Block
005
Lot
007
|
|||
| Full Legal Description: FALL CREEK PH 3 BLK 005 LOT 007 |
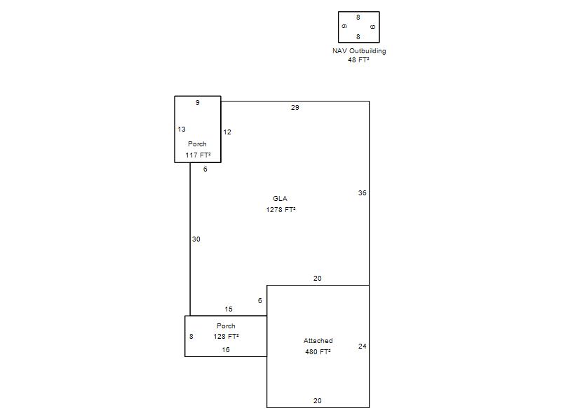
| Photo & Sketch (if available) | Comp Sales (ordered by relevancy) |
|
||||||||||||||||||
|
||||||||||||||||||||
| Value History (*The County Treasurer 405-713-1300 posts & collects actual tax amounts. Contact information HERE) | |||||||||||||
|---|---|---|---|---|---|---|---|---|---|---|---|---|---|
| Year | Market Value | Taxable Mkt Value | Gross Assessed | Exemption | Net Assessed | Millage | Est. Tax | Tax Savings | |||||
|
2025 |
213,000 |
213,000 |
23,430 |
0 |
23,430 |
107.54 |
$2,520 |
$0 |
|||||
|
2024 |
208,000 |
203,940 |
22,433 |
1,000 |
21,433 |
110.62 |
$2,371 |
$160 |
|||||
|
2023 |
198,000 |
198,000 |
21,780 |
0 |
21,780 |
97.88 |
$2,132 |
$0 |
|||||
|
2022 |
176,500 |
155,452 |
17,099 |
0 |
17,099 |
99.50 |
$1,701 |
$230 |
|||||
|
2021 |
155,500 |
148,050 |
16,285 |
0 |
16,285 |
99.52 |
$1,621 |
$82 |
|||||
| Property Account Status/Adjustments/Exemptions | ||
|---|---|---|
| Account # | Exemption Description | Amount |
|
R213491980 |
5% Capped Account |
0 |
| Property Deed Transaction History (Recorded in the County Clerk's Office) | |||||||
|---|---|---|---|---|---|---|---|
| Date | Type | Book | Page | Price | Grantor | Grantee | |
|
7/24/2024 |
|
Deeds |
$0 |
FAJARDO ELIASIB & YERUSI |
FAJARDO YERUSI |
||
|
7/17/2024 |
|
Deeds |
$225,000 |
FAJARDO YERUSI |
KEENE JASON M & JENNIFER |
||
|
9/16/2022 |
|
Deeds |
$205,000 |
SHAW SPENCER & KAYLEE |
FAJARDO ELIASIB & YERUSI |
||
|
11/11/2015 |
|
Deeds |
$134,500 |
HARRAH LAND FC LLC |
SHAW SPENCER & KAYLEE |
||
| Last Mailed Notice of Value (N.O.V.) Information/History | ||||||||
|---|---|---|---|---|---|---|---|---|
| Year | Date | Market Value | Taxable Market Value | Gross Assessed | Exemption | Net Assessed | ||
|
2026 |
02/06/2026 |
222,000 |
222,000 |
24,420 |
0 |
24,420 |
||
|
2025 |
01/31/2025 |
213,000 |
213,000 |
23,430 |
0 |
23,430 |
||
|
2024 |
01/22/2024 |
208,000 |
207,900 |
22,869 |
0 |
22,869 |
||
|
2023 |
01/23/2023 |
198,000 |
198,000 |
21,780 |
0 |
21,780 |
||
|
2022 |
02/22/2022 |
176,500 |
155,452 |
17,099 |
0 |
17,099 |
||
| Property Building Permit History | |||||||||||
|---|---|---|---|---|---|---|---|---|---|---|---|
| Issued | Permit # | Provided by | Bldg # | Description | Est Construction Cost | Status | |||||
| No Building Permit records returned. | |||||||||||
| Click button on building number to access detailed information: | ||||||
|---|---|---|---|---|---|---|
| Bldg # | Vacant/Improved Land | Bldg Description | Year Built | SqFt | # Stories | |
|
1 |
Improved |
Ranch 1 Story |
2015 |
1,278 |
1 Stories |
|