|
|
|
| Larry Stein Oklahoma County Assessor (405) 713-1200 - Public Access System |
|
|
|
|
|
|
| Real Property Display - Screen Produced 3/12/2026 5:35:54 AM | ||||
|---|---|---|---|---|
| Account: R213492320 | Type: Residential | Location: |
20638 FRONTIER AVE |
|
| Building Name/Occupant: |
|
HARRAH |
||
| Owner Name 1: | WREN ANGELA D & JEFFREY T |
Parcel PIN#: |
1005-21-349-2320 |
|
| Owner Name 2: | 1/4 section #: |
1005 |
||
| Owner Name 3: | Parent Acct: |
1005-26-702-1040 |
||
| Billing Address: | 20638 FRONTIER AVE | Tax District: |
|
|
| City, State, Zip | HARRAH, OK 73045 | School System: |
Harrah #7 |
|
|
Country: (If noted) |
Land Size: |
0.1653 Acres |
||
|
Land Value: 38,160 |
|
|||
|
Sect 2-T11N-R1E Qtr NE |
FALL CREEK PH 3
Block
006
Lot
019
|
|||
| Full Legal Description: FALL CREEK PH 3 BLK 006 LOT 019 |
| Photo & Sketch (if available) | Comp Sales (ordered by relevancy) |
|
||||||||||||||||||
|
||||||||||||||||||||
| Value History (*The County Treasurer 405-713-1300 posts & collects actual tax amounts. Contact information HERE) | |||||||||||||
|---|---|---|---|---|---|---|---|---|---|---|---|---|---|
| Year | Market Value | Taxable Mkt Value | Gross Assessed | Exemption | Net Assessed | Millage | Est. Tax | Tax Savings | |||||
|
2025 |
230,000 |
170,991 |
18,808 |
1,000 |
17,808 |
107.54 |
$1,915 |
$806 |
|||||
|
2024 |
225,500 |
166,011 |
18,260 |
1,000 |
17,260 |
110.62 |
$1,909 |
$834 |
|||||
|
2023 |
207,000 |
161,176 |
17,729 |
1,000 |
16,729 |
97.88 |
$1,637 |
$591 |
|||||
|
2022 |
181,500 |
156,482 |
17,212 |
1,000 |
16,212 |
99.50 |
$1,613 |
$373 |
|||||
|
2021 |
162,500 |
151,925 |
16,711 |
1,000 |
15,711 |
99.52 |
$1,564 |
$215 |
|||||
| Property Account Status/Adjustments/Exemptions | ||
|---|---|---|
| Account # | Exemption Description | Amount |
|
R213492320 |
3% Cap Homestead |
0 |
|
R213492320 |
Homestead |
1,000 |
| Property Deed Transaction History (Recorded in the County Clerk's Office) | |||||||
|---|---|---|---|---|---|---|---|
| Date | Type | Book | Page | Price | Grantor | Grantee | |
|
2/19/2020 |
|
Deeds |
$0 |
WREN ANGELA |
WREN ANGELA D & JEFFREY T |
||
|
12/13/2018 |
|
Deeds |
$145,000 |
PETERS ANGELA |
WREN ANGELA |
||
|
1/20/2017 |
|
Deeds |
$148,500 |
HARRAH LAND FC LLC |
PETERS ANGELA |
||
| Last Mailed Notice of Value (N.O.V.) Information/History | ||||||||
|---|---|---|---|---|---|---|---|---|
| Year | Date | Market Value | Taxable Market Value | Gross Assessed | Exemption | Net Assessed | ||
|
2026 |
02/06/2026 |
232,500 |
176,120 |
19,373 |
1,000 |
18,373 |
||
|
2025 |
01/31/2025 |
230,000 |
170,991 |
18,808 |
1,000 |
17,808 |
||
|
2024 |
01/22/2024 |
225,500 |
166,011 |
18,260 |
1,000 |
17,260 |
||
|
2023 |
01/23/2023 |
207,000 |
161,176 |
17,729 |
1,000 |
16,729 |
||
|
2022 |
02/22/2022 |
181,500 |
156,482 |
17,212 |
1,000 |
16,212 |
||
| Property Building Permit History | ||||||
|---|---|---|---|---|---|---|
| Issued | Permit # | Provided by | Bldg # | Description | Est Construction Cost | Status |
|
1/1/1900 |
10484115 |
HARRAH |
1 |
Main Dwellin |
0 |
Inactive |
| Click button on building number to access detailed information: | ||||||
|---|---|---|---|---|---|---|
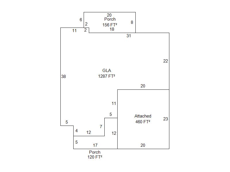
| Bldg # | Vacant/Improved Land | Bldg Description | Year Built | SqFt | # Stories | |
|
1 |
Improved |
Ranch 1 Story |
2016 |
1,287 |
1 Stories |
|