|
|
|
| Larry Stein Oklahoma County Assessor (405) 713-1200 - Public Access System |
|
|
|
|
|
|
| Real Property Display - Screen Produced 3/12/2026 5:36:21 AM | ||||
|---|---|---|---|---|
| Account: R213492410 | Type: Residential | Location: |
20659 LANDMARK DR |
|
| Building Name/Occupant: |
|
HARRAH |
||
| Owner Name 1: | FALL CREEK LEASING LLC SERIES 20659 LANDMARK |
Parcel PIN#: |
1005-21-349-2410 |
|
| Owner Name 2: | 1/4 section #: |
1005 |
||
| Owner Name 3: | Parent Acct: |
1005-26-702-1040 |
||
| Billing Address: | PO BOX 36504 | Tax District: |
|
|
| City, State, Zip | OKLAHOMA CITY, OK 73136 | School System: |
Harrah #7 |
|
|
Country: (If noted) |
Land Size: |
0.1818 Acres |
||
|
Land Value: 41,976 |
|
|||
|
Sect 2-T11N-R1E Qtr NE |
FALL CREEK PH 3
Block
007
Lot
006
|
|||
| Full Legal Description: FALL CREEK PH 3 BLK 007 LOT 006 |
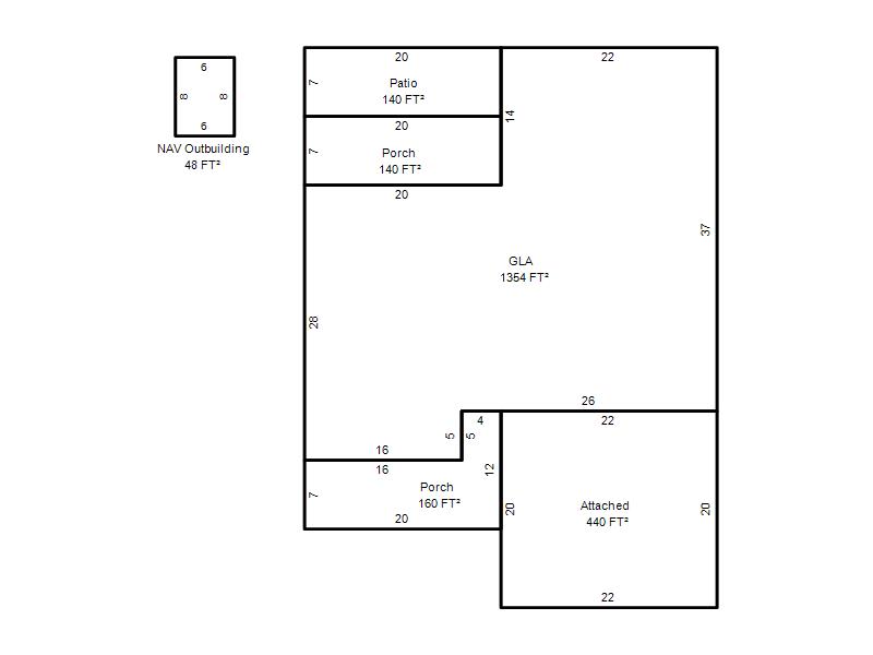
| Photo & Sketch (if available) | Comp Sales (ordered by relevancy) |
|
||||||||||||||||||
|
||||||||||||||||||||
| Value History (*The County Treasurer 405-713-1300 posts & collects actual tax amounts. Contact information HERE) | |||||||||||||
|---|---|---|---|---|---|---|---|---|---|---|---|---|---|
| Year | Market Value | Taxable Mkt Value | Gross Assessed | Exemption | Net Assessed | Millage | Est. Tax | Tax Savings | |||||
|
2025 |
239,500 |
238,691 |
26,255 |
0 |
26,255 |
107.54 |
$2,824 |
$10 |
|||||
|
2024 |
236,000 |
227,325 |
25,005 |
0 |
25,005 |
110.62 |
$2,766 |
$106 |
|||||
|
2023 |
216,500 |
216,500 |
23,815 |
0 |
23,815 |
97.88 |
$2,331 |
$0 |
|||||
|
2022 |
190,000 |
164,439 |
18,087 |
1,000 |
17,087 |
99.50 |
$1,700 |
$379 |
|||||
|
2021 |
169,500 |
159,650 |
17,561 |
1,000 |
16,561 |
99.52 |
$1,648 |
$207 |
|||||
| Property Account Status/Adjustments/Exemptions | ||
|---|---|---|
| Account # | Exemption Description | Amount |
|
R213492410 |
5% Capped Account |
0 |
| Property Deed Transaction History (Recorded in the County Clerk's Office) | |||||||
|---|---|---|---|---|---|---|---|
| Date | Type | Book | Page | Price | Grantor | Grantee | |
|
5/24/2023 |
|
Hmstd Off & |
$0 |
21ST STREET LEASING LLC |
FALL CREEK LEASING LLC SERIES 20659 LANDMARK |
||
|
12/2/2022 |
|
Hmstd Off & |
$0 |
HALE BRENT A & SARA N |
21ST STREET LEASING LLC |
||
|
10/13/2022 |
|
Deeds |
$225,000 |
WYNN AARON F |
HALE BRENT A & SARA N |
||
|
6/16/2017 |
|
Deeds |
$149,000 |
HARRAH LAND FC LLC |
WYNN AARON F |
||
|
6/16/2017 |
|
Deeds |
$0 |
DYER KARA L |
WYNN AARON F |
||
| Last Mailed Notice of Value (N.O.V.) Information/History | ||||||||
|---|---|---|---|---|---|---|---|---|
| Year | Date | Market Value | Taxable Market Value | Gross Assessed | Exemption | Net Assessed | ||
|
2026 |
02/06/2026 |
242,500 |
242,500 |
26,675 |
0 |
26,675 |
||
|
2025 |
01/31/2025 |
239,500 |
238,691 |
26,255 |
0 |
26,255 |
||
|
2024 |
01/22/2024 |
236,000 |
227,325 |
25,005 |
0 |
25,005 |
||
|
2023 |
01/23/2023 |
216,500 |
216,500 |
23,815 |
0 |
23,815 |
||
|
2022 |
02/22/2022 |
190,000 |
164,439 |
18,087 |
1,000 |
17,087 |
||
| Property Building Permit History | ||||||
|---|---|---|---|---|---|---|
| Issued | Permit # | Provided by | Bldg # | Description | Est Construction Cost | Status |
|
10/5/2016 |
10486873 |
HARRAH |
1 |
Main Dwellin |
0 |
Inactive |
| Click button on building number to access detailed information: | ||||||
|---|---|---|---|---|---|---|
| Bldg # | Vacant/Improved Land | Bldg Description | Year Built | SqFt | # Stories | |
|
1 |
Improved |
Ranch 1 Story |
2017 |
1,354 |
1 Stories |
|