|
|
|
| Larry Stein Oklahoma County Assessor (405) 713-1200 - Public Access System |
|
|
|
|
|
|
| Real Property Display - Screen Produced 3/16/2026 4:03:27 PM | ||||
|---|---|---|---|---|
| Account: R115251080 | Type: Residential | Location: |
3225 SE 54TH ST |
|
| Building Name/Occupant: |
|
OKLAHOMA CITY |
||
| Owner Name 1: | HILTERBRAN PATRICIA A |
Parcel PIN#: |
1475-11-525-1080 |
|
| Owner Name 2: | 1/4 section #: |
1475 |
||
| Owner Name 3: | Parent Acct: |
|
||
| Billing Address: | 608 E TOWRY DR | Tax District: |
|
|
| City, State, Zip | MIDWEST CITY, OK 73110 | School System: |
Oklahoma City #89 |
|
|
Country: (If noted) |
Land Size: |
0.1623 Acres |
||
|
Land Value: 12,369 |
|
|||
|
Sect 19-T11N-R2W Qtr SW |
OAKCLIFF SEC 8
Block
031
Lot
038
|
|||
| Full Legal Description: OAKCLIFF SEC 8 031 038 |
| Photo & Sketch (if available) | Comp Sales (ordered by relevancy) |
|
||||||||||||||||||
|
||||||||||||||||||||
| Value History (*The County Treasurer 405-713-1300 posts & collects actual tax amounts. Contact information HERE) | |||||||||||||
|---|---|---|---|---|---|---|---|---|---|---|---|---|---|
| Year | Market Value | Taxable Mkt Value | Gross Assessed | Exemption | Net Assessed | Millage | Est. Tax | Tax Savings | |||||
|
2025 |
119,000 |
66,456 |
7,310 |
0 |
7,310 |
122.90 |
$898 |
$710 |
|||||
|
2024 |
106,000 |
63,292 |
6,961 |
0 |
6,961 |
123.89 |
$863 |
$582 |
|||||
|
2023 |
91,000 |
60,279 |
6,630 |
6,630 |
0 |
122.82 |
$0 |
$1,229 |
|||||
|
2022 |
78,500 |
58,524 |
6,437 |
6,437 |
0 |
117.63 |
$0 |
$1,016 |
|||||
|
2021 |
64,000 |
56,820 |
6,250 |
6,250 |
0 |
117.70 |
$0 |
$829 |
|||||
| Property Account Status/Adjustments/Exemptions | ||
|---|---|---|
| Account # | Exemption Description | Amount |
|
R115251080 |
5% Capped Account |
0 |
| Property Deed Transaction History (Recorded in the County Clerk's Office) | |||||||
|---|---|---|---|---|---|---|---|
| Date | Type | Book | Page | Price | Grantor | Grantee | |
|
1/3/1991 |
|
Historical |
$0 |
DOWELL JERRY |
HILTERBRAN PATRICIA A |
||
|
10/26/1987 |
|
Historical |
$0 |
HILTERBRAN PATRICIA A |
DOWELL JERRY |
||
|
11/11/1911 |
|
Historical |
$0 |
|
HILTERBRAN PATRICIA A |
||
| Last Mailed Notice of Value (N.O.V.) Information/History | ||||||||
|---|---|---|---|---|---|---|---|---|
| Year | Date | Market Value | Taxable Market Value | Gross Assessed | Exemption | Net Assessed | ||
|
2026 |
02/06/2026 |
120,000 |
69,778 |
7,675 |
0 |
7,675 |
||
|
2025 |
01/31/2025 |
119,000 |
66,456 |
7,310 |
0 |
7,310 |
||
|
2024 |
01/22/2024 |
106,000 |
62,087 |
6,828 |
6,828 |
0 |
||
|
2023 |
01/23/2023 |
91,000 |
60,279 |
6,630 |
6,630 |
0 |
||
|
2022 |
02/22/2022 |
78,500 |
58,524 |
6,437 |
6,437 |
0 |
||
| Property Building Permit History | ||||||
|---|---|---|---|---|---|---|
| Issued | Permit # | Provided by | Bldg # | Description | Est Construction Cost | Status |
|
3/10/1992 |
10205570 |
OKLAHOMA CITY |
1 |
Burn - Trip |
0 |
Inactive |
| Click button on building number to access detailed information: | ||||||
|---|---|---|---|---|---|---|
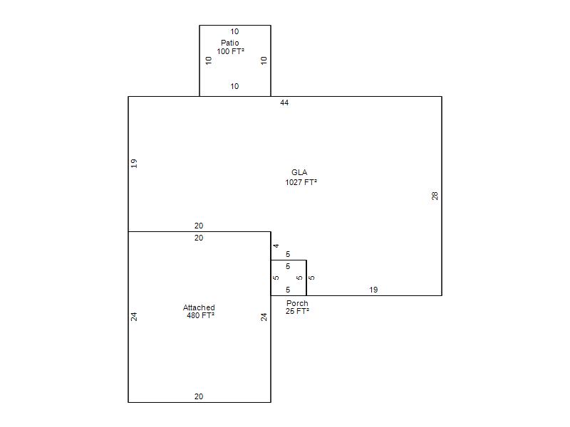
| Bldg # | Vacant/Improved Land | Bldg Description | Year Built | SqFt | # Stories | |
|
1 |
Improved |
Ranch 1 Story |
1972 |
1,027 |
1 Stories |
|