|
|
|
| Larry Stein Oklahoma County Assessor (405) 713-1200 - Public Access System |
|
|
|
|
|
|
| Real Property Display - Screen Produced 3/12/2026 4:02:25 AM | ||||
|---|---|---|---|---|
| Account: R215381510 | Type: Residential | Location: |
20862 SANTA FE AVE |
|
| Building Name/Occupant: |
|
HARRAH |
||
| Owner Name 1: | WILSON BARRY A AND MARGARET L TRS |
Parcel PIN#: |
1005-21-538-1510 |
|
| Owner Name 2: | WILSON LIV TRUST | 1/4 section #: |
1005 |
|
| Owner Name 3: | Parent Acct: |
|
||
| Billing Address: | 5100 ARROWHEAD DR | Tax District: |
|
|
| City, State, Zip | LAGO VISTA, TX 78645-6005 | School System: |
Harrah #7 |
|
|
Country: (If noted) |
Land Size: |
0.2571 Acres |
||
|
Land Value: 35,840 |
|
|||
|
Sect 2-T11N-R1E Qtr NE |
FALL CREEK PH 4
Block
004
Lot
026
|
|||
| Full Legal Description: FALL CREEK PH 4 BLK 004 LOT 026 |
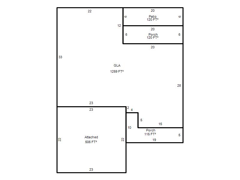
| Photo & Sketch (if available) | Comp Sales (ordered by relevancy) |
|
||||||||||||||||||
|
||||||||||||||||||||
| Value History (*The County Treasurer 405-713-1300 posts & collects actual tax amounts. Contact information HERE) | |||||||||||||
|---|---|---|---|---|---|---|---|---|---|---|---|---|---|
| Year | Market Value | Taxable Mkt Value | Gross Assessed | Exemption | Net Assessed | Millage | Est. Tax | Tax Savings | |||||
| No PropertyValuation records returned. | |||||||||||||
| Property Account Status/Adjustments/Exemptions | ||
|---|---|---|
| Account # | Exemption Description | Amount |
|
R215381510 |
5% Capped Account |
0 |
| Property Deed Transaction History (Recorded in the County Clerk's Office) | |||||||
|---|---|---|---|---|---|---|---|
| Date | Type | Book | Page | Price | Grantor | Grantee | |
|
6/13/2025 |
|
Hmstd Off & |
$0 |
WILSON BARRY A & MARGARET L |
WILSON BARRY A AND MARGARET L TRS |
||
|
7/28/2021 |
|
Deeds |
$180,000 |
BROOKS ASHTON & EMILY |
WILSON BARRY A & MARGARET L |
||
|
1/3/2020 |
|
Deeds |
$160,000 |
HARRAH LAND FC LLC |
BROOKS ASHTON & EMILY |
||
| Last Mailed Notice of Value (N.O.V.) Information/History | ||||||||
|---|---|---|---|---|---|---|---|---|
| Year | Date | Market Value | Taxable Market Value | Gross Assessed | Exemption | Net Assessed | ||
| No Notice of Value N.O.V. records returned. | ||||||||
| Property Building Permit History | ||||||
|---|---|---|---|---|---|---|
| Issued | Permit # | Provided by | Bldg # | Description | Est Construction Cost | Status |
|
10/29/2019 |
|
|
1 |
Main Dwellin |
|
Inactive |
| Click button on building number to access detailed information: | ||||||
|---|---|---|---|---|---|---|
| Bldg # | Vacant/Improved Land | Bldg Description | Year Built | SqFt | # Stories | |
|
1 |
Improved |
Ranch 1 Story |
2019 |
1,259 |
1 Stories |
|