|
|
|
| Larry Stein Oklahoma County Assessor (405) 713-1200 - Public Access System |
|
|
|
|
|
|
| Real Property Display - Screen Produced 4/27/2026 2:27:40 PM | ||||
|---|---|---|---|---|
| Account: R267035530 | Type: Residential | Location: |
837 S DOBBS RD |
|
| Building Name/Occupant: |
|
UNINCORPORATED |
||
| Owner Name 1: | GREEN WAGON LLC |
Parcel PIN#: |
1010-26-703-5530 |
|
| Owner Name 2: | 1/4 section #: |
1010 |
||
| Owner Name 3: | Parent Acct: |
|
||
| Billing Address: | PO BOX 850595 | Tax District: |
|
|
| City, State, Zip | YUKON, OK 73085 | School System: |
Harrah #7 |
|
|
Country: (If noted) |
Land Size: |
2.5000 Acres |
||
|
Land Value: 42,404 |
|
|||
|
Sect 3-T11N-R1E Qtr SE |
POTTAWATOMIE TOWNSHIP
Block
000
Lot
000
|
|||
| Full Legal Description: POTTAWATOMIE TOWNSHIP PT SE4 SEC 3 11N 1E BEG 328.35FT S OF NE/C OF SE4 TH S164.175FT W662.75FT N164.085FT E662.6FT TO BEG AKA N/2 TR 2 WOOTENS ADDITION UNREC |
| Value History (*The County Treasurer 405-713-1300 posts & collects actual tax amounts. Contact information HERE) | |||||||||||||
|---|---|---|---|---|---|---|---|---|---|---|---|---|---|
| Year | Market Value | Taxable Mkt Value | Gross Assessed | Exemption | Net Assessed | Millage | Est. Tax | Tax Savings | |||||
|
2026 |
245,500 |
245,500 |
27,005 |
0 |
27,005 |
107.54 |
$2,904 |
$0 |
|||||
|
2025 |
249,500 |
244,258 |
26,867 |
0 |
26,867 |
107.54 |
$2,889 |
$62 |
|||||
|
2024 |
251,000 |
232,627 |
25,588 |
0 |
25,588 |
110.62 |
$2,831 |
$224 |
|||||
| Property Account Status/Adjustments/Exemptions | ||
|---|---|---|
| Account # | Exemption Description | Amount |
|
R267035530 |
5% Capped Account |
0 |
| Property Deed Transaction History (Recorded in the County Clerk's Office) | ||||||||||
|---|---|---|---|---|---|---|---|---|---|---|
| Date | Type | Book | Page | Price | Grantor | Grantee | ||||
|
11/16/2021 |
|
Deeds |
$0 |
WEST BETTY J |
HOLBROOK JENNIFER N |
|||||
|
11/16/2021 |
|
Deeds |
$135,000 |
HOLBROOK JENNIFER N |
GREEN WAGON LLC |
|||||
|
11/1/2021 |
|
Deeds |
$0 |
WEST BETTY J |
HOLBROOK JENNIFER N |
|||||
| Last Mailed Notice of Value (N.O.V.) Information/History | ||||||||
|---|---|---|---|---|---|---|---|---|
| Year | Date | Market Value | Taxable Market Value | Gross Assessed | Exemption | Net Assessed | ||
|
2026 |
02/06/2026 |
245,500 |
245,500 |
27,005 |
0 |
27,005 |
||
|
2025 |
01/31/2025 |
249,500 |
244,258 |
26,867 |
0 |
26,867 |
||
|
2024 |
01/22/2024 |
251,000 |
232,627 |
25,588 |
0 |
25,588 |
||
| Property Building Permit History | |||||||||||
|---|---|---|---|---|---|---|---|---|---|---|---|
| Issued | Permit # | Provided by | Bldg # | Description | Est Construction Cost | Status | |||||
| No Building Permit records returned. | |||||||||||
| Click button below to access detailed information and additional property photos: | ||||||
|---|---|---|---|---|---|---|
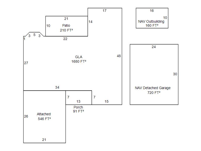
| Bldg # | Vacant/Improved Land | Bldg Description | Year Built | SqFt | # Stories | |
|
1 |
Improved |
Ranch 1 Story |
1979 |
1,680 |
1 Stories |
|