|
|
|
| Larry Stein Oklahoma County Assessor (405) 713-1200 - Public Access System |
|
|
|
|
|
|
| Real Property Display - Screen Produced 3/14/2026 7:59:14 AM | ||||
|---|---|---|---|---|
| Account: R148641280 | Type: Residential | Location: |
4935 SE 54TH ST |
|
| Building Name/Occupant: |
|
OKLAHOMA CITY |
||
| Owner Name 1: | SEEKINGS REAGAN |
Parcel PIN#: |
1478-14-864-1280 |
|
| Owner Name 2: | 1/4 section #: |
1478 |
||
| Owner Name 3: | Parent Acct: |
|
||
| Billing Address: | 4935 SE 54TH ST | Tax District: |
|
|
| City, State, Zip | OKLAHOMA CITY, OK 73135-4401 | School System: |
Mid-Del #52 |
|
|
Country: (If noted) |
Land Size: |
0.1928 Acres |
||
|
Land Value: 36,456 |
|
|||
|
Sect 20-T11N-R2W Qtr SE |
FROLICH MEADOWS SEC 4
Block
005
Lot
021
|
|||
| Full Legal Description: FROLICH MEADOWS SEC 4 005 021 |
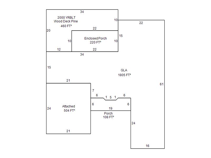
| Photo & Sketch (if available) | Comp Sales (ordered by relevancy) |
|
||||||||||||||||||
|
||||||||||||||||||||
| Value History (*The County Treasurer 405-713-1300 posts & collects actual tax amounts. Contact information HERE) | |||||||||||||
|---|---|---|---|---|---|---|---|---|---|---|---|---|---|
| Year | Market Value | Taxable Mkt Value | Gross Assessed | Exemption | Net Assessed | Millage | Est. Tax | Tax Savings | |||||
|
2025 |
251,500 |
251,500 |
27,665 |
0 |
27,665 |
126.46 |
$3,499 |
$0 |
|||||
|
2024 |
244,500 |
242,550 |
26,680 |
0 |
26,680 |
128.51 |
$3,429 |
$28 |
|||||
|
2023 |
231,000 |
231,000 |
25,410 |
0 |
25,410 |
122.94 |
$3,124 |
$0 |
|||||
|
2022 |
199,500 |
171,335 |
18,845 |
1,000 |
17,845 |
122.11 |
$2,179 |
$500 |
|||||
|
2021 |
176,000 |
166,345 |
18,297 |
1,000 |
17,297 |
124.74 |
$2,158 |
$257 |
|||||
| Property Account Status/Adjustments/Exemptions | ||
|---|---|---|
| Account # | Exemption Description | Amount |
|
R148641280 |
5% Capped Account |
0 |
| Property Deed Transaction History (Recorded in the County Clerk's Office) | ||||||||||
|---|---|---|---|---|---|---|---|---|---|---|
| Date | Type | Book | Page | Price | Grantor | Grantee | ||||
|
6/27/2024 |
|
Deeds |
$258,000 |
MCDONOUGH JACOB P |
SEEKINGS REAGAN |
|||||
|
8/4/2022 |
|
Deeds |
$216,000 |
LONDO SCOTT ALLAN & CANDICE LEA |
MCDONOUGH JACOB P |
|||||
|
11/6/2017 |
|
Deeds |
$153,000 |
HAVRON JOSHUA W & SARA |
LONDO SCOTT ALLAN & CANDICE LEA |
|||||
|
10/27/2014 |
|
Deeds |
$144,500 |
WIDHALM DEAN W & DEBRA J |
HAVRON JOSHUA W & SARA |
|||||
|
5/18/2004 |
|
Deeds |
$0 |
WIDHALM DEAN W |
WIDHALM DEAN W & DEBRA J |
|||||
| Last Mailed Notice of Value (N.O.V.) Information/History | ||||||||
|---|---|---|---|---|---|---|---|---|
| Year | Date | Market Value | Taxable Market Value | Gross Assessed | Exemption | Net Assessed | ||
|
2026 |
02/06/2026 |
254,500 |
254,500 |
27,995 |
0 |
27,995 |
||
|
2025 |
01/31/2025 |
251,500 |
251,500 |
27,665 |
0 |
27,665 |
||
|
2024 |
01/22/2024 |
244,500 |
242,550 |
26,680 |
0 |
26,680 |
||
|
2023 |
01/23/2023 |
231,000 |
231,000 |
25,410 |
0 |
25,410 |
||
|
2022 |
02/22/2022 |
199,500 |
171,335 |
18,845 |
1,000 |
17,845 |
||
| Property Building Permit History | ||||||
|---|---|---|---|---|---|---|
| Issued | Permit # | Provided by | Bldg # | Description | Est Construction Cost | Status |
|
8/27/1999 |
10243416 |
OKLAHOMA CITY |
1 |
Other |
2,000 |
Inactive |
|
7/2/1999 |
10243415 |
OKLAHOMA CITY |
1 |
Remodeled |
50,000 |
Inactive |
| Click button on building number to access detailed information: | ||||||
|---|---|---|---|---|---|---|
| Bldg # | Vacant/Improved Land | Bldg Description | Year Built | SqFt | # Stories | |
|
1 |
Improved |
Ranch 1 Story |
1975 |
1,805 |
1 Stories |
|