|
|
|
| Larry Stein Oklahoma County Assessor (405) 713-1200 - Public Access System |
|
|
|
|
|
|
| Real Property Display - Screen Produced 3/12/2026 12:53:58 PM | ||||
|---|---|---|---|---|
| Account: R142271380 | Type: Residential | Location: |
5516 WILSON PL |
|
| Building Name/Occupant: |
|
OKLAHOMA CITY |
||
| Owner Name 1: | AGGER GARY L & AURORA E TRS |
Parcel PIN#: |
1479-14-227-1380 |
|
| Owner Name 2: | AGGER GARY L & AURORA E REV LIV TRUST | 1/4 section #: |
1479 |
|
| Owner Name 3: | Parent Acct: |
|
||
| Billing Address: | 5505 WILSON PL | Tax District: |
|
|
| City, State, Zip | DEL CITY, OK 73135-3320 | School System: |
Mid-Del #52 |
|
|
Country: (If noted) |
Land Size: |
0.1800 Acres |
||
|
Land Value: 4,000 |
|
|||
|
Sect 20-T11N-R2W Qtr SW |
PROSPERITY ACRES ADD
Block
01A
Lot
000
|
|||
| Full Legal Description: PROSPERITY ACRES ADD 01A 000 S100FT OF LOT 9 SUBJ TO EASEMENTS OF RECORD |
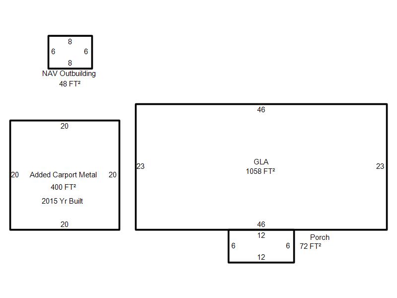
| Photo & Sketch (if available) | Comp Sales (ordered by relevancy) |
|
||||||||||||||||||
|
||||||||||||||||||||
| Value History (*The County Treasurer 405-713-1300 posts & collects actual tax amounts. Contact information HERE) | |||||||||||||
|---|---|---|---|---|---|---|---|---|---|---|---|---|---|
| Year | Market Value | Taxable Mkt Value | Gross Assessed | Exemption | Net Assessed | Millage | Est. Tax | Tax Savings | |||||
|
2025 |
187,000 |
139,174 |
15,309 |
0 |
15,309 |
126.46 |
$1,936 |
$665 |
|||||
|
2024 |
160,500 |
132,547 |
14,579 |
0 |
14,579 |
128.51 |
$1,874 |
$395 |
|||||
|
2023 |
144,000 |
126,236 |
13,885 |
0 |
13,885 |
122.94 |
$1,707 |
$240 |
|||||
|
2022 |
140,000 |
120,225 |
13,224 |
0 |
13,224 |
122.11 |
$1,615 |
$266 |
|||||
|
2021 |
114,500 |
114,500 |
12,595 |
0 |
12,595 |
124.74 |
$1,571 |
$0 |
|||||
| Property Account Status/Adjustments/Exemptions | ||
|---|---|---|
| Account # | Exemption Description | Amount |
|
R142271380 |
5% Capped Account |
0 |
| Property Deed Transaction History (Recorded in the County Clerk's Office) | ||||||||||
|---|---|---|---|---|---|---|---|---|---|---|
| Date | Type | Book | Page | Price | Grantor | Grantee | ||||
|
10/9/2009 |
|
Deeds |
$0 |
AGGER GARY L & AURORA |
AGGER GARY L & AURORA E TRS |
|||||
|
9/16/2009 |
|
Deeds |
$4,500 |
ELLIOTT DAVID J & AMIE I |
AGGER GARY L & AURORA E |
|||||
|
7/31/2006 |
|
Deeds |
$45,000 |
SHEELEY SCOTT CLIFFORD |
ELLIOTT DAVID J & AMIE I |
|||||
|
11/23/2005 |
|
Hmstd Off & |
$0 |
SHEELEY DOROTHY M TRS SHEELEY CLIFFORD & DOROTHY |
SHEELEY SCOTT CLIFFORD |
|||||
|
10/19/1998 |
|
Historical |
$0 |
SHEELEY CLIFFORD & D M CO TRS |
SHEELEY DOROTHY M TRS |
|||||
| Last Mailed Notice of Value (N.O.V.) Information/History | ||||||||
|---|---|---|---|---|---|---|---|---|
| Year | Date | Market Value | Taxable Market Value | Gross Assessed | Exemption | Net Assessed | ||
|
2026 |
02/06/2026 |
192,500 |
146,132 |
16,074 |
0 |
16,074 |
||
|
2025 |
01/31/2025 |
187,000 |
139,174 |
15,309 |
0 |
15,309 |
||
|
2024 |
01/22/2024 |
160,500 |
132,547 |
14,579 |
0 |
14,579 |
||
|
2023 |
01/23/2023 |
144,000 |
126,236 |
13,885 |
0 |
13,885 |
||
|
2022 |
02/22/2022 |
140,000 |
120,225 |
13,224 |
0 |
13,224 |
||
| Property Building Permit History | ||||||
|---|---|---|---|---|---|---|
| Issued | Permit # | Provided by | Bldg # | Description | Est Construction Cost | Status |
|
6/23/2009 |
10383139 |
OKLAHOMA CITY |
1 |
Demolish |
0 |
Inactive |
|
9/8/2008 |
10358541 |
OKLAHOMA CITY |
1 |
Demolish |
0 |
Inactive |
|
8/19/2008 |
10358540 |
OKLAHOMA CITY |
1 |
Main Dwellin |
0 |
Inactive |
| Click button on building number to access detailed information: | ||||||
|---|---|---|---|---|---|---|
| Bldg # | Vacant/Improved Land | Bldg Description | Year Built | SqFt | # Stories | |
|
1 |
Improved |
Ranch 1 Story |
2012 |
1,058 |
1 Stories |
|