|
|
|
| Larry Stein Oklahoma County Assessor (405) 713-1200 - Public Access System |
|
|
|
|
|
|
| Real Property Display - Screen Produced 3/18/2026 6:19:35 PM | ||||
|---|---|---|---|---|
| Account: R194896805 | Type: Residential | Location: |
455 N HIWASSEE RD |
|
| Building Name/Occupant: |
|
CHOCTAW |
||
| Owner Name 1: | WATKINS GARRETT C |
Parcel PIN#: |
2330-19-489-6805 |
|
| Owner Name 2: | WATKINS HILARY | 1/4 section #: |
2330 |
|
| Owner Name 3: | Parent Acct: |
2330-19-489-6800 |
||
| Billing Address: | 455 N HIWASSEE RD | Tax District: |
|
|
| City, State, Zip | CHOCTAW, OK 73020 | School System: |
Choctaw #4 |
|
|
Country: (If noted) |
Land Size: |
2.4900 Acres |
||
|
Land Value: 75,000 |
|
|||
|
Sect 33-T12N-R1W Qtr SE |
UNPLTD PT SEC 33 12N 1W
Block
000
Lot
000
|
|||
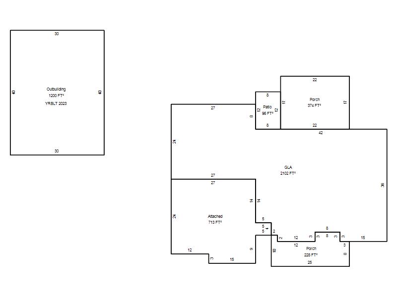
| Full Legal Description: UNPLTD PT SE4 SEC 33 12N 1W BEG 332.35FT S OF NE/C SE4 TH S332.35FT W327.67FT N331.74FT E327.71FT TO BEG CONT 2.49 AC MORE OR LESS |
| Photo & Sketch (if available) | Comp Sales (ordered by relevancy) |
|
||||||||||||||||||
|
||||||||||||||||||||
| Value History (*The County Treasurer 405-713-1300 posts & collects actual tax amounts. Contact information HERE) | ||||||||
|---|---|---|---|---|---|---|---|---|
| Year | Market Value | Taxable Mkt Value | Gross Assessed | Exemption | Net Assessed | Millage | Est. Tax | Tax Savings |
|
2025 |
486,000 |
486,000 |
53,460 |
1,000 |
52,460 |
117.21 |
$6,149 |
$117 |
|
2024 |
505,500 |
505,500 |
55,605 |
1,000 |
54,605 |
116.35 |
$6,353 |
$116 |
|
2023 |
75,000 |
75,000 |
8,250 |
0 |
8,250 |
118.06 |
$974 |
$0 |
|
2022 |
75,000 |
75,000 |
8,250 |
0 |
8,250 |
116.14 |
$958 |
$0 |
|
2021 |
0 |
|
0 |
|
|
|
$ |
$ |
| Property Account Status/Adjustments/Exemptions | ||
|---|---|---|
| Account # | Exemption Description | Amount |
|
R194896805 |
Homestead |
1,000 |
|
R194896805 |
3% Cap Homestead |
0 |
| Property Deed Transaction History (Recorded in the County Clerk's Office) | ||||||||||
|---|---|---|---|---|---|---|---|---|---|---|
| Date | Type | Book | Page | Price | Grantor | Grantee | ||||
|
11/16/2021 |
|
Deeds |
$75,000 |
BLACKBURN KELLY |
WATKINS GARRETT C |
|||||
|
11/16/2021 |
|
Deeds |
$0 |
BLACKBURN KELLY |
WATKINS GARRETT C |
|||||
|
11/16/2021 |
|
Deeds |
$0 |
BLACKBURN KELLY |
WATKINS GARRETT C |
|||||
|
11/16/2021 |
|
Deeds |
$0 |
BLACKBURN KELLY |
WATKINS GARRETT C |
|||||
|
10/21/2021 |
|
Deeds |
$0 |
BLACKBURN KELLY |
BLACKBURN KELLY |
|||||
| Last Mailed Notice of Value (N.O.V.) Information/History | ||||||
|---|---|---|---|---|---|---|
| Year | Date | Market Value | Taxable Market Value | Gross Assessed | Exemption | Net Assessed |
|
2025 |
01/31/2025 |
514,000 |
514,000 |
56,540 |
1,000 |
55,540 |
|
2024 |
03/01/2024 |
505,500 |
505,500 |
55,605 |
1,000 |
54,605 |
|
2022 |
02/22/2022 |
75,000 |
75,000 |
8,250 |
0 |
8,250 |
| Property Building Permit History | ||||||
|---|---|---|---|---|---|---|
| Issued | Permit # | Provided by | Bldg # | Description | Est Construction Cost | Status |
|
4/4/2023 |
|
|
1 |
Storage Buil |
|
Inactive |
|
1/5/2023 |
|
|
1 |
Main Dwellin |
|
Inactive |
| Click button on building number to access detailed information: | ||||||
|---|---|---|---|---|---|---|
| Bldg # | Vacant/Improved Land | Bldg Description | Year Built | SqFt | # Stories | |
|
1 |
Improved |
Ranch 1 Story |
2022 |
2,102 |
1 Stories |
|