|
|
|
| Larry Stein Oklahoma County Assessor (405) 713-1200 - Public Access System |
|
|
|
|
|
|
| Real Property Display - Screen Produced 3/14/2026 6:54:21 AM | ||||
|---|---|---|---|---|
| Account: R144382090 | Type: Residential | Location: |
6201 LOVE LN |
|
| Building Name/Occupant: |
|
OKLAHOMA CITY |
||
| Owner Name 1: | LEONARD TERRIAL R & VERONICA S |
Parcel PIN#: |
1108-14-438-2090 |
|
| Owner Name 2: | 1/4 section #: |
1108 |
||
| Owner Name 3: | Parent Acct: |
|
||
| Billing Address: | 6201 LOVE LN | Tax District: |
|
|
| City, State, Zip | NEWALLA, OK 74857-7315 | School System: |
McLoud #1 |
|
|
Country: (If noted) |
Land Size: |
2.0100 Acres |
||
|
Land Value: 50,407 |
|
|||
|
Sect 27-T11N-R1E Qtr NW |
UNPLTD PT SEC 27 11N 1E
Block
000
Lot
000
|
|||
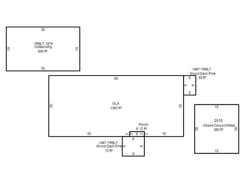
| Full Legal Description: UNPLTD PT SEC 27 11N 1E 000 000 PT NW4 SEC 27 11N 1E BEG 330.64FT E & 529.79FT S OF NW/C NW4TH E165.33FT S529.81FT W165.33FT N529.79FT TO BEG SUBJ TO ESMTS OF RECORD CONT 2.0108ACRS MORE OR LESS |
| Photo & Sketch (if available) | Comp Sales (ordered by relevancy) |
|
||||||||||||||||||
|
||||||||||||||||||||
| Value History (*The County Treasurer 405-713-1300 posts & collects actual tax amounts. Contact information HERE) | |||||||||||||
|---|---|---|---|---|---|---|---|---|---|---|---|---|---|
| Year | Market Value | Taxable Mkt Value | Gross Assessed | Exemption | Net Assessed | Millage | Est. Tax | Tax Savings | |||||
|
2025 |
241,500 |
126,206 |
13,882 |
13,882 |
0 |
107.58 |
$0 |
$2,858 |
|||||
|
2024 |
225,500 |
122,531 |
13,477 |
13,477 |
0 |
108.01 |
$0 |
$2,679 |
|||||
|
2023 |
205,000 |
118,963 |
13,085 |
13,085 |
0 |
106.94 |
$0 |
$2,411 |
|||||
|
2022 |
187,000 |
115,499 |
12,704 |
12,704 |
0 |
108.95 |
$0 |
$2,241 |
|||||
|
2021 |
165,500 |
112,135 |
12,334 |
12,334 |
0 |
135.78 |
$0 |
$2,472 |
|||||
| Property Account Status/Adjustments/Exemptions | ||
|---|---|---|
| Account # | Exemption Description | Amount |
|
R144382090 |
100% DAV Exemption |
100 |
|
R144382090 |
3% Cap Homestead |
0 |
|
R144382090 |
DAV Homestead |
0 |
| Property Deed Transaction History (Recorded in the County Clerk's Office) | |||||||
|---|---|---|---|---|---|---|---|
| Date | Type | Book | Page | Price | Grantor | Grantee | |
|
10/31/1986 |
|
Historical |
$0 |
|
LEONARD TERRIAL R & VERONICA S |
||
| Last Mailed Notice of Value (N.O.V.) Information/History | ||||||||
|---|---|---|---|---|---|---|---|---|
| Year | Date | Market Value | Taxable Market Value | Gross Assessed | Exemption | Net Assessed | ||
|
2026 |
02/06/2026 |
241,000 |
129,992 |
14,298 |
14,298 |
0 |
||
|
2025 |
01/31/2025 |
241,500 |
126,206 |
13,882 |
13,882 |
0 |
||
|
2024 |
01/22/2024 |
225,500 |
122,531 |
13,477 |
13,477 |
0 |
||
|
2023 |
01/23/2023 |
205,000 |
118,963 |
13,085 |
13,085 |
0 |
||
|
2022 |
02/22/2022 |
187,000 |
115,499 |
12,704 |
12,704 |
0 |
||
| Property Building Permit History | |||||||||||
|---|---|---|---|---|---|---|---|---|---|---|---|
| Issued | Permit # | Provided by | Bldg # | Description | Est Construction Cost | Status | |||||
| No Building Permit records returned. | |||||||||||
| Click button on building number to access detailed information: | ||||||
|---|---|---|---|---|---|---|
| Bldg # | Vacant/Improved Land | Bldg Description | Year Built | SqFt | # Stories | |
|
1 |
Improved |
Ranch 1 Story |
1987 |
1,363 |
1 Stories |
|