|
|
|
| Larry Stein Oklahoma County Assessor (405) 713-1200 - Public Access System |
|
|
|
|
|
|
| Real Property Display - Screen Produced 3/14/2026 11:37:00 AM | ||||
|---|---|---|---|---|
| Account: R144411550 | Type: Residential | Location: |
6401 S PEEBLY RD |
|
| Building Name/Occupant: |
|
OKLAHOMA CITY |
||
| Owner Name 1: | MITCHELL BRYAN J & MINDY L |
Parcel PIN#: |
1113-14-441-1550 |
|
| Owner Name 2: | 1/4 section #: |
1113 |
||
| Owner Name 3: | Parent Acct: |
|
||
| Billing Address: | 6401 S PEEBLY RD | Tax District: |
|
|
| City, State, Zip | NEWALLA, OK 74857 | School System: |
McLoud #1 |
|
|
Country: (If noted) |
UNITED STATES |
Land Size: |
5.0000 Acres |
|
|
Land Value: 86,786 |
|
|||
|
Sect 29-T11N-R1E Qtr NE |
UNPLTD PT SEC 29 11N 1E
Block
000
Lot
000
|
|||
| Full Legal Description: UNPLTD PT SEC 29 11N 1E 000 000 PT NE4 SEC 29 11N 1E BEING N/2 NE4 SE4 NE4 CONT 5ACRS MORE OR LESS |
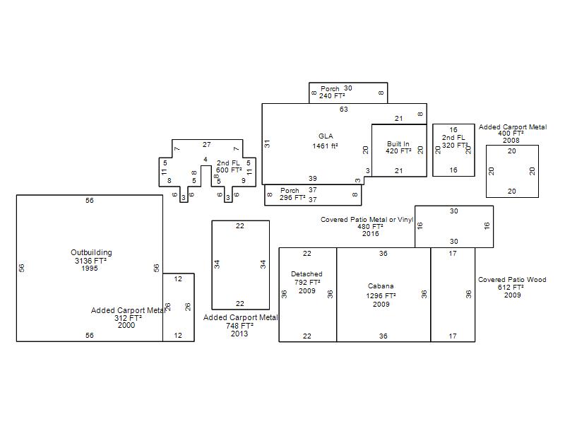
| Photo & Sketch (if available) | Comp Sales (ordered by relevancy) |
|
||||||||||||||||||
|
||||||||||||||||||||
| Value History (*The County Treasurer 405-713-1300 posts & collects actual tax amounts. Contact information HERE) | |||||||||||||
|---|---|---|---|---|---|---|---|---|---|---|---|---|---|
| Year | Market Value | Taxable Mkt Value | Gross Assessed | Exemption | Net Assessed | Millage | Est. Tax | Tax Savings | |||||
|
2025 |
534,500 |
448,934 |
49,382 |
1,000 |
48,382 |
107.58 |
$5,205 |
$1,120 |
|||||
|
2024 |
576,500 |
435,859 |
47,944 |
1,000 |
46,944 |
108.01 |
$5,070 |
$1,779 |
|||||
|
2023 |
531,000 |
423,165 |
46,547 |
1,000 |
45,547 |
106.94 |
$4,871 |
$1,375 |
|||||
|
2022 |
554,500 |
410,840 |
45,192 |
0 |
45,192 |
108.95 |
$4,924 |
$1,722 |
|||||
|
2021 |
491,000 |
391,277 |
43,039 |
0 |
43,039 |
135.78 |
$5,844 |
$1,489 |
|||||
| Property Account Status/Adjustments/Exemptions | ||
|---|---|---|
| Account # | Exemption Description | Amount |
|
R144411550 |
Homestead |
1,000 |
|
R144411550 |
3% Cap Homestead |
0 |
| Property Deed Transaction History (Recorded in the County Clerk's Office) | |||||||
|---|---|---|---|---|---|---|---|
| Date | Type | Book | Page | Price | Grantor | Grantee | |
|
2/25/2002 |
|
Deeds |
$0 |
MITCHELL BRYAN J |
MITCHELL BRYAN J & MINDY L |
||
|
12/14/1998 |
|
Historical |
$0 |
MITCHELL BRYAN J & MINDY L |
MITCHELL BRYAN J |
||
|
3/8/1994 |
|
Historical |
$0 |
GEMINI SOLAR CONSTRUCTION INC |
MITCHELL BRYAN J & MINDY L |
||
|
12/8/1992 |
|
Historical |
$0 |
STEPHENS ANTHONY G & JUDY |
GEMINI SOLAR CONSTRUCTION INC |
||
|
7/29/1991 |
|
Historical |
$0 |
|
STEPHENS ANTHONY G & JUDY |
||
| Last Mailed Notice of Value (N.O.V.) Information/History | ||||||||
|---|---|---|---|---|---|---|---|---|
| Year | Date | Market Value | Taxable Market Value | Gross Assessed | Exemption | Net Assessed | ||
|
2026 |
02/06/2026 |
546,000 |
462,402 |
50,863 |
1,000 |
49,863 |
||
|
2025 |
01/31/2025 |
534,500 |
448,934 |
49,382 |
1,000 |
48,382 |
||
|
2024 |
01/22/2024 |
576,500 |
435,859 |
47,944 |
1,000 |
46,944 |
||
|
2023 |
01/23/2023 |
531,000 |
431,382 |
47,451 |
0 |
47,451 |
||
|
2022 |
02/22/2022 |
554,500 |
410,840 |
45,190 |
0 |
45,190 |
||
| Property Building Permit History | ||||||
|---|---|---|---|---|---|---|
| Issued | Permit # | Provided by | Bldg # | Description | Est Construction Cost | Status |
|
7/8/2004 |
10294824 |
OKLAHOMA CITY |
1 |
Swimming Pool |
18,000 |
Inactive |
|
9/30/1994 |
10239762 |
OKLAHOMA CITY |
1 |
Other |
10,000 |
Inactive |
|
1/28/1993 |
10239761 |
OKLAHOMA CITY |
1 |
Main Dwellin |
90,000 |
Inactive |
|
8/6/1992 |
10239760 |
OKLAHOMA CITY |
1 |
Main Dwellin |
60,000 |
Inactive |
| Click button on building number to access detailed information: | ||||||
|---|---|---|---|---|---|---|
| Bldg # | Vacant/Improved Land | Bldg Description | Year Built | SqFt | # Stories | |
|
1 |
Improved |
2 Story |
1993 |
2,381 |
2 Stories |
|