|
|
|
| Larry Stein Oklahoma County Assessor (405) 713-1200 - Public Access System |
|
|
|
|
|
|
| Real Property Display - Screen Produced 3/11/2026 11:43:03 PM | ||||
|---|---|---|---|---|
| Account: R267012970 | Type: Residential | Location: |
21068 E RENO AVE |
|
| Building Name/Occupant: |
|
UNINCORPORATED |
||
| Owner Name 1: | PRUITT DOUGLAS L & SYLVIA L LF EST |
Parcel PIN#: |
1004-26-701-2970 |
|
| Owner Name 2: | PRUITT BRUCE ELLIOTT | 1/4 section #: |
1004 |
|
| Owner Name 3: | Parent Acct: |
|
||
| Billing Address: | PO BOX 1093 | Tax District: |
|
|
| City, State, Zip | HARRAH, OK 73045-1093 | School System: |
Harrah #7 |
|
|
Country: (If noted) |
Land Size: |
7.2600 Acres |
||
|
Land Value: 97,502 |
|
|||
|
Sect 1-T11N-R1E Qtr NW |
POTTAWATOMIE TOWNSHIP
Block
000
Lot
000
|
|||
| Full Legal Description: POTTAWATOMIE TOWNSHIP PT OF NW4 SEC 1 11N 1E BEG 361.39FT E & 658.88FT S OF NW/C OF NW4 TH E961.53FT S329.63FT W961.53FT N329.44FT TO BEG OR TRS 1 & 1 A |
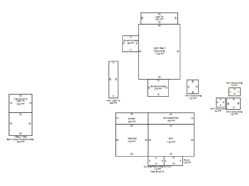
| Photo & Sketch (if available) | Comp Sales (ordered by relevancy) |
|
||||||||||||||||||
|
||||||||||||||||||||
| Value History (*The County Treasurer 405-713-1300 posts & collects actual tax amounts. Contact information HERE) | |||||||||||||
|---|---|---|---|---|---|---|---|---|---|---|---|---|---|
| Year | Market Value | Taxable Mkt Value | Gross Assessed | Exemption | Net Assessed | Millage | Est. Tax | Tax Savings | |||||
|
2025 |
220,500 |
69,152 |
7,606 |
1,000 |
6,606 |
107.54 |
$710 |
$1,898 |
|||||
|
2024 |
212,000 |
69,152 |
7,606 |
1,000 |
6,606 |
110.62 |
$731 |
$1,849 |
|||||
|
2023 |
193,500 |
69,152 |
7,606 |
1,000 |
6,606 |
97.88 |
$647 |
$1,437 |
|||||
|
2022 |
164,000 |
69,152 |
7,606 |
1,000 |
6,606 |
99.50 |
$657 |
$1,138 |
|||||
|
2021 |
137,500 |
69,152 |
7,606 |
1,000 |
6,606 |
99.52 |
$658 |
$848 |
|||||
| Property Account Status/Adjustments/Exemptions | ||
|---|---|---|
| Account # | Exemption Description | Amount |
|
R267012970 |
Freeze Senior Valuation |
0 |
|
R267012970 |
3% Cap Homestead |
0 |
|
R267012970 |
Homestead |
1,000 |
| Property Deed Transaction History (Recorded in the County Clerk's Office) | |||||||
|---|---|---|---|---|---|---|---|
| Date | Type | Book | Page | Price | Grantor | Grantee | |
|
8/4/2009 |
|
Deeds |
$0 |
PRUITT DOUGLAS L & SYLVIA L |
PRUITT DOUGLAS L & SYLVIA L LF EST |
||
|
11/11/1911 |
|
Historical |
$0 |
|
PRUITT DOUGLAS L & SYLVIA L |
||
| Last Mailed Notice of Value (N.O.V.) Information/History | ||||||||
|---|---|---|---|---|---|---|---|---|
| Year | Date | Market Value | Taxable Market Value | Gross Assessed | Exemption | Net Assessed | ||
|
2025 |
01/31/2025 |
220,500 |
69,152 |
7,606 |
1,000 |
6,606 |
||
|
2024 |
01/22/2024 |
212,000 |
69,152 |
7,606 |
1,000 |
6,606 |
||
|
2023 |
01/23/2023 |
193,500 |
69,152 |
7,606 |
1,000 |
6,606 |
||
|
2022 |
02/22/2022 |
164,000 |
69,152 |
7,606 |
1,000 |
6,606 |
||
|
2021 |
02/24/2021 |
137,500 |
69,152 |
7,606 |
1,000 |
6,606 |
||
| Property Building Permit History | |||||||||||
|---|---|---|---|---|---|---|---|---|---|---|---|
| Issued | Permit # | Provided by | Bldg # | Description | Est Construction Cost | Status | |||||
| No Building Permit records returned. | |||||||||||
| Click button on building number to access detailed information: | ||||||
|---|---|---|---|---|---|---|
| Bldg # | Vacant/Improved Land | Bldg Description | Year Built | SqFt | # Stories | |
|
1 |
Improved |
Ranch 1 Story |
1951 |
1,120 |
1 Stories |
|