|
|
|
| Larry Stein Oklahoma County Assessor (405) 713-1200 - Public Access System |
|
|
|
|
|
|
| Real Property Display - Screen Produced 3/14/2026 8:25:29 AM | ||||
|---|---|---|---|---|
| Account: R144443895 | Type: Residential | Location: |
7705 S SUNNYLAND RD |
|
| Building Name/Occupant: |
|
OKLAHOMA CITY |
||
| Owner Name 1: | RIVERA FREDERICO |
Parcel PIN#: |
1129-14-444-3895 |
|
| Owner Name 2: | 1/4 section #: |
1129 |
||
| Owner Name 3: | Parent Acct: |
|
||
| Billing Address: | 7705 SUNNYLAND RD | Tax District: |
|
|
| City, State, Zip | NEWALLA, OK 74857-8385 | School System: |
McLoud #1 |
|
|
Country: (If noted) |
Land Size: |
5.0000 Acres |
||
|
Land Value: 55,000 |
|
|||
|
Sect 33-T11N-R1E Qtr NE |
UNPLTD PT SEC 33 11N 1E
Block
000
Lot
000
|
|||
| Full Legal Description: UNPLTD PT NE4 SEC 33 11N 1E N 1/2 OF SW4 OF NW4 OF NE4 |
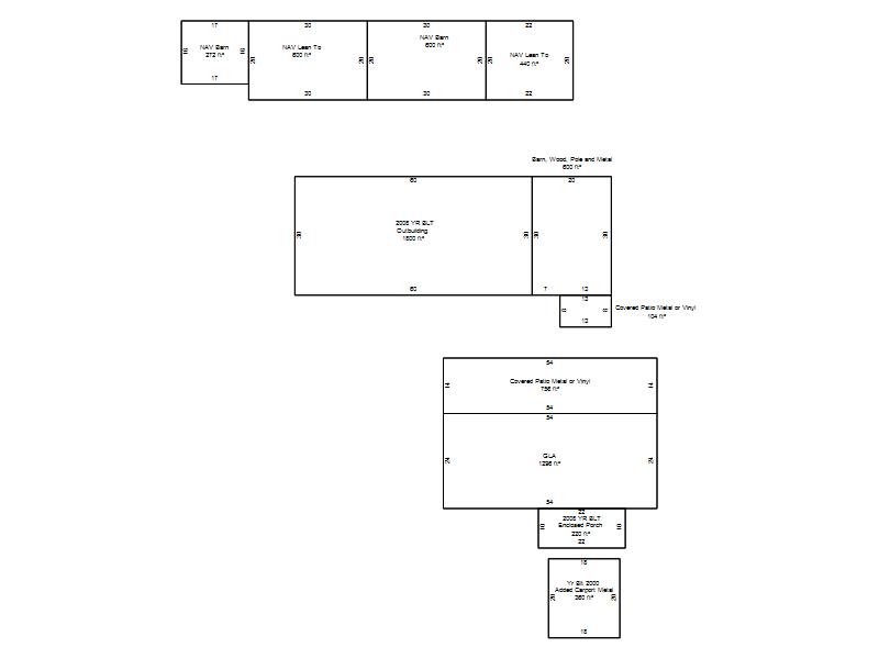
| Photo & Sketch (if available) | Comp Sales (ordered by relevancy) |
|
||||||||||||||||||
|
||||||||||||||||||||
| Value History (*The County Treasurer 405-713-1300 posts & collects actual tax amounts. Contact information HERE) | |||||||||||||
|---|---|---|---|---|---|---|---|---|---|---|---|---|---|
| Year | Market Value | Taxable Mkt Value | Gross Assessed | Exemption | Net Assessed | Millage | Est. Tax | Tax Savings | |||||
|
2025 |
298,500 |
140,650 |
15,470 |
0 |
15,470 |
107.58 |
$1,664 |
$1,868 |
|||||
|
2024 |
283,000 |
133,953 |
14,734 |
0 |
14,734 |
108.01 |
$1,592 |
$1,771 |
|||||
|
2023 |
255,500 |
127,575 |
14,033 |
0 |
14,033 |
106.94 |
$1,501 |
$1,505 |
|||||
|
2022 |
121,500 |
121,500 |
13,365 |
0 |
13,365 |
108.95 |
$1,456 |
$0 |
|||||
|
2021 |
121,500 |
121,500 |
13,365 |
0 |
13,365 |
135.78 |
$1,815 |
$0 |
|||||
| Property Account Status/Adjustments/Exemptions | ||
|---|---|---|
| Account # | Exemption Description | Amount |
|
R144443895 |
5% Capped Account |
0 |
| Property Deed Transaction History (Recorded in the County Clerk's Office) | |||||||
|---|---|---|---|---|---|---|---|
| Date | Type | Book | Page | Price | Grantor | Grantee | |
|
5/5/2017 |
|
Deeds |
$115,000 |
BYLER WILLIAM KIRK SR LIFE ESTATE C/O ROBIN L BYLER RAMAGHI |
RIVERA FREDERICO |
||
|
6/9/2016 |
|
Deeds |
$0 |
BYLER WILLIAM KIRK SR & ANNA E |
BYLER WILLIAM KIRK SR |
||
|
6/9/2016 |
|
Deeds |
$0 |
BYLER WILLIAM KIRK SR |
BYLER WILLIAM KIRK SR LIFE ESTATE |
||
|
4/1/1983 |
|
Historical |
$0 |
|
BYLER WILLIAM KIRK SR & ANNA E |
||
| Last Mailed Notice of Value (N.O.V.) Information/History | ||||||||
|---|---|---|---|---|---|---|---|---|
| Year | Date | Market Value | Taxable Market Value | Gross Assessed | Exemption | Net Assessed | ||
|
2026 |
02/06/2026 |
294,000 |
147,682 |
16,244 |
0 |
16,244 |
||
|
2025 |
01/31/2025 |
298,500 |
140,650 |
15,470 |
0 |
15,470 |
||
|
2024 |
01/22/2024 |
283,000 |
133,953 |
14,734 |
0 |
14,734 |
||
|
2023 |
01/23/2023 |
255,500 |
127,575 |
14,033 |
0 |
14,033 |
||
|
2018 |
04/09/2018 |
121,500 |
121,500 |
13,365 |
0 |
13,365 |
||
| Property Building Permit History | ||||||
|---|---|---|---|---|---|---|
| Issued | Permit # | Provided by | Bldg # | Description | Est Construction Cost | Status |
|
4/30/2007 |
10338876 |
OKLAHOMA CITY |
1 |
Storage Buil |
25,000 |
Inactive |
| Click button on building number to access detailed information: | ||||||
|---|---|---|---|---|---|---|
| Bldg # | Vacant/Improved Land | Bldg Description | Year Built | SqFt | # Stories | |
|
1 |
Improved |
Ranch 1 Story |
1982 |
1,296 |
1 Stories |
|