|
|
|
| Larry Stein Oklahoma County Assessor (405) 713-1200 - Public Access System |
|
|
|
|
|
|
| Real Property Display - Screen Produced 3/11/2026 11:41:17 PM | ||||
|---|---|---|---|---|
| Account: R267012995 | Type: Residential | Location: |
600 S HARRAH RD |
|
| Building Name/Occupant: |
|
UNINCORPORATED |
||
| Owner Name 1: | STEWART SHIRLEY L |
Parcel PIN#: |
1004-26-701-2995 |
|
| Owner Name 2: | 1/4 section #: |
1004 |
||
| Owner Name 3: | Parent Acct: |
|
||
| Billing Address: | 600 S HARRAH RD | Tax District: |
|
|
| City, State, Zip | HARRAH, OK 73045 | School System: |
Harrah #7 |
|
|
Country: (If noted) |
Land Size: |
0.8500 Acres |
||
|
Land Value: 13,430 |
|
|||
|
Sect 1-T11N-R1E Qtr NW |
POTTAWATOMIE TOWNSHIP
Block
000
Lot
000
|
|||
| Full Legal Description: POTTAWATOMIE TOWNSHIP PT NW4 SEC 1 11N 1E BEG SW/C OF NW4 TH N200FT E270FT S200FT W270FT TO BEG AKA TR 3 EX W85FT FOR RD |
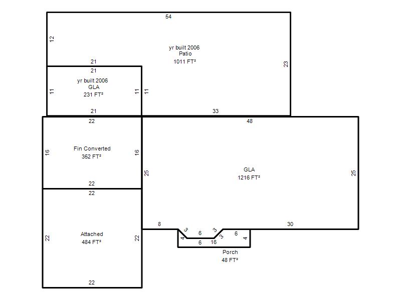
| Photo & Sketch (if available) | Comp Sales (ordered by relevancy) |
|
||||||||||||||||||
|
||||||||||||||||||||
| Value History (*The County Treasurer 405-713-1300 posts & collects actual tax amounts. Contact information HERE) | |||||||||||||
|---|---|---|---|---|---|---|---|---|---|---|---|---|---|
| Year | Market Value | Taxable Mkt Value | Gross Assessed | Exemption | Net Assessed | Millage | Est. Tax | Tax Savings | |||||
|
2025 |
231,000 |
144,000 |
15,840 |
1,000 |
14,840 |
107.54 |
$1,596 |
$1,137 |
|||||
|
2024 |
226,500 |
144,000 |
15,840 |
1,000 |
14,840 |
110.62 |
$1,642 |
$1,114 |
|||||
|
2023 |
216,000 |
144,000 |
15,840 |
1,000 |
14,840 |
97.88 |
$1,453 |
$873 |
|||||
|
2022 |
189,000 |
144,000 |
15,840 |
1,000 |
14,840 |
99.50 |
$1,477 |
$592 |
|||||
|
2021 |
156,000 |
144,000 |
15,840 |
1,000 |
14,840 |
99.52 |
$1,477 |
$231 |
|||||
| Property Account Status/Adjustments/Exemptions | ||
|---|---|---|
| Account # | Exemption Description | Amount |
|
R267012995 |
Freeze Senior Valuation |
0 |
|
R267012995 |
Homestead |
1,000 |
|
R267012995 |
3% Cap Homestead |
0 |
| Property Deed Transaction History (Recorded in the County Clerk's Office) | |||||||
|---|---|---|---|---|---|---|---|
| Date | Type | Book | Page | Price | Grantor | Grantee | |
|
12/18/2006 |
|
Deeds |
$0 |
FINLEY ROBERT LEE |
STEWART SHIRLEY L |
||
|
1/11/1989 |
|
Historical |
$0 |
FINLEY SHIRLEY LEA |
FINLEY ROBERT LEE & SHIRLEY L |
||
|
5/12/1988 |
|
Historical |
$0 |
COUTLER SHIRLEY LEA & MICHAEL |
FINLEY SHIRLEY LEA |
||
|
4/1/1985 |
|
Historical |
$0 |
|
COUTLER SHIRLEY LEA & MICHAEL |
||
| Last Mailed Notice of Value (N.O.V.) Information/History | ||||||||
|---|---|---|---|---|---|---|---|---|
| Year | Date | Market Value | Taxable Market Value | Gross Assessed | Exemption | Net Assessed | ||
|
2025 |
01/31/2025 |
231,000 |
144,000 |
15,840 |
1,000 |
14,840 |
||
|
2024 |
01/22/2024 |
226,500 |
144,000 |
15,840 |
1,000 |
14,840 |
||
|
2023 |
01/23/2023 |
216,000 |
144,000 |
15,840 |
1,000 |
14,840 |
||
|
2022 |
02/22/2022 |
189,000 |
144,000 |
15,840 |
1,000 |
14,840 |
||
|
2021 |
02/24/2021 |
156,000 |
144,000 |
15,840 |
1,000 |
14,840 |
||
| Property Building Permit History | |||||||||||
|---|---|---|---|---|---|---|---|---|---|---|---|
| Issued | Permit # | Provided by | Bldg # | Description | Est Construction Cost | Status | |||||
| No Building Permit records returned. | |||||||||||
| Click button on building number to access detailed information: | ||||||
|---|---|---|---|---|---|---|
| Bldg # | Vacant/Improved Land | Bldg Description | Year Built | SqFt | # Stories | |
|
1 |
Improved |
Ranch 1 Story |
1971 |
1,447 |
1 Stories |
|