|
|
|
| Larry Stein Oklahoma County Assessor (405) 713-1200 - Public Access System |
|
|
|
|
|
|
| Real Property Display - Screen Produced 3/12/2026 11:06:09 PM | ||||
|---|---|---|---|---|
| Account: R194801770 | Type: Residential | Location: |
14496 E RENO AVE |
|
| Building Name/Occupant: |
|
CHOCTAW |
||
| Owner Name 1: | BRASWELL CHESTER JR |
Parcel PIN#: |
1205-19-480-1770 |
|
| Owner Name 2: | INGRAM RUTH E | 1/4 section #: |
1205 |
|
| Owner Name 3: | Parent Acct: |
|
||
| Billing Address: | 14496 E RENO AVE | Tax District: |
|
|
| City, State, Zip | CHOCTAW, OK 73020 | School System: |
Choctaw #4 |
|
|
Country: (If noted) |
UNITED STATES |
Land Size: |
2.9600 Acres |
|
|
Land Value: 46,576 |
|
|||
|
Sect 2-T11N-R1W Qtr NE |
UNPLTD PT SEC 02 11N 1W
Block
000
Lot
000
|
|||
| Full Legal Description: UNPLTD PT NE4 SEC 2 11N 1W BEING THE N624.57FT OF W275FT OF GOVT LOT 2 EX E60FT FOR R/W |
| Photo & Sketch (if available) | Comp Sales (ordered by relevancy) |
|
||||||||||||||||||
|
||||||||||||||||||||
| Value History (*The County Treasurer 405-713-1300 posts & collects actual tax amounts. Contact information HERE) | |||||||||||||
|---|---|---|---|---|---|---|---|---|---|---|---|---|---|
| Year | Market Value | Taxable Mkt Value | Gross Assessed | Exemption | Net Assessed | Millage | Est. Tax | Tax Savings | |||||
|
2025 |
215,500 |
135,037 |
14,853 |
0 |
14,853 |
117.21 |
$1,741 |
$1,037 |
|||||
|
2024 |
200,500 |
128,607 |
14,146 |
1,000 |
13,146 |
116.35 |
$1,530 |
$1,036 |
|||||
|
2023 |
187,500 |
124,862 |
13,734 |
1,000 |
12,734 |
118.06 |
$1,503 |
$932 |
|||||
|
2022 |
168,500 |
121,226 |
13,334 |
1,000 |
12,334 |
116.14 |
$1,433 |
$720 |
|||||
|
2021 |
144,500 |
117,696 |
12,946 |
1,000 |
11,946 |
116.17 |
$1,388 |
$459 |
|||||
| Property Account Status/Adjustments/Exemptions | ||
|---|---|---|
| Account # | Exemption Description | Amount |
|
R194801770 |
5% Capped Account |
0 |
| Property Deed Transaction History (Recorded in the County Clerk's Office) | |||||||
|---|---|---|---|---|---|---|---|
| Date | Type | Book | Page | Price | Grantor | Grantee | |
|
9/7/2022 |
|
Deeds |
$0 |
INGRAM PAUL KEITH |
BRASWELL PAUL KEITH |
||
|
8/11/2022 |
|
Deeds |
$0 |
BRASWELL ELSIE J |
INGRAM RUTH E |
||
|
8/11/2022 |
|
Deeds |
$0 |
INGRAM RUTH E |
INGRAM PAUL KEITH |
||
|
11/29/1995 |
|
Historical |
$0 |
INGRAM DAVID W & CAROL L |
BRASWELL CHESTER JR & ELSIE J |
||
|
6/1/1970 |
|
Historical |
$0 |
|
INGRAM DAVID W & CAROL L |
||
| Last Mailed Notice of Value (N.O.V.) Information/History | ||||||||
|---|---|---|---|---|---|---|---|---|
| Year | Date | Market Value | Taxable Market Value | Gross Assessed | Exemption | Net Assessed | ||
|
2026 |
02/06/2026 |
218,000 |
141,788 |
15,596 |
0 |
15,596 |
||
|
2025 |
01/31/2025 |
215,500 |
135,037 |
14,853 |
0 |
14,853 |
||
|
2024 |
01/22/2024 |
200,500 |
128,607 |
14,146 |
1,000 |
13,146 |
||
|
2023 |
01/23/2023 |
187,500 |
124,862 |
13,734 |
1,000 |
12,734 |
||
|
2022 |
02/22/2022 |
168,500 |
121,226 |
13,334 |
1,000 |
12,334 |
||
| Property Building Permit History | |||||||||||
|---|---|---|---|---|---|---|---|---|---|---|---|
| Issued | Permit # | Provided by | Bldg # | Description | Est Construction Cost | Status | |||||
| No Building Permit records returned. | |||||||||||
| Click button on building number to access detailed information: | ||||||
|---|---|---|---|---|---|---|
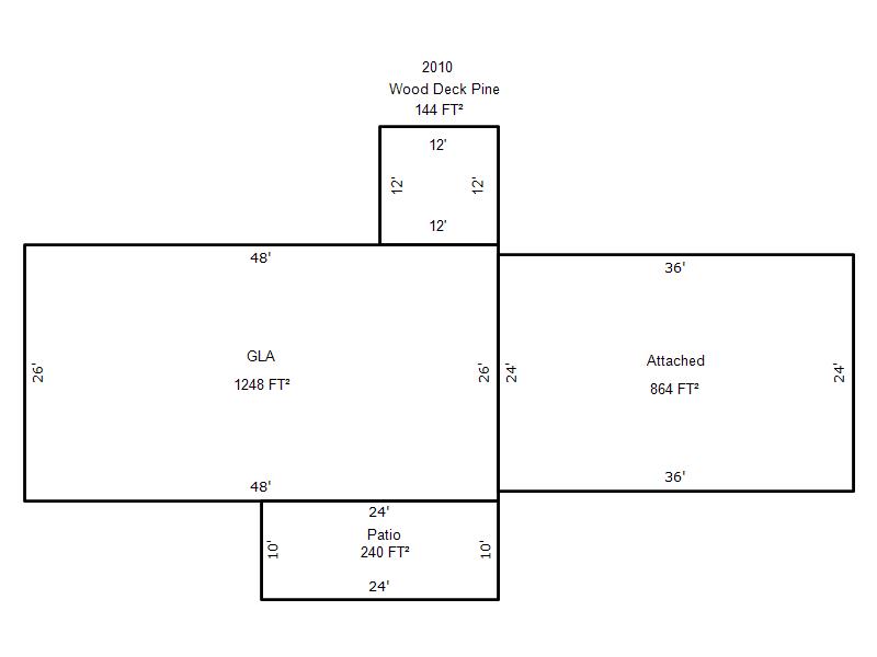
| Bldg # | Vacant/Improved Land | Bldg Description | Year Built | SqFt | # Stories | |
|
1 |
Improved |
Ranch 1 Story |
1973 |
1,248 |
1 Stories |
|