|
|
|
| Larry Stein Oklahoma County Assessor (405) 713-1200 - Public Access System |
|
|
|
|
|
|
| Real Property Display - Screen Produced 3/12/2026 11:06:08 PM | ||||
|---|---|---|---|---|
| Account: R194803250 | Type: Residential | Location: |
14565 SE 10TH ST |
|
| Building Name/Occupant: |
|
CHOCTAW |
||
| Owner Name 1: | FENRIR SKYRAN W |
Parcel PIN#: |
1206-19-480-3250 |
|
| Owner Name 2: | 1/4 section #: |
1206 |
||
| Owner Name 3: | Parent Acct: |
|
||
| Billing Address: | 14565 SE 10TH ST | Tax District: |
|
|
| City, State, Zip | CHOCTAW, OK 73020-7001 | School System: |
Choctaw #4 |
|
|
Country: (If noted) |
Land Size: |
9.2900 Acres |
||
|
Land Value: 72,960 |
|
|||
|
Sect 2-T11N-R1W Qtr SE |
UNPLTD PT SEC 02 11N 1W
Block
000
Lot
000
|
|||
| Full Legal Description: UNPLTD PT SEC 02 11N 1W 000 000 NE4 OF NW4 OF SE4 EX N&E 25FT SEC 2 11N 1W |
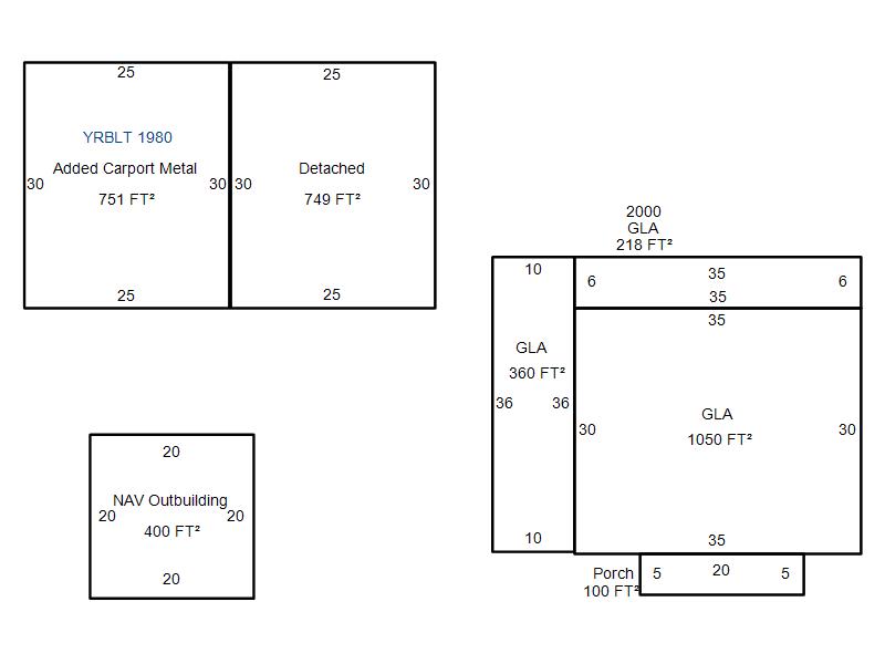
| Photo & Sketch (if available) | Comp Sales (ordered by relevancy) |
|
||||||||||||||||||
|
||||||||||||||||||||
| Value History (*The County Treasurer 405-713-1300 posts & collects actual tax amounts. Contact information HERE) | |||||||||||||
|---|---|---|---|---|---|---|---|---|---|---|---|---|---|
| Year | Market Value | Taxable Mkt Value | Gross Assessed | Exemption | Net Assessed | Millage | Est. Tax | Tax Savings | |||||
|
2025 |
185,000 |
122,985 |
13,528 |
1,000 |
12,528 |
117.21 |
$1,468 |
$917 |
|||||
|
2024 |
177,500 |
119,403 |
13,133 |
1,000 |
12,133 |
116.35 |
$1,412 |
$860 |
|||||
|
2023 |
166,000 |
115,926 |
12,751 |
2,000 |
10,751 |
118.06 |
$1,269 |
$886 |
|||||
|
2022 |
180,000 |
112,550 |
12,379 |
1,000 |
11,379 |
116.14 |
$1,322 |
$978 |
|||||
|
2021 |
180,000 |
109,272 |
12,019 |
1,000 |
11,019 |
116.17 |
$1,280 |
$1,020 |
|||||
| Property Account Status/Adjustments/Exemptions | ||
|---|---|---|
| Account # | Exemption Description | Amount |
|
R194803250 |
Additional Homestead |
1,000 |
|
R194803250 |
Homestead |
1,000 |
|
R194803250 |
3% Cap Homestead |
0 |
| Property Deed Transaction History (Recorded in the County Clerk's Office) | ||||||||||
|---|---|---|---|---|---|---|---|---|---|---|
| Date | Type | Book | Page | Price | Grantor | Grantee | ||||
|
3/16/2017 |
|
Deeds |
$0 |
FENRIR JOHN SKYRAN C |
FENRIR SKYRAN W |
|||||
|
1/24/2017 |
|
Deeds |
$0 |
HAMMOND JOHN C |
FENRIR JOHN SKYRAN C |
|||||
|
7/23/2009 |
|
Hmstd Off & |
$0 |
HAMMOND JOHN M |
HAMMOND JOHN C |
|||||
|
8/7/2006 |
|
Deeds |
$0 |
HAMMOND SARAH B |
HAMMOND JOHN M |
|||||
|
8/7/2006 |
|
Deeds |
$0 |
HAMMOND JOHN M |
HAMMOND JOHN M HAMMOND JOHN C |
|||||
| Last Mailed Notice of Value (N.O.V.) Information/History | ||||||||
|---|---|---|---|---|---|---|---|---|
| Year | Date | Market Value | Taxable Market Value | Gross Assessed | Exemption | Net Assessed | ||
|
2026 |
02/06/2026 |
187,000 |
126,674 |
13,933 |
1,000 |
12,933 |
||
|
2025 |
01/31/2025 |
185,000 |
122,985 |
13,528 |
1,000 |
12,528 |
||
|
2024 |
01/22/2024 |
177,500 |
119,403 |
13,133 |
1,000 |
12,133 |
||
|
2023 |
01/23/2023 |
166,000 |
115,926 |
12,751 |
1,000 |
11,751 |
||
|
2022 |
02/22/2022 |
180,000 |
112,550 |
12,379 |
1,000 |
11,379 |
||
| Property Building Permit History | |||||||||||
|---|---|---|---|---|---|---|---|---|---|---|---|
| Issued | Permit # | Provided by | Bldg # | Description | Est Construction Cost | Status | |||||
| No Building Permit records returned. | |||||||||||
| Click button on building number to access detailed information: | ||||||
|---|---|---|---|---|---|---|
| Bldg # | Vacant/Improved Land | Bldg Description | Year Built | SqFt | # Stories | |
|
1 |
Improved |
Ranch 1 Story |
1955 |
1,628 |
1 Stories |
|