|
|
|
| Larry Stein Oklahoma County Assessor (405) 713-1200 - Public Access System |
|
|
|
|
|
|
| Real Property Display - Screen Produced 3/12/2026 11:05:26 PM | ||||
|---|---|---|---|---|
| Account: R194805510 | Type: Residential | Location: |
14819 SE 15TH ST |
|
| Building Name/Occupant: |
|
CHOCTAW |
||
| Owner Name 1: | DICKERSON FRANK R |
Parcel PIN#: |
1206-19-480-5510 |
|
| Owner Name 2: | 1/4 section #: |
1206 |
||
| Owner Name 3: | Parent Acct: |
|
||
| Billing Address: | 14779 SE 15TH ST | Tax District: |
|
|
| City, State, Zip | CHOCTAW, OK 73020 | School System: |
Choctaw #4 |
|
|
Country: (If noted) |
Land Size: |
5.1800 Acres |
||
|
Land Value: 58,015 |
|
|||
|
Sect 2-T11N-R1W Qtr SE |
UNPLTD PT SEC 02 11N 1W
Block
000
Lot
000
|
|||
| Full Legal Description: UNPLTD PT SEC 02 11N 1W 000 000 PT OF SE4 SEC 2 11N 1W W 1/2 OF SW4 OF SE4 OF SE4 & BEG AT SW/C OF E 1/2 OF SW4 OF SE4 OF SE4 TH E47FT N186FT W47FT S186FT TO BEG SUBJ TO ESMST OF RECORD |
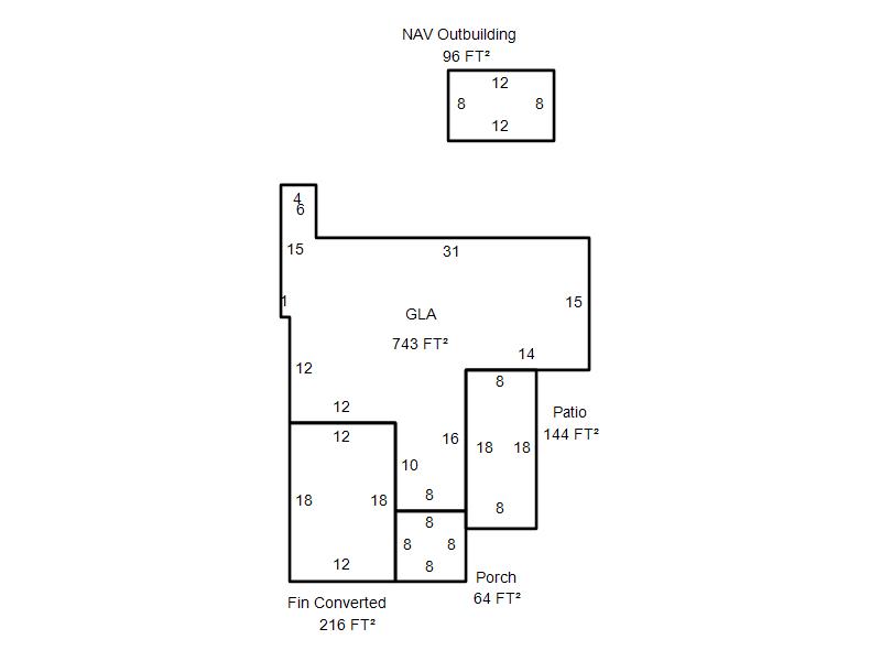
| Photo & Sketch (if available) | Comp Sales (ordered by relevancy) |
|
||||||||||||||||||
|
||||||||||||||||||||
| Value History (*The County Treasurer 405-713-1300 posts & collects actual tax amounts. Contact information HERE) | |||||||||||||
|---|---|---|---|---|---|---|---|---|---|---|---|---|---|
| Year | Market Value | Taxable Mkt Value | Gross Assessed | Exemption | Net Assessed | Millage | Est. Tax | Tax Savings | |||||
|
2025 |
117,000 |
95,143 |
10,465 |
0 |
10,465 |
117.21 |
$1,227 |
$282 |
|||||
|
2024 |
107,000 |
90,613 |
9,966 |
0 |
9,966 |
116.35 |
$1,160 |
$210 |
|||||
|
2023 |
96,500 |
86,299 |
9,492 |
0 |
9,492 |
118.06 |
$1,121 |
$132 |
|||||
|
2022 |
124,000 |
82,190 |
9,040 |
0 |
9,040 |
116.14 |
$1,050 |
$534 |
|||||
|
2021 |
124,000 |
78,277 |
8,610 |
0 |
8,610 |
116.17 |
$1,000 |
$584 |
|||||
| Property Account Status/Adjustments/Exemptions | ||
|---|---|---|
| Account # | Exemption Description | Amount |
|
R194805510 |
5% Capped Account |
0 |
| Property Deed Transaction History (Recorded in the County Clerk's Office) | |||||||
|---|---|---|---|---|---|---|---|
| Date | Type | Book | Page | Price | Grantor | Grantee | |
|
9/12/2017 |
|
Deeds |
$75,000 |
HARRIS SUSAN K |
DICKERSON FRANK R |
||
|
7/14/2003 |
|
Deeds |
$0 |
HARRIS GLEN D |
HARRIS SUSAN K |
||
|
7/1/1986 |
|
Historical |
$0 |
|
HARRIS GLEN D JR & SUSAN K |
||
| Last Mailed Notice of Value (N.O.V.) Information/History | ||||||||
|---|---|---|---|---|---|---|---|---|
| Year | Date | Market Value | Taxable Market Value | Gross Assessed | Exemption | Net Assessed | ||
|
2026 |
02/06/2026 |
119,500 |
99,900 |
10,988 |
0 |
10,988 |
||
|
2025 |
01/31/2025 |
117,000 |
95,143 |
10,465 |
0 |
10,465 |
||
|
2024 |
01/22/2024 |
107,000 |
90,613 |
9,966 |
0 |
9,966 |
||
|
2023 |
01/23/2023 |
96,500 |
86,299 |
9,492 |
0 |
9,492 |
||
|
2022 |
02/22/2022 |
124,000 |
82,190 |
9,040 |
0 |
9,040 |
||
| Property Building Permit History | |||||||||||
|---|---|---|---|---|---|---|---|---|---|---|---|
| Issued | Permit # | Provided by | Bldg # | Description | Est Construction Cost | Status | |||||
| No Building Permit records returned. | |||||||||||
| Click button on building number to access detailed information: | ||||||
|---|---|---|---|---|---|---|
| Bldg # | Vacant/Improved Land | Bldg Description | Year Built | SqFt | # Stories | |
|
1 |
Improved |
Ranch 1 Story |
1940 |
743 |
1 Stories |
|