|
|
|
| Larry Stein Oklahoma County Assessor (405) 713-1200 - Public Access System |
|
|
|
|
|
|
| Real Property Display - Screen Produced 3/11/2026 11:41:43 PM | ||||
|---|---|---|---|---|
| Account: R267013020 | Type: Residential | Location: |
21300 E RENO AVE |
|
| Building Name/Occupant: |
|
UNINCORPORATED |
||
| Owner Name 1: | M&M CAPITAL INVESTMENTS LLC |
Parcel PIN#: |
1004-26-701-3020 |
|
| Owner Name 2: | 1/4 section #: |
1004 |
||
| Owner Name 3: | Parent Acct: |
|
||
| Billing Address: | PO BOX 902 | Tax District: |
|
|
| City, State, Zip | BROKEN ARROW, OK 74013-0902 | School System: |
Harrah #7 |
|
|
Country: (If noted) |
Land Size: |
3.6600 Acres |
||
|
Land Value: 57,828 |
|
|||
|
Sect 1-T11N-R1E Qtr NW |
POTTAWATOMIE TOWNSHIP
Block
000
Lot
000
|
|||
| Full Legal Description: POTTAWATOMIE TOWNSHIP PT NW4 SEC 1 11N 1E BEG 950FT E OF NW/C NW4 TH E164.88FT S417.44FT E208.72FT S242.56FT W373.6FT N660FT TO BEG CONT 3.66ACRS MORE OR LESS EX W15FT |
| Photo & Sketch (if available) | Comp Sales (ordered by relevancy) |
|
||||||||||||||||||
|
||||||||||||||||||||
| Value History (*The County Treasurer 405-713-1300 posts & collects actual tax amounts. Contact information HERE) | |||||||||||||
|---|---|---|---|---|---|---|---|---|---|---|---|---|---|
| Year | Market Value | Taxable Mkt Value | Gross Assessed | Exemption | Net Assessed | Millage | Est. Tax | Tax Savings | |||||
|
2025 |
173,500 |
170,625 |
18,768 |
0 |
18,768 |
107.54 |
$2,018 |
$34 |
|||||
|
2024 |
162,500 |
162,500 |
17,875 |
0 |
17,875 |
110.62 |
$1,977 |
$0 |
|||||
|
2023 |
145,500 |
92,570 |
10,181 |
0 |
10,181 |
97.88 |
$997 |
$570 |
|||||
|
2022 |
125,500 |
88,162 |
9,697 |
0 |
9,697 |
99.50 |
$965 |
$409 |
|||||
|
2021 |
104,000 |
83,964 |
9,236 |
1,000 |
8,236 |
99.52 |
$820 |
$319 |
|||||
| Property Account Status/Adjustments/Exemptions | ||
|---|---|---|
| Account # | Exemption Description | Amount |
|
R267013020 |
5% Capped Account |
0 |
| Property Deed Transaction History (Recorded in the County Clerk's Office) | ||||||||||
|---|---|---|---|---|---|---|---|---|---|---|
| Date | Type | Book | Page | Price | Grantor | Grantee | ||||
|
4/5/2023 |
|
Deeds |
$0 |
COURTEMANCHE STEPHEN A |
COURTEMANCHE SHERRI K |
|||||
|
4/5/2023 |
|
Mult Parcel |
$175,000 |
COURTEMANCHE SHERRI K |
M&M CAPITAL INVESTMENTS LLC |
|||||
|
4/24/2006 |
|
Deeds |
$0 |
COURTEMANCHE STEPHEN A |
COURTEMANCHE STEPHEN A & SHERRI K |
|||||
|
4/11/2002 |
|
Deeds |
$0 |
COURTEMANCHE STEPHEN & SHERRIE |
COURTEMANCHE STEPHEN A |
|||||
|
5/14/1999 |
|
Deeds |
$0 |
COURTEMANCHE STEPHEN & SHERRIE |
COURTEMANCHE STEPHEN & SHERRIE |
|||||
| Last Mailed Notice of Value (N.O.V.) Information/History | ||||||||
|---|---|---|---|---|---|---|---|---|
| Year | Date | Market Value | Taxable Market Value | Gross Assessed | Exemption | Net Assessed | ||
|
2025 |
01/31/2025 |
173,500 |
170,625 |
18,768 |
0 |
18,768 |
||
|
2024 |
01/22/2024 |
162,500 |
162,500 |
17,875 |
0 |
17,875 |
||
|
2023 |
01/23/2023 |
145,500 |
92,570 |
10,181 |
0 |
10,181 |
||
|
2022 |
02/22/2022 |
125,500 |
88,162 |
9,697 |
0 |
9,697 |
||
|
2021 |
02/24/2021 |
104,000 |
83,964 |
9,236 |
1,000 |
8,236 |
||
| Property Building Permit History | ||||||
|---|---|---|---|---|---|---|
| Issued | Permit # | Provided by | Bldg # | Description | Est Construction Cost | Status |
|
7/17/2000 |
10278445 |
COUNTY |
1 |
Manufactured |
14,500 |
Inactive |
| Click button on building number to access detailed information: | ||||||
|---|---|---|---|---|---|---|
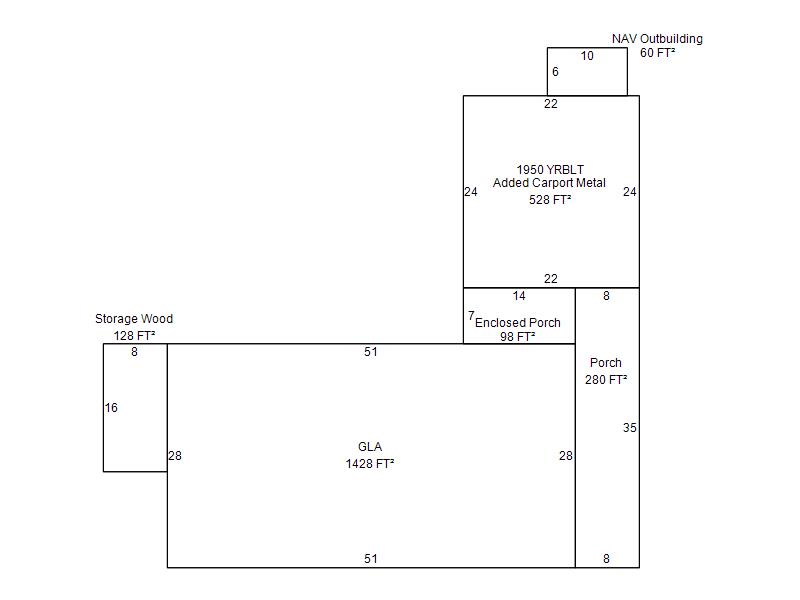
| Bldg # | Vacant/Improved Land | Bldg Description | Year Built | SqFt | # Stories | |
|
1 |
Improved |
Ranch 1 Story |
1900 |
1,428 |
1 Stories |
|