|
|
|
| Larry Stein Oklahoma County Assessor (405) 713-1200 - Public Access System |
|
|
|
|
|
|
| Real Property Display - Screen Produced 3/26/2026 2:19:58 PM | ||||
|---|---|---|---|---|
| Account: R104469530 | Type: Residential | Location: |
1101 SW 35TH ST |
|
| Building Name/Occupant: |
|
OKLAHOMA CITY |
||
| Owner Name 1: | ROCKWELL LINDA |
Parcel PIN#: |
1665-10-446-9530 |
|
| Owner Name 2: | 1/4 section #: |
1665 |
||
| Owner Name 3: | Parent Acct: |
|
||
| Billing Address: | 1101 SW 35TH ST | Tax District: |
|
|
| City, State, Zip | OKLAHOMA CITY, OK 73109-2910 | School System: |
Oklahoma City #89 |
|
|
Country: (If noted) |
Land Size: |
0.1607 Acres |
||
|
Land Value: 12,600 |
|
|||
|
Sect 17-T11N-R3W Qtr NE |
ACADEMY HEIGHTS ADD
Block
007
Lot
000
|
|||
| Full Legal Description: ACADEMY HEIGHTS ADD 007 000 LOTS 11 & 12 |
| Photo & Sketch (if available) | Comp Sales (ordered by relevancy) |
|
||||||||||||||||||
|
||||||||||||||||||||
| Value History (*The County Treasurer 405-713-1300 posts & collects actual tax amounts. Contact information HERE) | |||||||||||||
|---|---|---|---|---|---|---|---|---|---|---|---|---|---|
| Year | Market Value | Taxable Mkt Value | Gross Assessed | Exemption | Net Assessed | Millage | Est. Tax | Tax Savings | |||||
|
2026 |
125,000 |
84,872 |
9,335 |
1,000 |
8,335 |
119.02 |
$992 |
$644 |
|||||
|
2025 |
120,500 |
82,400 |
9,064 |
1,000 |
8,064 |
119.02 |
$960 |
$618 |
|||||
|
2024 |
109,500 |
80,000 |
8,799 |
1,000 |
7,799 |
119.70 |
$934 |
$508 |
|||||
|
2023 |
100,000 |
77,670 |
8,542 |
1,000 |
7,542 |
118.33 |
$893 |
$409 |
|||||
|
2022 |
92,500 |
75,408 |
8,294 |
1,000 |
7,294 |
112.69 |
$822 |
$325 |
|||||
| Property Account Status/Adjustments/Exemptions | ||
|---|---|---|
| Account # | Exemption Description | Amount |
|
R104469530 |
3% Cap Homestead |
0 |
|
R104469530 |
Homestead |
1,000 |
| Property Deed Transaction History (Recorded in the County Clerk's Office) | |||||||
|---|---|---|---|---|---|---|---|
| Date | Type | Book | Page | Price | Grantor | Grantee | |
|
6/21/1994 |
|
Historical |
$36,000 |
AMBROSE WYLDA R |
ROCKWELL LINDA |
||
|
12/5/1989 |
|
Historical |
$0 |
JENNINGS N R |
AMBROSE WYLDA R |
||
|
11/11/1911 |
|
Historical |
$0 |
|
JENNINGS N R |
||
| Last Mailed Notice of Value (N.O.V.) Information/History | ||||||||
|---|---|---|---|---|---|---|---|---|
| Year | Date | Market Value | Taxable Market Value | Gross Assessed | Exemption | Net Assessed | ||
|
2026 |
02/06/2026 |
125,000 |
84,872 |
9,335 |
1,000 |
8,335 |
||
|
2025 |
01/31/2025 |
120,500 |
82,400 |
9,064 |
1,000 |
8,064 |
||
|
2024 |
01/22/2024 |
109,500 |
80,000 |
8,799 |
1,000 |
7,799 |
||
|
2023 |
01/23/2023 |
100,000 |
77,670 |
8,542 |
1,000 |
7,542 |
||
|
2022 |
02/22/2022 |
92,500 |
75,408 |
8,293 |
1,000 |
7,293 |
||
| Property Building Permit History | |||||||||||
|---|---|---|---|---|---|---|---|---|---|---|---|
| Issued | Permit # | Provided by | Bldg # | Description | Est Construction Cost | Status | |||||
| No Building Permit records returned. | |||||||||||
| Click button on building number to access detailed information: | ||||||
|---|---|---|---|---|---|---|
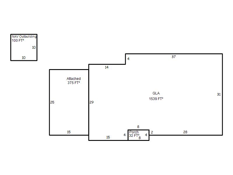
| Bldg # | Vacant/Improved Land | Bldg Description | Year Built | SqFt | # Stories | |
|
1 |
Improved |
Ranch 1 Story |
1952 |
1,539 |
1 Stories |
|