|
|
|
| Larry Stein Oklahoma County Assessor (405) 713-1200 - Public Access System |
|
|
|
|
|
|
| Real Property Display - Screen Produced 3/26/2026 11:29:50 AM | ||||
|---|---|---|---|---|
| Account: R104469570 | Type: Residential | Location: |
3500 S MCKINLEY AVE |
|
| Building Name/Occupant: |
|
OKLAHOMA CITY |
||
| Owner Name 1: | MORALES BRANDON J |
Parcel PIN#: |
1665-10-446-9570 |
|
| Owner Name 2: | 1/4 section #: |
1665 |
||
| Owner Name 3: | Parent Acct: |
|
||
| Billing Address: | 3500 S MCKINLEY AVE | Tax District: |
|
|
| City, State, Zip | OKLAHOMA CITY, OK 73109-2936 | School System: |
Oklahoma City #89 |
|
|
Country: (If noted) |
Land Size: |
0.1607 Acres |
||
|
Land Value: 12,600 |
|
|||
|
Sect 17-T11N-R3W Qtr NE |
ACADEMY HEIGHTS ADD
Block
007
Lot
000
|
|||
| Full Legal Description: ACADEMY HEIGHTS ADD 007 000 LOTS 29 & 30 |
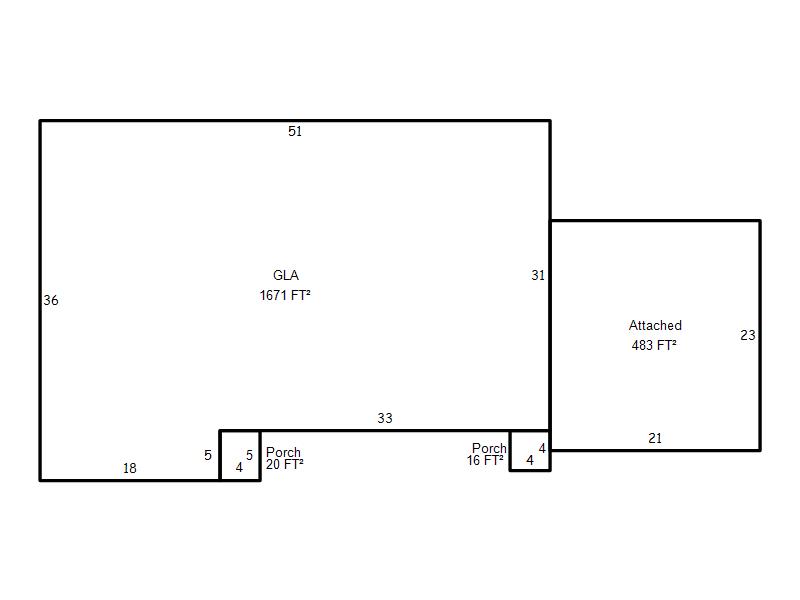
| Photo & Sketch (if available) | Comp Sales (ordered by relevancy) |
|
||||||||||||||||||
|
||||||||||||||||||||
| Value History (*The County Treasurer 405-713-1300 posts & collects actual tax amounts. Contact information HERE) | |||||||||||||
|---|---|---|---|---|---|---|---|---|---|---|---|---|---|
| Year | Market Value | Taxable Mkt Value | Gross Assessed | Exemption | Net Assessed | Millage | Est. Tax | Tax Savings | |||||
|
2026 |
170,000 |
170,000 |
18,700 |
0 |
18,700 |
119.02 |
$2,226 |
$0 |
|||||
|
2025 |
165,500 |
162,750 |
17,902 |
0 |
17,902 |
119.02 |
$2,131 |
$36 |
|||||
|
2024 |
155,000 |
155,000 |
17,050 |
0 |
17,050 |
119.70 |
$2,041 |
$0 |
|||||
|
2023 |
91,000 |
91,000 |
10,010 |
0 |
10,010 |
118.33 |
$1,184 |
$0 |
|||||
|
2022 |
91,000 |
91,000 |
10,010 |
0 |
10,010 |
112.69 |
$1,128 |
$0 |
|||||
| Property Account Status/Adjustments/Exemptions | ||
|---|---|---|
| Account # | Exemption Description | Amount |
|
R104469570 |
5% Capped Account |
0 |
| Property Deed Transaction History (Recorded in the County Clerk's Office) | ||||||||||
|---|---|---|---|---|---|---|---|---|---|---|
| Date | Type | Book | Page | Price | Grantor | Grantee | ||||
|
2/28/2023 |
|
Deeds |
$192,000 |
VM MASTER ISSUER LLC |
MORALES BRANDON J |
|||||
|
3/30/2022 |
|
Mult Parcel |
$16,108,500 |
ARVM 5 LLC |
VM MASTER ISSUER LLC |
|||||
|
7/23/2021 |
|
Deeds |
$90,000 |
CHESNUT DANIEL L SR |
ARVM 5 LLC |
|||||
|
7/22/2021 |
|
Deeds |
$0 |
CHESNUT DANIEL L & CAROLYN S |
CHESNUT DANIEL L |
|||||
|
12/31/1992 |
|
Historical |
$0 |
PRICE JENNIE RUTH |
CHESNUT DANIEL L SR & CAROLYN |
|||||
| Last Mailed Notice of Value (N.O.V.) Information/History | ||||||||
|---|---|---|---|---|---|---|---|---|
| Year | Date | Market Value | Taxable Market Value | Gross Assessed | Exemption | Net Assessed | ||
|
2026 |
02/06/2026 |
170,000 |
170,000 |
18,700 |
0 |
18,700 |
||
|
2025 |
01/31/2025 |
165,500 |
162,750 |
17,902 |
0 |
17,902 |
||
|
2024 |
01/22/2024 |
155,000 |
155,000 |
17,050 |
0 |
17,050 |
||
|
2022 |
02/22/2022 |
91,000 |
91,000 |
10,010 |
0 |
10,010 |
||
|
2021 |
02/24/2021 |
79,500 |
67,000 |
7,370 |
1,000 |
6,370 |
||
| Property Building Permit History | |||||||||||
|---|---|---|---|---|---|---|---|---|---|---|---|
| Issued | Permit # | Provided by | Bldg # | Description | Est Construction Cost | Status | |||||
| No Building Permit records returned. | |||||||||||
| Click button on building number to access detailed information: | ||||||
|---|---|---|---|---|---|---|
| Bldg # | Vacant/Improved Land | Bldg Description | Year Built | SqFt | # Stories | |
|
1 |
Improved |
Ranch 1 Story |
1949 |
1,671 |
1 Stories |
|