|
|
|
| Larry Stein Oklahoma County Assessor (405) 713-1200 - Public Access System |
|
|
|
|
|
|
| Real Property Display - Screen Produced 3/30/2026 5:27:39 AM | ||||
|---|---|---|---|---|
| Account: R105344500 | Type: Residential | Location: |
3245 S CLEGERN ST |
|
| Building Name/Occupant: |
|
OKLAHOMA CITY |
||
| Owner Name 1: | GUTIERREZ DANELIA |
Parcel PIN#: |
1665-10-534-4500 |
|
| Owner Name 2: | 1/4 section #: |
1665 |
||
| Owner Name 3: | Parent Acct: |
|
||
| Billing Address: | 3245 S CLEGERN ST | Tax District: |
|
|
| City, State, Zip | OKLAHOMA CITY, OK 73109-2701 | School System: |
Oklahoma City #89 |
|
|
Country: (If noted) |
Land Size: |
0.1550 Acres |
||
|
Land Value: 12,150 |
|
|||
|
Sect 17-T11N-R3W Qtr NE |
W F HAMMOND ADDITION
Block
001
Lot
000
|
|||
| Full Legal Description: W F HAMMOND ADDITION 001 000 LOTS 23 & 24 |
| Photo & Sketch (if available) | Comp Sales (ordered by relevancy) |
|
||||||||||||||||||
|
||||||||||||||||||||
| Value History (*The County Treasurer 405-713-1300 posts & collects actual tax amounts. Contact information HERE) | |||||||||||||
|---|---|---|---|---|---|---|---|---|---|---|---|---|---|
| Year | Market Value | Taxable Mkt Value | Gross Assessed | Exemption | Net Assessed | Millage | Est. Tax | Tax Savings | |||||
|
2026 |
145,500 |
80,892 |
8,897 |
1,000 |
7,897 |
119.02 |
$940 |
$965 |
|||||
|
2025 |
144,500 |
78,536 |
8,638 |
1,000 |
7,638 |
119.02 |
$909 |
$983 |
|||||
|
2024 |
134,000 |
76,249 |
8,387 |
1,000 |
7,387 |
119.70 |
$884 |
$880 |
|||||
|
2023 |
120,000 |
74,029 |
8,143 |
1,000 |
7,143 |
118.33 |
$845 |
$717 |
|||||
|
2022 |
110,500 |
71,873 |
7,905 |
1,000 |
6,905 |
112.69 |
$778 |
$592 |
|||||
| Property Account Status/Adjustments/Exemptions | ||
|---|---|---|
| Account # | Exemption Description | Amount |
|
R105344500 |
3% Cap Homestead |
0 |
|
R105344500 |
Homestead |
1,000 |
| Property Deed Transaction History (Recorded in the County Clerk's Office) | ||||||||||
|---|---|---|---|---|---|---|---|---|---|---|
| Date | Type | Book | Page | Price | Grantor | Grantee | ||||
|
7/11/2005 |
|
Deeds |
$0 |
GUITERREZ DANELIA |
GUTIERREZ DANELIA |
|||||
|
4/14/2003 |
|
Deeds |
$52,000 |
MEDINA JOSE A |
GUITERREZ DANELIA |
|||||
|
12/26/1996 |
|
Historical |
$34,500 |
FROST GREGORY A & RHONDA K |
MEDINA JOSE A |
|||||
|
4/2/1990 |
|
Historical |
$31,500 |
BENEFIELD FRANCIS |
FROST GREGORY A & RHONDA K |
|||||
|
4/7/1987 |
|
Historical |
$0 |
SOUTH MEMORIAL BAPTIST CHURCH |
BENEFIELD FRANCIS |
|||||
| Last Mailed Notice of Value (N.O.V.) Information/History | ||||||||
|---|---|---|---|---|---|---|---|---|
| Year | Date | Market Value | Taxable Market Value | Gross Assessed | Exemption | Net Assessed | ||
|
2026 |
02/06/2026 |
145,500 |
80,892 |
8,897 |
1,000 |
7,897 |
||
|
2025 |
01/31/2025 |
144,500 |
78,536 |
8,638 |
1,000 |
7,638 |
||
|
2024 |
01/22/2024 |
134,000 |
76,249 |
8,387 |
1,000 |
7,387 |
||
|
2023 |
01/23/2023 |
120,000 |
74,029 |
8,143 |
1,000 |
7,143 |
||
|
2022 |
02/22/2022 |
110,500 |
71,873 |
7,905 |
1,000 |
6,905 |
||
| Property Building Permit History | |||||||||||
|---|---|---|---|---|---|---|---|---|---|---|---|
| Issued | Permit # | Provided by | Bldg # | Description | Est Construction Cost | Status | |||||
| No Building Permit records returned. | |||||||||||
| Click button on building number to access detailed information: | ||||||
|---|---|---|---|---|---|---|
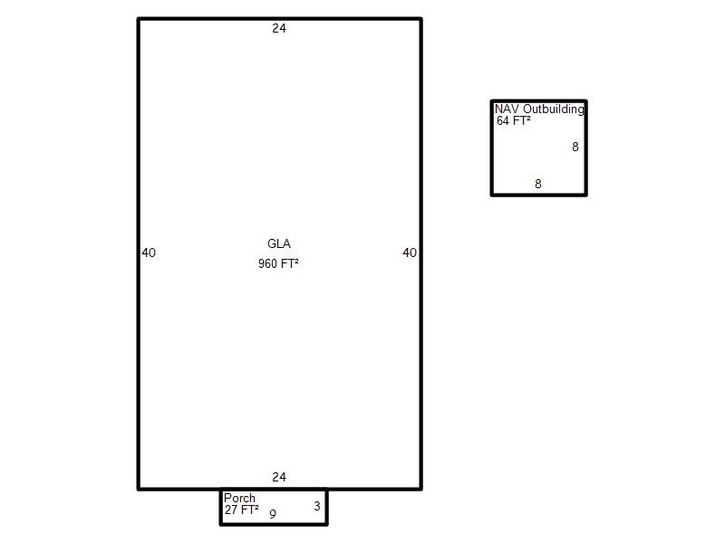
| Bldg # | Vacant/Improved Land | Bldg Description | Year Built | SqFt | # Stories | |
|
1 |
Improved |
Ranch 1 Story |
1987 |
960 |
1 Stories |
|