|
|
|
| Larry Stein Oklahoma County Assessor (405) 713-1200 - Public Access System |
|
|
|
|
|
|
| Real Property Display - Screen Produced 3/26/2026 10:10:20 AM | ||||
|---|---|---|---|---|
| Account: R105560751 | Type: Residential | Location: |
3219 S WESTERN AVE |
|
| Building Name/Occupant: |
|
OKLAHOMA CITY |
||
| Owner Name 1: | PANDO GRACIELA |
Parcel PIN#: |
1665-10-556-0751 |
|
| Owner Name 2: | 1/4 section #: |
1665 |
||
| Owner Name 3: | Parent Acct: |
|
||
| Billing Address: | 3219 S WESTERN AVE | Tax District: |
|
|
| City, State, Zip | OKLAHOMA CITY, OK 73109-2406 | School System: |
Oklahoma City #89 |
|
|
Country: (If noted) |
Land Size: |
0.1653 Acres |
||
|
Land Value: 12,960 |
|
|||
|
Sect 17-T11N-R3W Qtr NE |
VOLZ ADDITION
Block
002
Lot
002
|
|||
| Full Legal Description: VOLZ ADDITION 002 002 N40FT OF S90FT OF E180FT |
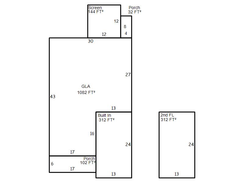
| Photo & Sketch (if available) | Comp Sales (ordered by relevancy) |
|
||||||||||||||||||
|
||||||||||||||||||||
| Value History (*The County Treasurer 405-713-1300 posts & collects actual tax amounts. Contact information HERE) | |||||||||||||
|---|---|---|---|---|---|---|---|---|---|---|---|---|---|
| Year | Market Value | Taxable Mkt Value | Gross Assessed | Exemption | Net Assessed | Millage | Est. Tax | Tax Savings | |||||
|
2026 |
118,000 |
76,598 |
8,425 |
1,000 |
7,425 |
119.02 |
$884 |
$661 |
|||||
|
2025 |
114,500 |
74,367 |
8,180 |
1,000 |
7,180 |
119.02 |
$855 |
$644 |
|||||
|
2024 |
103,000 |
72,201 |
7,941 |
1,000 |
6,941 |
119.70 |
$831 |
$525 |
|||||
|
2023 |
94,500 |
70,099 |
7,710 |
1,000 |
6,710 |
118.33 |
$794 |
$436 |
|||||
|
2022 |
85,000 |
68,058 |
7,486 |
1,000 |
6,486 |
112.69 |
$731 |
$323 |
|||||
| Property Account Status/Adjustments/Exemptions | ||
|---|---|---|
| Account # | Exemption Description | Amount |
|
R105560751 |
3% Cap Homestead |
0 |
|
R105560751 |
Homestead |
1,000 |
| Property Deed Transaction History (Recorded in the County Clerk's Office) | |||||||
|---|---|---|---|---|---|---|---|
| Date | Type | Book | Page | Price | Grantor | Grantee | |
|
5/2/2002 |
|
Deeds |
$0 |
PANDO ELIAS J & GRACIELA |
PANDO GRACIELA |
||
|
5/31/1991 |
|
Historical |
$11,000 |
BREWER JOHN E & LAVERNA F |
PANDO ELIAS J & GRACIELA |
||
|
11/1/1985 |
|
Historical |
$0 |
|
BREWER JOHN E & LAVERNA F |
||
| Last Mailed Notice of Value (N.O.V.) Information/History | ||||||||
|---|---|---|---|---|---|---|---|---|
| Year | Date | Market Value | Taxable Market Value | Gross Assessed | Exemption | Net Assessed | ||
|
2026 |
02/06/2026 |
118,000 |
76,598 |
8,425 |
1,000 |
7,425 |
||
|
2025 |
01/31/2025 |
114,500 |
74,367 |
8,180 |
1,000 |
7,180 |
||
|
2024 |
01/22/2024 |
103,000 |
72,201 |
7,941 |
1,000 |
6,941 |
||
|
2023 |
01/23/2023 |
94,500 |
70,099 |
7,710 |
1,000 |
6,710 |
||
|
2022 |
02/22/2022 |
85,000 |
68,058 |
7,485 |
1,000 |
6,485 |
||
| Property Building Permit History | |||||||||||
|---|---|---|---|---|---|---|---|---|---|---|---|
| Issued | Permit # | Provided by | Bldg # | Description | Est Construction Cost | Status | |||||
| No Building Permit records returned. | |||||||||||
| Click button on building number to access detailed information: | ||||||
|---|---|---|---|---|---|---|
| Bldg # | Vacant/Improved Land | Bldg Description | Year Built | SqFt | # Stories | |
|
1 |
Improved |
1½ Story Fin |
1951 |
1,394 |
1.5 Stories |
|