|
|
|
| Larry Stein Oklahoma County Assessor (405) 713-1200 - Public Access System |
|
|
|
|
|
|
| Real Property Display - Screen Produced 3/26/2026 10:10:20 AM | ||||
|---|---|---|---|---|
| Account: R105564975 | Type: Residential | Location: |
3521 S KLEIN AVE |
|
| Building Name/Occupant: |
|
OKLAHOMA CITY |
||
| Owner Name 1: | GARCIA JOSE |
Parcel PIN#: |
1665-10-556-4975 |
|
| Owner Name 2: | GARCIA CARI S | 1/4 section #: |
1665 |
|
| Owner Name 3: | GARCIA SAMUEL V | Parent Acct: |
|
|
| Billing Address: | 3521 S KLEIN AVE | Tax District: |
|
|
| City, State, Zip | OKLAHOMA CITY, OK 73109-2943 | School System: |
Oklahoma City #89 |
|
|
Country: (If noted) |
Land Size: |
0.1993 Acres |
||
|
Land Value: 15,624 |
|
|||
|
Sect 17-T11N-R3W Qtr NE |
VOLZ ADDITION
Block
005
Lot
000
|
|||
| Full Legal Description: VOLZ ADDITION 005 000 BEG 325FT S OF NE/C OF BLK 5 TH W140FT N62 1/2FT E140FT S621/2FT TO BEG FORMERLY S 1/2 OF LOT 11 & ALL OF LTS 12 & 13 BLK 1 STEELES SUB |
| Photo & Sketch (if available) | Comp Sales (ordered by relevancy) |
|
||||||||||||||||||
|
||||||||||||||||||||
| Value History (*The County Treasurer 405-713-1300 posts & collects actual tax amounts. Contact information HERE) | |||||||||||||
|---|---|---|---|---|---|---|---|---|---|---|---|---|---|
| Year | Market Value | Taxable Mkt Value | Gross Assessed | Exemption | Net Assessed | Millage | Est. Tax | Tax Savings | |||||
|
2026 |
96,500 |
57,319 |
6,305 |
1,000 |
5,305 |
119.02 |
$631 |
$632 |
|||||
|
2025 |
96,500 |
57,319 |
6,305 |
1,000 |
5,305 |
119.02 |
$631 |
$632 |
|||||
|
2024 |
89,000 |
57,319 |
6,304 |
1,000 |
5,304 |
119.70 |
$635 |
$537 |
|||||
|
2023 |
78,500 |
55,650 |
6,121 |
0 |
6,121 |
118.33 |
$724 |
$297 |
|||||
|
2022 |
53,000 |
53,000 |
5,830 |
0 |
5,830 |
112.69 |
$657 |
$0 |
|||||
| Property Account Status/Adjustments/Exemptions | ||
|---|---|---|
| Account # | Exemption Description | Amount |
|
R105564975 |
Freeze Senior Valuation |
0 |
|
R105564975 |
Homestead |
1,000 |
|
R105564975 |
3% Cap Homestead |
0 |
| Property Deed Transaction History (Recorded in the County Clerk's Office) | ||||||||||
|---|---|---|---|---|---|---|---|---|---|---|
| Date | Type | Book | Page | Price | Grantor | Grantee | ||||
|
7/8/2020 |
|
Deeds |
$0 |
GARCIA JOSE |
GARCIA JOSE |
|||||
|
8/1/2012 |
|
Deeds |
$18,000 |
V J LEMONS FAMILY TRUST |
GARCIA JOSE |
|||||
|
8/23/1989 |
|
Historical |
$17,001 |
SECRETARY OF HOUSING |
V J LEMONS FAMILY TRUST |
|||||
|
6/5/1989 |
|
Historical |
$0 |
CARRICO JAN M |
SECRETARY OF HOUSING |
|||||
|
12/1/1986 |
|
Historical |
$45,000 |
LIPSCOMB JERRY J & MARY SUE |
MCGUIRE GARY E & VIRGINIA L |
|||||
| Last Mailed Notice of Value (N.O.V.) Information/History | ||||||||
|---|---|---|---|---|---|---|---|---|
| Year | Date | Market Value | Taxable Market Value | Gross Assessed | Exemption | Net Assessed | ||
|
2025 |
01/31/2025 |
96,500 |
57,319 |
6,305 |
1,000 |
5,305 |
||
|
2024 |
01/22/2024 |
89,000 |
58,432 |
6,427 |
0 |
6,427 |
||
|
2023 |
01/23/2023 |
78,500 |
55,650 |
6,121 |
0 |
6,121 |
||
|
2017 |
02/24/2017 |
53,000 |
53,000 |
|
|
|
||
|
2015 |
03/05/2015 |
57,645 |
57,645 |
6,340 |
0 |
6,340 |
||
| Property Building Permit History | ||||||
|---|---|---|---|---|---|---|
| Issued | Permit # | Provided by | Bldg # | Description | Est Construction Cost | Status |
|
8/28/2006 |
10327178 |
OKLAHOMA CITY |
1 |
Burn - Trip |
1,000 |
Inactive |
|
3/22/2004 |
10289613 |
OKLAHOMA CITY |
1 |
Remodeled |
2,005 |
Inactive |
| Click button on building number to access detailed information: | ||||||
|---|---|---|---|---|---|---|
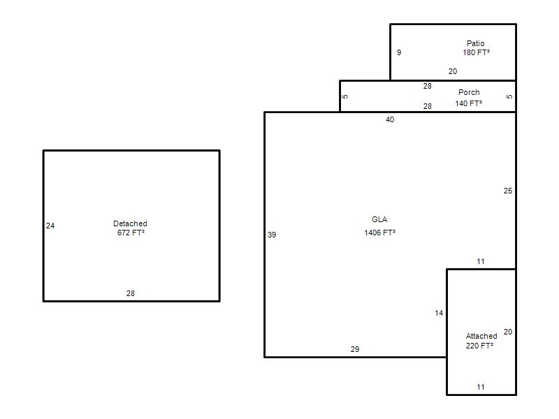
| Bldg # | Vacant/Improved Land | Bldg Description | Year Built | SqFt | # Stories | |
|
1 |
Improved |
Split Level |
1949 |
1,406 |
1 Stories |
|