|
|
|
| Larry Stein Oklahoma County Assessor (405) 713-1200 - Public Access System |
|
|
|
|
|
|
| Real Property Display - Screen Produced 3/14/2026 7:22:38 AM | ||||
|---|---|---|---|---|
| Account: R155401115 | Type: Residential | Location: |
10725 LE JEAN DR |
|
| Building Name/Occupant: |
|
MIDWEST CITY |
||
| Owner Name 1: | TFH INC |
Parcel PIN#: |
1221-15-540-1115 |
|
| Owner Name 2: | 1/4 section #: |
1221 |
||
| Owner Name 3: | Parent Acct: |
|
||
| Billing Address: | 11101 SE 29TH ST | Tax District: |
|
|
| City, State, Zip | MIDWEST CITY, OK 73130-5111 | School System: |
Choctaw #4 |
|
|
Country: (If noted) |
Land Size: |
0.3099 Acres |
||
|
Land Value: 29,025 |
|
|||
|
Sect 6-T11N-R1W Qtr NE |
POINTON CITY 2ND ADD
Block
001
Lot
012
|
|||
| Full Legal Description: POINTON CITY 2ND ADD 001 012 |
| Photo & Sketch (if available) | Comp Sales (ordered by relevancy) |
|
||||||||||||||||||
|
||||||||||||||||||||
| Value History (*The County Treasurer 405-713-1300 posts & collects actual tax amounts. Contact information HERE) | |||||||||||||
|---|---|---|---|---|---|---|---|---|---|---|---|---|---|
| Year | Market Value | Taxable Mkt Value | Gross Assessed | Exemption | Net Assessed | Millage | Est. Tax | Tax Savings | |||||
|
2025 |
96,000 |
96,000 |
10,560 |
0 |
10,560 |
127.03 |
$1,341 |
$0 |
|||||
|
2024 |
85,000 |
62,596 |
6,884 |
0 |
6,884 |
127.00 |
$874 |
$313 |
|||||
|
2023 |
72,500 |
59,616 |
6,557 |
0 |
6,557 |
128.50 |
$843 |
$182 |
|||||
|
2022 |
67,500 |
56,778 |
6,245 |
0 |
6,245 |
127.22 |
$795 |
$150 |
|||||
|
2021 |
57,000 |
54,075 |
5,948 |
0 |
5,948 |
126.69 |
$754 |
$41 |
|||||
| Property Account Status/Adjustments/Exemptions | ||
|---|---|---|
| Account # | Exemption Description | Amount |
|
R155401115 |
5% Capped Account |
0 |
| Property Deed Transaction History (Recorded in the County Clerk's Office) | ||||||||||
|---|---|---|---|---|---|---|---|---|---|---|
| Date | Type | Book | Page | Price | Grantor | Grantee | ||||
|
9/18/2024 |
|
Mult Parcel |
$190,000 |
DEEN THOMAS C |
TFH INC |
|||||
|
3/7/2024 |
|
Hmstd Off & |
$0 |
DEEN THOMAS R |
DEEN THOMAS C |
|||||
|
3/12/1999 |
|
Historical |
$0 |
DEEN THOMAS R & DENISE |
DEEN THOMAS R |
|||||
|
12/8/1994 |
|
Historical |
$18,000 |
SUNG DOO WHA |
DEEN THOMAS R & DENISE |
|||||
|
9/21/1994 |
|
Historical |
$10,000 |
FAIRFIELD AFFILIATES |
SUNG DOO WHA |
|||||
| Last Mailed Notice of Value (N.O.V.) Information/History | ||||||||
|---|---|---|---|---|---|---|---|---|
| Year | Date | Market Value | Taxable Market Value | Gross Assessed | Exemption | Net Assessed | ||
|
2025 |
01/31/2025 |
96,000 |
96,000 |
10,560 |
0 |
10,560 |
||
|
2024 |
01/22/2024 |
85,000 |
62,596 |
6,884 |
0 |
6,884 |
||
|
2024 |
04/05/2024 |
85,000 |
62,596 |
6,884 |
0 |
6,884 |
||
|
2023 |
01/23/2023 |
72,500 |
59,616 |
6,557 |
0 |
6,557 |
||
|
2022 |
02/22/2022 |
67,500 |
56,778 |
6,245 |
0 |
6,245 |
||
| Property Building Permit History | |||||||||||
|---|---|---|---|---|---|---|---|---|---|---|---|
| Issued | Permit # | Provided by | Bldg # | Description | Est Construction Cost | Status | |||||
| No Building Permit records returned. | |||||||||||
| Click button on building number to access detailed information: | ||||||
|---|---|---|---|---|---|---|
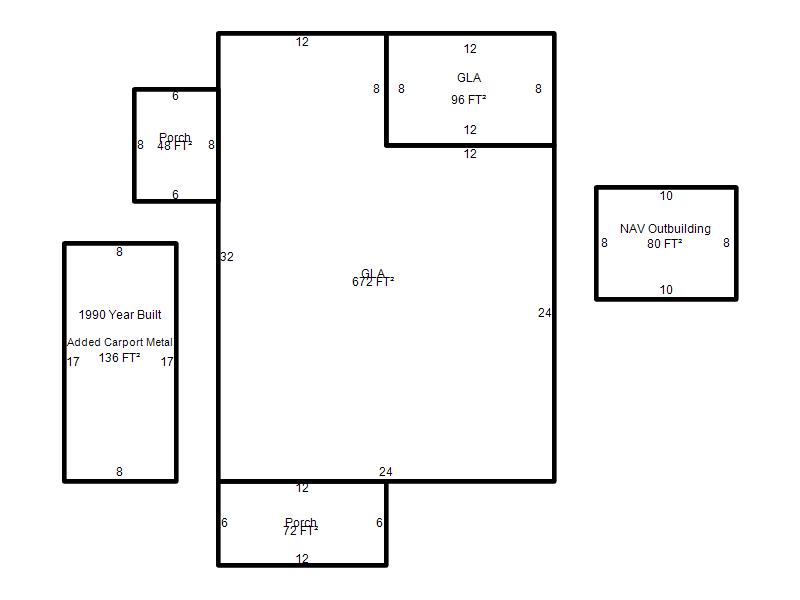
| Bldg # | Vacant/Improved Land | Bldg Description | Year Built | SqFt | # Stories | |
|
1 |
Improved |
Ranch 1 Story |
1955 |
768 |
1 Stories |
|