|
|
|
| Larry Stein Oklahoma County Assessor (405) 713-1200 - Public Access System |
|
|
|
|
|
|
| Real Property Display - Screen Produced 3/14/2026 7:21:19 AM | ||||
|---|---|---|---|---|
| Account: R155401185 | Type: Residential | Location: |
10908 LE JEAN DR |
|
| Building Name/Occupant: |
|
MIDWEST CITY |
||
| Owner Name 1: | DEEN THOMAS C & EVA |
Parcel PIN#: |
1221-15-540-1185 |
|
| Owner Name 2: | 1/4 section #: |
1221 |
||
| Owner Name 3: | Parent Acct: |
|
||
| Billing Address: | 11301 NE 10TH ST | Tax District: |
|
|
| City, State, Zip | CHOCTAW, OK 73020 | School System: |
Choctaw #4 |
|
|
Country: (If noted) |
Land Size: |
0.3099 Acres |
||
|
Land Value: 29,025 |
|
|||
|
Sect 6-T11N-R1W Qtr NE |
POINTON CITY 2ND ADD
Block
002
Lot
004
|
|||
| Full Legal Description: POINTON CITY 2ND ADD 002 004 |
| Photo & Sketch (if available) | Comp Sales (ordered by relevancy) |
|
||||||||||||||||||
|
||||||||||||||||||||
| Value History (*The County Treasurer 405-713-1300 posts & collects actual tax amounts. Contact information HERE) | |||||||||||||
|---|---|---|---|---|---|---|---|---|---|---|---|---|---|
| Year | Market Value | Taxable Mkt Value | Gross Assessed | Exemption | Net Assessed | Millage | Est. Tax | Tax Savings | |||||
|
2025 |
114,000 |
87,424 |
9,615 |
0 |
9,615 |
127.03 |
$1,222 |
$371 |
|||||
|
2024 |
100,500 |
83,261 |
9,158 |
0 |
9,158 |
127.00 |
$1,163 |
$241 |
|||||
|
2023 |
92,000 |
79,297 |
8,722 |
0 |
8,722 |
128.50 |
$1,121 |
$180 |
|||||
|
2022 |
85,500 |
75,521 |
8,306 |
0 |
8,306 |
127.22 |
$1,057 |
$140 |
|||||
|
2021 |
73,000 |
71,925 |
7,911 |
0 |
7,911 |
126.69 |
$1,002 |
$15 |
|||||
| Property Account Status/Adjustments/Exemptions | ||
|---|---|---|
| Account # | Exemption Description | Amount |
|
R155401185 |
5% Capped Account |
0 |
| Property Deed Transaction History (Recorded in the County Clerk's Office) | |||||||
|---|---|---|---|---|---|---|---|
| Date | Type | Book | Page | Price | Grantor | Grantee | |
|
1/18/2019 |
|
Deeds |
$42,500 |
RSM PROPERTIES LLC |
DEEN THOMAS C & EVA |
||
|
11/3/2018 |
|
Mult Parcel |
$19,000 |
BRUNNER DOROTHY L REV TRUST |
RSM PROPERTIES LLC |
||
|
4/14/2014 |
|
Deeds |
$0 |
BRUNNER DOROTHY L |
BRUNNER DOROTHY L REV TRUST |
||
|
12/29/2006 |
|
Deeds |
$0 |
BRUNNER BOBBY O & DOROTHY L |
BRUNNER DOROTHY L |
||
|
6/1/1973 |
|
Historical |
$0 |
|
BRUNNER BOBBY O & D L |
||
| Last Mailed Notice of Value (N.O.V.) Information/History | ||||||||
|---|---|---|---|---|---|---|---|---|
| Year | Date | Market Value | Taxable Market Value | Gross Assessed | Exemption | Net Assessed | ||
|
2026 |
02/06/2026 |
108,000 |
91,795 |
10,096 |
0 |
10,096 |
||
|
2025 |
01/31/2025 |
114,000 |
87,424 |
9,615 |
0 |
9,615 |
||
|
2024 |
01/22/2024 |
100,500 |
83,261 |
9,158 |
0 |
9,158 |
||
|
2023 |
01/23/2023 |
92,000 |
79,297 |
8,722 |
0 |
8,722 |
||
|
2022 |
02/22/2022 |
85,500 |
75,521 |
8,306 |
0 |
8,306 |
||
| Property Building Permit History | |||||||||||
|---|---|---|---|---|---|---|---|---|---|---|---|
| Issued | Permit # | Provided by | Bldg # | Description | Est Construction Cost | Status | |||||
| No Building Permit records returned. | |||||||||||
| Click button on building number to access detailed information: | ||||||
|---|---|---|---|---|---|---|
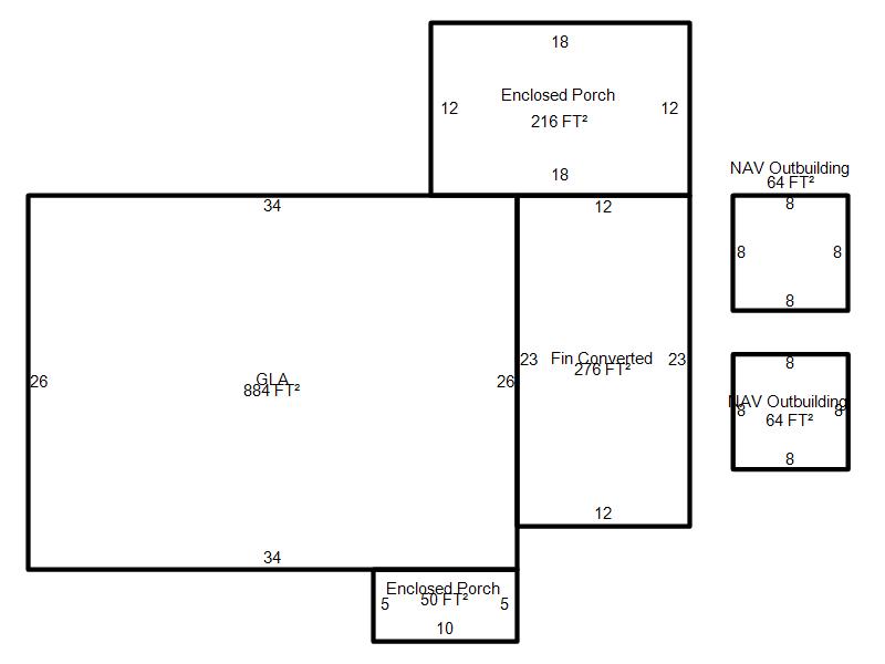
| Bldg # | Vacant/Improved Land | Bldg Description | Year Built | SqFt | # Stories | |
|
1 |
Improved |
Ranch 1 Story |
1959 |
884 |
1 Stories |
|