|
|
|
| Larry Stein Oklahoma County Assessor (405) 713-1200 - Public Access System |
|
|
|
|
|
|
| Real Property Display - Screen Produced 3/14/2026 7:27:54 AM | ||||
|---|---|---|---|---|
| Account: R155402045 | Type: Residential | Location: |
10524 BELLVIEW DR |
|
| Building Name/Occupant: |
|
MIDWEST CITY |
||
| Owner Name 1: | DEVINEY KENNETH EUGENE |
Parcel PIN#: |
1221-15-540-2045 |
|
| Owner Name 2: | DEVINEY JOE ALAN | 1/4 section #: |
1221 |
|
| Owner Name 3: | DEVINEY CHARLES MITCHELL | Parent Acct: |
|
|
| Billing Address: | 10524 BELLVIEW DR | Tax District: |
|
|
| City, State, Zip | MIDWEST CITY, OK 73130-5010 | School System: |
Choctaw #4 |
|
|
Country: (If noted) |
Land Size: |
0.3099 Acres |
||
|
Land Value: 29,025 |
|
|||
|
Sect 6-T11N-R1W Qtr NE |
POINTON CITY 2ND ADD
Block
008
Lot
005
|
|||
| Full Legal Description: POINTON CITY 2ND ADD 008 005 |
| Photo & Sketch (if available) | Comp Sales (ordered by relevancy) |
|
||||||||||||||||||
|
||||||||||||||||||||
| Value History (*The County Treasurer 405-713-1300 posts & collects actual tax amounts. Contact information HERE) | |||||||||||||
|---|---|---|---|---|---|---|---|---|---|---|---|---|---|
| Year | Market Value | Taxable Mkt Value | Gross Assessed | Exemption | Net Assessed | Millage | Est. Tax | Tax Savings | |||||
|
2025 |
112,500 |
83,466 |
9,180 |
1,000 |
8,180 |
127.03 |
$1,039 |
$533 |
|||||
|
2024 |
100,000 |
81,035 |
8,913 |
1,000 |
7,913 |
127.00 |
$1,005 |
$392 |
|||||
|
2023 |
96,500 |
78,675 |
8,654 |
1,000 |
7,654 |
128.50 |
$984 |
$380 |
|||||
|
2022 |
89,500 |
76,384 |
8,401 |
1,000 |
7,401 |
127.22 |
$942 |
$311 |
|||||
|
2021 |
76,000 |
74,160 |
8,157 |
1,000 |
7,157 |
126.69 |
$907 |
$152 |
|||||
| Property Account Status/Adjustments/Exemptions | ||
|---|---|---|
| Account # | Exemption Description | Amount |
|
R155402045 |
3% Cap Homestead |
0 |
|
R155402045 |
Homestead |
1,000 |
| Property Deed Transaction History (Recorded in the County Clerk's Office) | |||||||
|---|---|---|---|---|---|---|---|
| Date | Type | Book | Page | Price | Grantor | Grantee | |
|
11/1/1986 |
|
Historical |
$0 |
DEVINEY JOE B |
DEVINEY KENNETH EUGENE |
||
|
1/1/1979 |
|
Historical |
$0 |
|
DEVINEY JOE B |
||
| Last Mailed Notice of Value (N.O.V.) Information/History | ||||||||
|---|---|---|---|---|---|---|---|---|
| Year | Date | Market Value | Taxable Market Value | Gross Assessed | Exemption | Net Assessed | ||
|
2026 |
02/06/2026 |
108,500 |
85,969 |
9,456 |
1,000 |
8,456 |
||
|
2025 |
01/31/2025 |
112,500 |
83,466 |
9,180 |
1,000 |
8,180 |
||
|
2024 |
01/22/2024 |
100,000 |
81,035 |
8,913 |
1,000 |
7,913 |
||
|
2023 |
01/23/2023 |
96,500 |
78,675 |
8,654 |
1,000 |
7,654 |
||
|
2022 |
02/22/2022 |
89,500 |
76,384 |
8,401 |
1,000 |
7,401 |
||
| Property Building Permit History | |||||||||||
|---|---|---|---|---|---|---|---|---|---|---|---|
| Issued | Permit # | Provided by | Bldg # | Description | Est Construction Cost | Status | |||||
| No Building Permit records returned. | |||||||||||
| Click button on building number to access detailed information: | ||||||
|---|---|---|---|---|---|---|
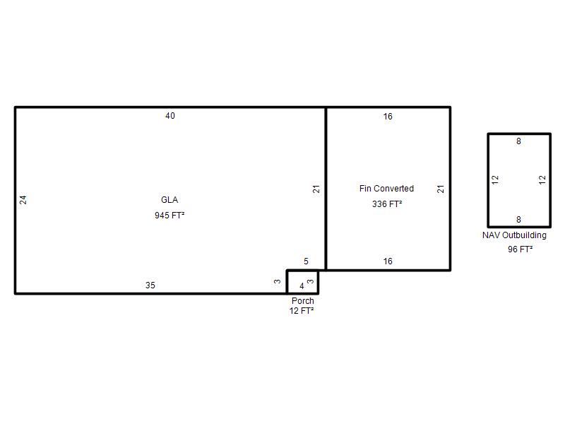
| Bldg # | Vacant/Improved Land | Bldg Description | Year Built | SqFt | # Stories | |
|
1 |
Improved |
Ranch 1 Story |
1959 |
945 |
1 Stories |
|