|
|
|
| Larry Stein Oklahoma County Assessor (405) 713-1200 - Public Access System |
|
|
|
|
|
|
| Real Property Display - Screen Produced 3/14/2026 7:27:53 AM | ||||
|---|---|---|---|---|
| Account: R155402295 | Type: Residential | Location: |
10824 BELLEVIEW DR |
|
| Building Name/Occupant: |
|
MIDWEST CITY |
||
| Owner Name 1: | MAGEE LANDON JAMES & AMY MARIE |
Parcel PIN#: |
1221-15-540-2295 |
|
| Owner Name 2: | 1/4 section #: |
1221 |
||
| Owner Name 3: | Parent Acct: |
|
||
| Billing Address: | 14755 CIRCLE DR | Tax District: |
|
|
| City, State, Zip | CHOCTAW, OK 73020-6224 | School System: |
Choctaw #4 |
|
|
Country: (If noted) |
Land Size: |
0.3099 Acres |
||
|
Land Value: 29,025 |
|
|||
|
Sect 6-T11N-R1W Qtr NE |
POINTON CITY 2ND ADD
Block
010
Lot
007
|
|||
| Full Legal Description: POINTON CITY 2ND ADD 010 007 |
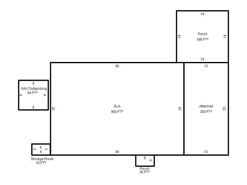
| Photo & Sketch (if available) | Comp Sales (ordered by relevancy) |
|
||||||||||||||||||
|
||||||||||||||||||||
| Value History (*The County Treasurer 405-713-1300 posts & collects actual tax amounts. Contact information HERE) | |||||||||||||
|---|---|---|---|---|---|---|---|---|---|---|---|---|---|
| Year | Market Value | Taxable Mkt Value | Gross Assessed | Exemption | Net Assessed | Millage | Est. Tax | Tax Savings | |||||
|
2025 |
123,500 |
93,167 |
10,248 |
0 |
10,248 |
127.03 |
$1,302 |
$424 |
|||||
|
2024 |
109,500 |
88,731 |
9,759 |
0 |
9,759 |
127.00 |
$1,240 |
$290 |
|||||
|
2023 |
102,500 |
84,506 |
9,295 |
0 |
9,295 |
128.50 |
$1,194 |
$254 |
|||||
|
2022 |
94,000 |
80,482 |
8,852 |
0 |
8,852 |
127.22 |
$1,126 |
$189 |
|||||
|
2021 |
79,500 |
76,650 |
8,431 |
0 |
8,431 |
126.69 |
$1,068 |
$40 |
|||||
| Property Account Status/Adjustments/Exemptions | ||
|---|---|---|
| Account # | Exemption Description | Amount |
|
R155402295 |
5% Capped Account |
0 |
| Property Deed Transaction History (Recorded in the County Clerk's Office) | |||||||
|---|---|---|---|---|---|---|---|
| Date | Type | Book | Page | Price | Grantor | Grantee | |
|
8/21/2007 |
|
Deeds |
$0 |
LIBEL AMY M |
MAGEE LANDON JAMES & AMY MARIE |
||
|
7/14/2002 |
|
Hmstd Off & |
$0 |
SKAGGS CHAD P & DEANNA L |
LIBEL AMY M |
||
|
12/27/1999 |
|
Hmstd Off & |
$0 |
LIBEL JOHN P & DONNA L |
SKAGGS CHAD P & DEANNA L |
||
|
9/1/1984 |
|
Historical |
$0 |
|
LIBEL JOHN P & DONNA L |
||
| Last Mailed Notice of Value (N.O.V.) Information/History | ||||||||
|---|---|---|---|---|---|---|---|---|
| Year | Date | Market Value | Taxable Market Value | Gross Assessed | Exemption | Net Assessed | ||
|
2026 |
02/06/2026 |
119,500 |
97,825 |
10,760 |
0 |
10,760 |
||
|
2025 |
01/31/2025 |
123,500 |
93,167 |
10,248 |
0 |
10,248 |
||
|
2024 |
01/22/2024 |
109,500 |
88,731 |
9,759 |
0 |
9,759 |
||
|
2023 |
01/23/2023 |
102,500 |
84,506 |
9,295 |
0 |
9,295 |
||
|
2022 |
02/22/2022 |
94,000 |
80,482 |
8,852 |
0 |
8,852 |
||
| Property Building Permit History | |||||||||||
|---|---|---|---|---|---|---|---|---|---|---|---|
| Issued | Permit # | Provided by | Bldg # | Description | Est Construction Cost | Status | |||||
| No Building Permit records returned. | |||||||||||
| Click button on building number to access detailed information: | ||||||
|---|---|---|---|---|---|---|
| Bldg # | Vacant/Improved Land | Bldg Description | Year Built | SqFt | # Stories | |
|
1 |
Improved |
Ranch 1 Story |
1960 |
900 |
1 Stories |
|