|
|
|
| Larry Stein Oklahoma County Assessor (405) 713-1200 - Public Access System |
|
|
|
|
|
|
| Real Property Display - Screen Produced 3/16/2026 8:34:01 PM | ||||
|---|---|---|---|---|
| Account: R074424085 | Type: Residential | Location: |
2213 SW 48TH ST |
|
| Building Name/Occupant: |
|
OKLAHOMA CITY |
||
| Owner Name 1: | KALIDY LLC |
Parcel PIN#: |
1673-07-442-4085 |
|
| Owner Name 2: | 1/4 section #: |
1673 |
||
| Owner Name 3: | Parent Acct: |
|
||
| Billing Address: | PO BOX 226 | Tax District: |
|
|
| City, State, Zip | EDMOND, OK 73083-0226 | School System: |
Oklahoma City #89 |
|
|
Country: (If noted) |
Land Size: |
0.1928 Acres |
||
|
Land Value: 18,900 |
|
|||
|
Sect 19-T11N-R3W Qtr NE |
MOORE HEIGHTS ADD
Block
015
Lot
000
|
|||
| Full Legal Description: MOORE HEIGHTS ADD 015 000 E10FT OF LOT 43 & ALL LOTS 44 & 45 |
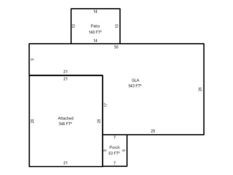
| Photo & Sketch (if available) | Comp Sales (ordered by relevancy) |
|
||||||||||||||||||
|
||||||||||||||||||||
| Value History (*The County Treasurer 405-713-1300 posts & collects actual tax amounts. Contact information HERE) | |||||||||||||
|---|---|---|---|---|---|---|---|---|---|---|---|---|---|
| Year | Market Value | Taxable Mkt Value | Gross Assessed | Exemption | Net Assessed | Millage | Est. Tax | Tax Savings | |||||
|
2025 |
137,500 |
95,720 |
10,528 |
0 |
10,528 |
119.02 |
$1,253 |
$547 |
|||||
|
2024 |
130,000 |
91,162 |
10,027 |
0 |
10,027 |
119.70 |
$1,200 |
$511 |
|||||
|
2023 |
117,000 |
86,821 |
9,549 |
0 |
9,549 |
118.33 |
$1,130 |
$393 |
|||||
|
2022 |
102,500 |
82,687 |
9,095 |
0 |
9,095 |
112.69 |
$1,025 |
$246 |
|||||
|
2021 |
84,500 |
78,750 |
8,662 |
0 |
8,662 |
112.29 |
$973 |
$71 |
|||||
| Property Account Status/Adjustments/Exemptions | ||
|---|---|---|
| Account # | Exemption Description | Amount |
|
R074424085 |
5% Capped Account |
0 |
| Property Deed Transaction History (Recorded in the County Clerk's Office) | ||||||||||
|---|---|---|---|---|---|---|---|---|---|---|
| Date | Type | Book | Page | Price | Grantor | Grantee | ||||
|
8/20/2014 |
|
Hmstd Off & |
$0 |
KALIDY HOMES LLC |
KALIDY LLC |
|||||
|
8/31/2009 |
|
Deeds |
$42,500 |
PARRA CANDELARIO DURAN |
KALIDY HOMES LLC |
|||||
|
7/25/2001 |
|
Deeds |
$51,000 |
JORDAN JOHN F & VIRGINIA M |
PARRA CANDELARIO DURAN |
|||||
|
6/5/1991 |
|
Historical |
$29,840 |
SECRETARY OF HOUSING |
JORDAN JOHN F & VIRGINIA M |
|||||
|
4/2/1991 |
|
Historical |
$0 |
LANDRITH JIMMY & MARY |
SECRETARY OF HOUSING |
|||||
| Last Mailed Notice of Value (N.O.V.) Information/History | ||||||||
|---|---|---|---|---|---|---|---|---|
| Year | Date | Market Value | Taxable Market Value | Gross Assessed | Exemption | Net Assessed | ||
|
2026 |
02/06/2026 |
139,500 |
100,506 |
11,055 |
0 |
11,055 |
||
|
2025 |
01/31/2025 |
137,500 |
95,720 |
10,528 |
0 |
10,528 |
||
|
2024 |
01/22/2024 |
130,000 |
91,162 |
10,027 |
0 |
10,027 |
||
|
2023 |
01/23/2023 |
117,000 |
86,821 |
9,549 |
0 |
9,549 |
||
|
2022 |
02/22/2022 |
102,500 |
82,687 |
9,095 |
0 |
9,095 |
||
| Property Building Permit History | |||||||||||
|---|---|---|---|---|---|---|---|---|---|---|---|
| Issued | Permit # | Provided by | Bldg # | Description | Est Construction Cost | Status | |||||
| No Building Permit records returned. | |||||||||||
| Click button on building number to access detailed information: | ||||||
|---|---|---|---|---|---|---|
| Bldg # | Vacant/Improved Land | Bldg Description | Year Built | SqFt | # Stories | |
|
1 |
Improved |
Ranch 1 Story |
1963 |
943 |
1 Stories |
|