|
|
|
| Larry Stein Oklahoma County Assessor (405) 713-1200 - Public Access System |
|
|
|
|
|
|
| Real Property Display - Screen Produced 3/16/2026 8:37:37 PM | ||||
|---|---|---|---|---|
| Account: R074425103 | Type: Residential | Location: |
2233 SW 49TH ST |
|
| Building Name/Occupant: |
|
OKLAHOMA CITY |
||
| Owner Name 1: | PRAIRIE PROPERTY SOLUTIONS LLC |
Parcel PIN#: |
1673-07-442-5103 |
|
| Owner Name 2: | 1/4 section #: |
1673 |
||
| Owner Name 3: | Parent Acct: |
|
||
| Billing Address: | PO BOX 515 | Tax District: |
|
|
| City, State, Zip | OKLAHOMA CITY, OK 73101 | School System: |
Oklahoma City #89 |
|
|
Country: (If noted) |
Land Size: |
0.1607 Acres |
||
|
Land Value: 15,750 |
|
|||
|
Sect 19-T11N-R3W Qtr NE |
MOORE HEIGHTS ADD
Block
018
Lot
000
|
|||
| Full Legal Description: MOORE HEIGHTS ADD 018 000 LOTS 31 & 32 |
| Photo & Sketch (if available) | Comp Sales (ordered by relevancy) |
|
||||||||||||||||||
|
||||||||||||||||||||
| Value History (*The County Treasurer 405-713-1300 posts & collects actual tax amounts. Contact information HERE) | |||||||||||||
|---|---|---|---|---|---|---|---|---|---|---|---|---|---|
| Year | Market Value | Taxable Mkt Value | Gross Assessed | Exemption | Net Assessed | Millage | Est. Tax | Tax Savings | |||||
|
2025 |
138,500 |
103,635 |
11,399 |
0 |
11,399 |
119.02 |
$1,357 |
$456 |
|||||
|
2024 |
129,500 |
98,700 |
10,857 |
0 |
10,857 |
119.70 |
$1,300 |
$406 |
|||||
|
2023 |
94,000 |
94,000 |
10,340 |
0 |
10,340 |
118.33 |
$1,224 |
$0 |
|||||
|
2022 |
94,000 |
94,000 |
10,340 |
0 |
10,340 |
112.69 |
$1,165 |
$0 |
|||||
|
2021 |
83,000 |
76,650 |
8,431 |
0 |
8,431 |
112.29 |
$947 |
$78 |
|||||
| Property Account Status/Adjustments/Exemptions | ||
|---|---|---|
| Account # | Exemption Description | Amount |
|
R074425103 |
5% Capped Account |
0 |
| Property Deed Transaction History (Recorded in the County Clerk's Office) | ||||||||||
|---|---|---|---|---|---|---|---|---|---|---|
| Date | Type | Book | Page | Price | Grantor | Grantee | ||||
|
10/27/2021 |
|
Deeds |
$93,000 |
LITKE INVESTMENTS LLC |
PRAIRIE PROPERTY SOLUTIONS LLC |
|||||
|
7/23/2020 |
|
Hmstd Off & |
$0 |
ASCENT INVESTMENTS LLC |
LITKE JOHN C |
|||||
|
7/23/2020 |
|
Hmstd Off & |
$0 |
LITKE JOHN C |
LITKE INVESTMENTS LLC |
|||||
|
3/5/2015 |
|
Other |
$0 |
SECRETARY OF HOUSING & URBAN DEV |
ASCENT INVESTMENTS LLC |
|||||
|
7/24/2014 |
|
Hmstd Off & |
$0 |
BANK OF AMERICA |
SECRETARY OF HOUSING & URBAN DEV |
|||||
| Last Mailed Notice of Value (N.O.V.) Information/History | ||||||||
|---|---|---|---|---|---|---|---|---|
| Year | Date | Market Value | Taxable Market Value | Gross Assessed | Exemption | Net Assessed | ||
|
2026 |
02/06/2026 |
138,500 |
108,816 |
11,968 |
0 |
11,968 |
||
|
2025 |
01/31/2025 |
138,500 |
103,635 |
11,399 |
0 |
11,399 |
||
|
2024 |
01/22/2024 |
129,500 |
98,700 |
10,857 |
0 |
10,857 |
||
|
2022 |
02/22/2022 |
94,000 |
94,000 |
10,340 |
0 |
10,340 |
||
|
2021 |
02/24/2021 |
83,000 |
76,650 |
8,431 |
0 |
8,431 |
||
| Property Building Permit History | |||||||||||
|---|---|---|---|---|---|---|---|---|---|---|---|
| Issued | Permit # | Provided by | Bldg # | Description | Est Construction Cost | Status | |||||
| No Building Permit records returned. | |||||||||||
| Click button on building number to access detailed information: | ||||||
|---|---|---|---|---|---|---|
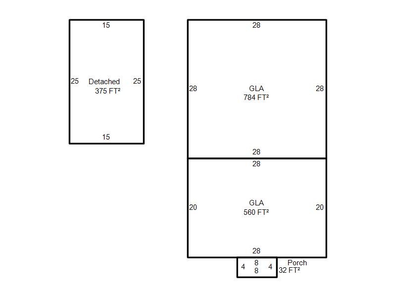
| Bldg # | Vacant/Improved Land | Bldg Description | Year Built | SqFt | # Stories | |
|
1 |
Improved |
Ranch 1 Story |
1952 |
1,344 |
1 Stories |
|