|
|
|
| Larry Stein Oklahoma County Assessor (405) 713-1200 - Public Access System |
|
|
|
|
|
|
| Real Property Display - Screen Produced 3/14/2026 8:01:41 AM | ||||
|---|---|---|---|---|
| Account: R121571490 | Type: Residential | Location: |
927 CHOCTAW RIDGE RD |
|
| Building Name/Occupant: |
|
MIDWEST CITY |
||
| Owner Name 1: | 927 CHOCTAW RIDGE ROAD TRUST |
Parcel PIN#: |
1222-12-157-1490 |
|
| Owner Name 2: | SMITH SCOTT ROYAL TRS | 1/4 section #: |
1222 |
|
| Owner Name 3: | Parent Acct: |
|
||
| Billing Address: | PO BOX 9362 | Tax District: |
|
|
| City, State, Zip | FARGO, ND 58106 | School System: |
Choctaw #4 |
|
|
Country: (If noted) |
UNITED STATES |
Land Size: |
0.1566 Acres |
|
|
Land Value: 37,510 |
|
|||
|
Sect 6-T11N-R1W Qtr SE |
WILLOW RIDGE ESTATES TO MWC
Block
002
Lot
022
|
|||
| Full Legal Description: WILLOW RIDGE ESTATES TO MWC 002 022 |
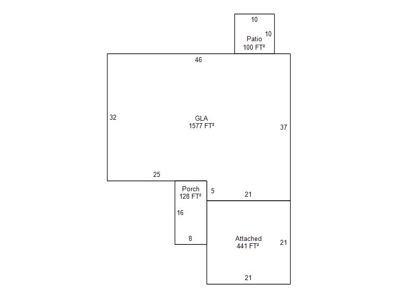
| Photo & Sketch (if available) | Comp Sales (ordered by relevancy) |
|
||||||||||||||||||
|
||||||||||||||||||||
| Value History (*The County Treasurer 405-713-1300 posts & collects actual tax amounts. Contact information HERE) | |||||||||||||
|---|---|---|---|---|---|---|---|---|---|---|---|---|---|
| Year | Market Value | Taxable Mkt Value | Gross Assessed | Exemption | Net Assessed | Millage | Est. Tax | Tax Savings | |||||
|
2025 |
206,500 |
177,694 |
19,545 |
0 |
19,545 |
127.03 |
$2,483 |
$403 |
|||||
|
2024 |
201,500 |
169,233 |
18,615 |
0 |
18,615 |
127.00 |
$2,364 |
$451 |
|||||
|
2023 |
190,000 |
161,175 |
17,729 |
0 |
17,729 |
128.50 |
$2,278 |
$407 |
|||||
|
2022 |
153,500 |
153,500 |
16,885 |
0 |
16,885 |
127.22 |
$2,148 |
$0 |
|||||
|
2021 |
153,500 |
153,500 |
16,885 |
0 |
16,885 |
126.69 |
$2,139 |
$0 |
|||||
| Property Account Status/Adjustments/Exemptions | ||
|---|---|---|
| Account # | Exemption Description | Amount |
|
R121571490 |
5% Capped Account |
0 |
| Property Deed Transaction History (Recorded in the County Clerk's Office) | ||||||||||
|---|---|---|---|---|---|---|---|---|---|---|
| Date | Type | Book | Page | Price | Grantor | Grantee | ||||
|
10/1/2018 |
|
Hmstd Off & |
$0 |
HOGE CHAD J |
SMITH SCOTT ROYAL TRS |
|||||
|
8/13/2018 |
|
Deeds |
$160,000 |
REI NATION LLC |
HOGE CHAD J |
|||||
|
2/13/2018 |
|
Deeds |
$96,000 |
PROF 2013 S3 LEGAL TITLE TRUST |
REI NATION LLC |
|||||
|
10/23/2017 |
|
Hmstd Off & |
$0 |
JOHNSON APRIL N |
PROF 2013 S3 LEGAL TITLE TRUST |
|||||
|
5/14/2010 |
|
Deeds |
$115,000 |
GUDENRATH MARLENE |
JOHNSON APRIL N |
|||||
| Last Mailed Notice of Value (N.O.V.) Information/History | ||||||||
|---|---|---|---|---|---|---|---|---|
| Year | Date | Market Value | Taxable Market Value | Gross Assessed | Exemption | Net Assessed | ||
|
2026 |
02/06/2026 |
211,500 |
186,578 |
20,523 |
0 |
20,523 |
||
|
2025 |
01/31/2025 |
206,500 |
177,694 |
19,545 |
0 |
19,545 |
||
|
2024 |
01/22/2024 |
201,500 |
169,233 |
18,615 |
0 |
18,615 |
||
|
2023 |
01/23/2023 |
190,000 |
161,175 |
17,729 |
0 |
17,729 |
||
|
2019 |
02/26/2019 |
153,500 |
153,500 |
16,885 |
0 |
16,885 |
||
| Property Building Permit History | |||||||||||
|---|---|---|---|---|---|---|---|---|---|---|---|
| Issued | Permit # | Provided by | Bldg # | Description | Est Construction Cost | Status | |||||
| No Building Permit records returned. | |||||||||||
| Click button on building number to access detailed information: | ||||||
|---|---|---|---|---|---|---|
| Bldg # | Vacant/Improved Land | Bldg Description | Year Built | SqFt | # Stories | |
|
1 |
Improved |
Ranch 1 Story |
1984 |
1,577 |
1 Stories |
|