|
|
|
| Larry Stein Oklahoma County Assessor (405) 713-1200 - Public Access System |
|
|
|
|
|
|
| Real Property Display - Screen Produced 3/16/2026 4:03:06 AM | ||||
|---|---|---|---|---|
| Account: R121572020 | Type: Residential | Location: |
10533 KRISTIE LN |
|
| Building Name/Occupant: |
|
MIDWEST CITY |
||
| Owner Name 1: | STEVENS JEFFERY SCOTT |
Parcel PIN#: |
1222-12-157-2020 |
|
| Owner Name 2: | GREENE JENNIFER RENEA | 1/4 section #: |
1222 |
|
| Owner Name 3: | Parent Acct: |
|
||
| Billing Address: | 10533 KRISTIE LN | Tax District: |
|
|
| City, State, Zip | MIDWEST CITY, OK 73130 | School System: |
Choctaw #4 |
|
|
Country: (If noted) |
UNITED STATES |
Land Size: |
0.1515 Acres |
|
|
Land Value: 36,300 |
|
|||
|
Sect 6-T11N-R1W Qtr SE |
WILLOW RIDGE ESTATES TO MWC
Block
002
Lot
075
|
|||
| Full Legal Description: WILLOW RIDGE ESTATES TO MWC 002 075 |
| Photo & Sketch (if available) | Comp Sales (ordered by relevancy) |
|
||||||||||||||||||
|
||||||||||||||||||||
| Value History (*The County Treasurer 405-713-1300 posts & collects actual tax amounts. Contact information HERE) | |||||||||||||
|---|---|---|---|---|---|---|---|---|---|---|---|---|---|
| Year | Market Value | Taxable Mkt Value | Gross Assessed | Exemption | Net Assessed | Millage | Est. Tax | Tax Savings | |||||
|
2025 |
242,000 |
220,527 |
24,257 |
0 |
24,257 |
127.03 |
$3,081 |
$300 |
|||||
|
2024 |
237,000 |
210,026 |
23,102 |
0 |
23,102 |
127.00 |
$2,934 |
$377 |
|||||
|
2023 |
226,000 |
200,025 |
22,002 |
0 |
22,002 |
128.50 |
$2,827 |
$367 |
|||||
|
2022 |
190,500 |
190,500 |
20,955 |
0 |
20,955 |
127.22 |
$2,666 |
$0 |
|||||
|
2021 |
165,500 |
165,500 |
18,205 |
1,000 |
17,205 |
126.69 |
$2,180 |
$127 |
|||||
| Property Account Status/Adjustments/Exemptions | ||
|---|---|---|
| Account # | Exemption Description | Amount |
|
R121572020 |
Homestead |
1,000 |
|
R121572020 |
3% Cap Homestead |
0 |
| Property Deed Transaction History (Recorded in the County Clerk's Office) | ||||||||||
|---|---|---|---|---|---|---|---|---|---|---|
| Date | Type | Book | Page | Price | Grantor | Grantee | ||||
|
12/23/2021 |
|
Deeds |
$199,500 |
ANDERSEN KODY L & AMBER |
STEVENS JEFFERY SCOTT |
|||||
|
2/11/2020 |
|
Deeds |
$165,000 |
LIFES GOLD INC |
ANDERSEN KODY L & AMBER |
|||||
|
12/6/2018 |
|
Deeds |
$101,000 |
CITIMORTGAGE INC |
LIFES GOLD INC |
|||||
|
9/24/2018 |
|
Hmstd Off & |
$0 |
CAMPBELL JOSHUA F |
CITIMORTGAGE INC |
|||||
|
6/8/2009 |
|
Deeds |
$0 |
KELPINE KATHERINE CAMPBELL JOSH |
CAMPBELL JOSHUA F |
|||||
| Last Mailed Notice of Value (N.O.V.) Information/History | ||||||||
|---|---|---|---|---|---|---|---|---|
| Year | Date | Market Value | Taxable Market Value | Gross Assessed | Exemption | Net Assessed | ||
|
2026 |
02/06/2026 |
247,500 |
231,553 |
25,469 |
0 |
25,469 |
||
|
2025 |
01/31/2025 |
242,000 |
220,527 |
24,257 |
0 |
24,257 |
||
|
2024 |
01/22/2024 |
237,000 |
210,026 |
23,102 |
0 |
23,102 |
||
|
2023 |
01/23/2023 |
226,000 |
200,025 |
22,002 |
0 |
22,002 |
||
|
2022 |
02/22/2022 |
190,500 |
190,500 |
20,955 |
0 |
20,955 |
||
| Property Building Permit History | ||||||
|---|---|---|---|---|---|---|
| Issued | Permit # | Provided by | Bldg # | Description | Est Construction Cost | Status |
|
9/5/2023 |
B-23-2181 |
|
1 |
Remodeled |
34,836 |
Inactive |
| Click button on building number to access detailed information: | ||||||
|---|---|---|---|---|---|---|
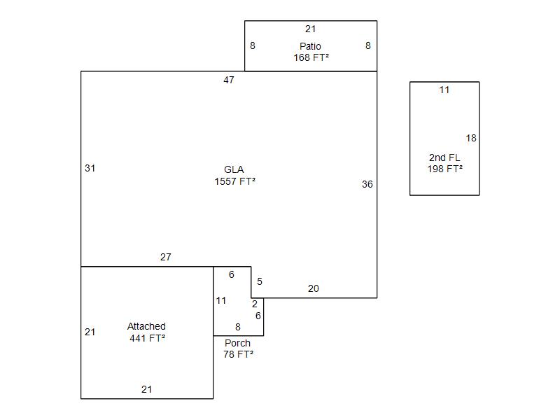
| Bldg # | Vacant/Improved Land | Bldg Description | Year Built | SqFt | # Stories | |
|
1 |
Improved |
1½ Story Fin |
1991 |
1,755 |
1.5 Stories |
|