Larry Stein Oklahoma County Assessor (405) 713-1200 - Public Access System
Home Contact Us Guest Book Map Search New Search
Real Property Display - Screen Produced   4/25/2026 5:30:39 AM 
Account: R203561000  Type: Residential

  

Location:

16451 RIVERROCK CIR

Building Name/Occupant:

 

CHOCTAW

Owner Name 1:  NEWTON ALEXANDRIA & KENNETH W

Parcel PIN#:

1021-20-356-1000

Owner Name 2:    1/4 section #:

1021

Owner Name 3:    Parent Acct:

1021-16-867-0445

Billing Address:  16451 RIVERROCK CIR Tax District:

City, State, Zip  CHOCTAW, OK  73020 School System:

Choctaw #4

Country: (If noted)

  

Land Size:

1.0477  Acres

Personal Property

Land Value: 79,625 

Treasurer:

Sect 6-T11N-R1E Qtr NE

 STONEGATE CROSSING SEC 3   Block 005  Lot 001   Subdivision Sales
 Full Legal Description:  STONEGATE CROSSING SEC 3 BLK 005 LOT 001

NOTE:  The following sales may or may not be used to determine Fair Market Value

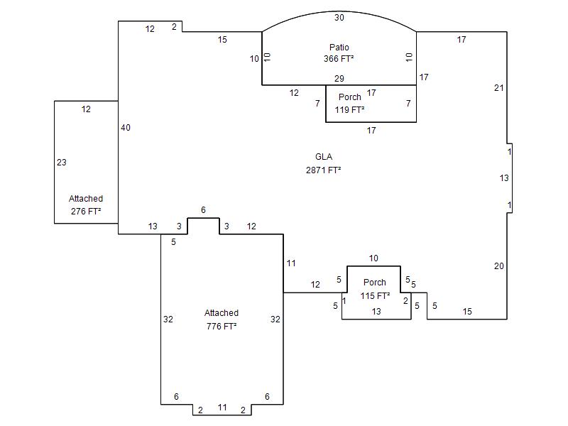
Photo & Sketch (if available) Sales  Sales Report

 16322 SANDSTONE CIR CHOCTAW, OK

07/15/2025

 $550,000 

 16451 RIVERROCK CIR CHOCTAW, OK

06/24/2022

 $430,000 

 16441 COBBLESTONE CIR CHOCTAW, OK

09/14/2022

 $463,000 

 16917 FOX TROT CT CHOCTAW, OK

10/04/2024

 $561,000 

 16382 ROSEROCK CIR CHOCTAW, OK

07/01/2024

 $489,000 

 16956 FOX TROT CT CHOCTAW, OK

07/24/2023

 $520,000 

Value History  (*The County Treasurer 405-713-1300 posts & collects actual tax amounts.  Contact information  HERE)
Year Market Value Taxable Mkt Value Gross Assessed Exemption Net Assessed Millage Est. Tax Tax Savings

2026

511,500 

475,335 

52,286 

1,000 

51,286 

117.21 

$6,011 

$583 

2025

491,000 

461,491 

50,763 

1,000 

49,763 

117.21 

$5,833 

$498 

2024

475,000 

448,050 

49,285 

1,000 

48,285 

116.35 

$5,618 

$461 

[1/8]
Property Account Status/Adjustments/Exemptions
Account # Exemption Description Amount

R203561000

3% Cap Homestead

R203561000

Homestead

1,000 

Property Deed Transaction History   (Recorded in the County Clerk's Office)
Date Type Book Page Price Grantor Grantee

6/24/2022

Deeds

15207

379

 $430,000 

FRENCH ARTOYA

NEWTON ALEXANDRIA & KENNETH W

5/9/2016

Deeds

13118

1013

 $259,000 

DEUTSCHE BANK NATIONAL TRUST CO TRS C/O OCWEN LOAN SERVICING

FRENCH ARTOYA

1/12/2016

Hmstd Off &

13026

1206

 $0 

SPANGLER KAREN E

DEUTSCHE BANK NATIONAL TRUST CO TRS C/O OCWEN LOAN SERVICING

[1/2]
Last Mailed Notice of Value (N.O.V.) Information/History
Year Date Market Value Taxable Market Value Gross Assessed Exemption Net Assessed

2026

02/06/2026

511,500 

475,335 

52,286 

1,000 

51,286 

2025

01/31/2025

491,000 

461,491 

50,763 

1,000 

49,763 

2024

01/22/2024

475,000 

456,750 

50,242 

50,242 

[1/4]
Property Building Permit History
Issued Permit # Provided by Bldg # Description Est Construction Cost Status

11/6/2003

10285827

CHOCTAW

1

Main Dwellin

180,000 

Inactive

Click button below to access detailed information and additional property photos:
  Bldg # Vacant/Improved Land Bldg Description Year Built SqFt # Stories

Click

1

Improved

Ranch 1 Story

2004

2,871 

1 Stories