|
|
|
| Larry Stein Oklahoma County Assessor (405) 713-1200 - Public Access System |
|
|
|
|
|
|
| Real Property Display - Screen Produced 3/20/2026 5:41:49 AM | ||||
|---|---|---|---|---|
| Account: R109762155 | Type: Residential | Location: |
6016 S SHARTEL AVE |
|
| Building Name/Occupant: |
|
OKLAHOMA CITY |
||
| Owner Name 1: | CALDERON MARIA |
Parcel PIN#: |
1712-10-976-2155 |
|
| Owner Name 2: | 1/4 section #: |
1712 |
||
| Owner Name 3: | Parent Acct: |
|
||
| Billing Address: | 6016 S SHARTEL AVE | Tax District: |
|
|
| City, State, Zip | OKLAHOMA CITY, OK 73139-4026 | School System: |
Oklahoma City #89 |
|
|
Country: (If noted) |
Land Size: |
0.3783 Acres |
||
|
Land Value: 27,374 |
|
|||
|
Sect 28-T11N-R3W Qtr NW |
SOUTHWOOD HILLS
Block
006
Lot
011
|
|||
| Full Legal Description: SOUTHWOOD HILLS 006 011 |
| Photo & Sketch (if available) | Comp Sales (ordered by relevancy) |
|
||||||||||||||||||
|
||||||||||||||||||||
| Value History (*The County Treasurer 405-713-1300 posts & collects actual tax amounts. Contact information HERE) | |||||||||||||
|---|---|---|---|---|---|---|---|---|---|---|---|---|---|
| Year | Market Value | Taxable Mkt Value | Gross Assessed | Exemption | Net Assessed | Millage | Est. Tax | Tax Savings | |||||
|
2025 |
149,000 |
115,502 |
12,705 |
0 |
12,705 |
119.02 |
$1,512 |
$439 |
|||||
|
2024 |
145,500 |
110,002 |
12,100 |
0 |
12,100 |
119.70 |
$1,448 |
$467 |
|||||
|
2023 |
134,500 |
104,764 |
11,523 |
0 |
11,523 |
118.33 |
$1,364 |
$387 |
|||||
|
2022 |
118,000 |
99,776 |
10,974 |
0 |
10,974 |
112.69 |
$1,237 |
$226 |
|||||
|
2021 |
103,000 |
95,025 |
10,452 |
0 |
10,452 |
112.29 |
$1,174 |
$99 |
|||||
| Property Account Status/Adjustments/Exemptions | ||
|---|---|---|
| Account # | Exemption Description | Amount |
|
R109762155 |
5% Capped Account |
0 |
| Property Deed Transaction History (Recorded in the County Clerk's Office) | ||||||||||
|---|---|---|---|---|---|---|---|---|---|---|
| Date | Type | Book | Page | Price | Grantor | Grantee | ||||
|
5/11/2012 |
|
Deeds |
$94,000 |
HIBBLEN DORA |
CALDERON MARIA |
|||||
|
7/30/2004 |
|
Deeds |
$80,000 |
BROWN JOE L & CAROL R TRS BROWN CAROL R REV TRUST |
HIBBLEN DORA |
|||||
|
12/11/2003 |
|
Deeds |
$0 |
BROWN JOE L & CAROL R |
BROWN JOE L & CAROL R TRS BROWN CAROL R REV TRUST |
|||||
|
11/30/1998 |
|
Historical |
$0 |
BROWN JOE LESTER |
BROWN JOE L & CAROL R |
|||||
|
2/26/1990 |
|
Historical |
$0 |
BROWN JOE LESTER & CAROL R |
BROWN JOE LESTER |
|||||
| Last Mailed Notice of Value (N.O.V.) Information/History | ||||||||
|---|---|---|---|---|---|---|---|---|
| Year | Date | Market Value | Taxable Market Value | Gross Assessed | Exemption | Net Assessed | ||
|
2026 |
02/06/2026 |
151,500 |
121,277 |
13,340 |
0 |
13,340 |
||
|
2025 |
01/31/2025 |
149,000 |
115,502 |
12,705 |
0 |
12,705 |
||
|
2024 |
01/22/2024 |
145,500 |
110,002 |
12,100 |
0 |
12,100 |
||
|
2023 |
01/23/2023 |
134,500 |
104,764 |
11,523 |
0 |
11,523 |
||
|
2022 |
02/22/2022 |
118,000 |
99,776 |
10,974 |
0 |
10,974 |
||
| Property Building Permit History | |||||||||||
|---|---|---|---|---|---|---|---|---|---|---|---|
| Issued | Permit # | Provided by | Bldg # | Description | Est Construction Cost | Status | |||||
| No Building Permit records returned. | |||||||||||
| Click button on building number to access detailed information: | ||||||
|---|---|---|---|---|---|---|
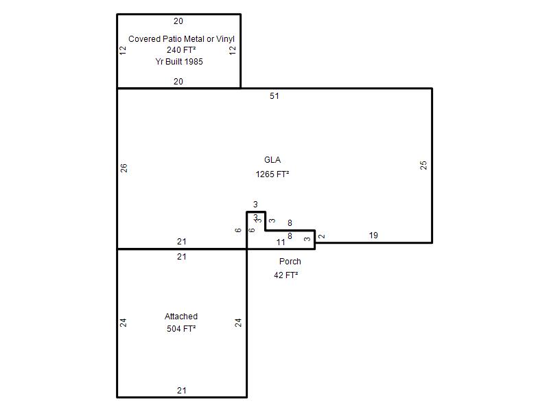
| Bldg # | Vacant/Improved Land | Bldg Description | Year Built | SqFt | # Stories | |
|
1 |
Improved |
Ranch 1 Story |
1963 |
1,265 |
1 Stories |
|