|
|
|
| Larry Stein Oklahoma County Assessor (405) 713-1200 - Public Access System |
|
|
|
|
|
|
| Real Property Display - Screen Produced 3/17/2026 6:20:57 AM | ||||
|---|---|---|---|---|
| Account: R078311100 | Type: Residential | Location: |
7109 S KENTUCKY AVE |
|
| Building Name/Occupant: |
|
OKLAHOMA CITY |
||
| Owner Name 1: | WEEMS MONNIE JOE & CARLA MINNETTE |
Parcel PIN#: |
1715-07-831-1100 |
|
| Owner Name 2: | 1/4 section #: |
1715 |
||
| Owner Name 3: | Parent Acct: |
|
||
| Billing Address: | 7109 S KENTUCKY AVE | Tax District: |
|
|
| City, State, Zip | OKLAHOMA CITY , OK 73159 | School System: |
Oklahoma City #89 |
|
|
Country: (If noted) |
Land Size: |
0.2508 Acres |
||
|
Land Value: 38,784 |
|
|||
|
Sect 29-T11N-R3W Qtr SW |
O T WITTENS SOUTHRIDGE SEC 4
Block
002
Lot
000
|
|||
| Full Legal Description: O T WITTENS SOUTHRIDGE SEC 4 002 000 ALL LOT 1 & E25FT OF LOT 2 |
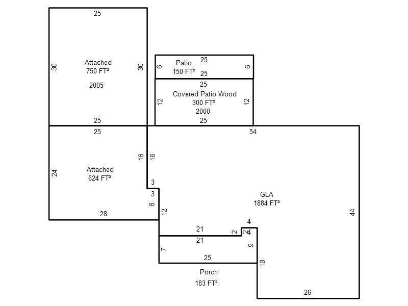
| Photo & Sketch (if available) | Comp Sales (ordered by relevancy) |
|
||||||||||||||||||
|
||||||||||||||||||||
| Value History (*The County Treasurer 405-713-1300 posts & collects actual tax amounts. Contact information HERE) | |||||||||||||
|---|---|---|---|---|---|---|---|---|---|---|---|---|---|
| Year | Market Value | Taxable Mkt Value | Gross Assessed | Exemption | Net Assessed | Millage | Est. Tax | Tax Savings | |||||
|
2025 |
229,000 |
171,571 |
18,872 |
1,000 |
17,872 |
119.02 |
$2,127 |
$871 |
|||||
|
2024 |
224,500 |
166,574 |
18,322 |
1,000 |
17,322 |
119.70 |
$2,074 |
$882 |
|||||
|
2023 |
211,000 |
161,723 |
17,789 |
1,000 |
16,789 |
118.33 |
$1,987 |
$760 |
|||||
|
2022 |
184,500 |
157,013 |
17,271 |
1,000 |
16,271 |
112.69 |
$1,834 |
$453 |
|||||
|
2021 |
162,000 |
152,440 |
16,768 |
1,000 |
15,768 |
112.29 |
$1,771 |
$230 |
|||||
| Property Account Status/Adjustments/Exemptions | ||
|---|---|---|
| Account # | Exemption Description | Amount |
|
R078311100 |
3% Cap Homestead |
0 |
|
R078311100 |
Homestead |
1,000 |
| Property Deed Transaction History (Recorded in the County Clerk's Office) | ||||||||||
|---|---|---|---|---|---|---|---|---|---|---|
| Date | Type | Book | Page | Price | Grantor | Grantee | ||||
|
11/17/2017 |
|
Deeds |
$147,500 |
CAVETT STACEY JEAN |
WEEMS MONNIE JOE & CARLA MINNETTE |
|||||
|
8/10/2012 |
|
Deeds |
$0 |
CAVETT CHARLES L & STACEY J |
CAVETT STACEY JEAN |
|||||
|
5/6/2002 |
|
Deeds |
$102,000 |
GRIZZLE BILL E & ALTHA J |
CAVETT CHARLES L & STACEY J |
|||||
|
12/28/2001 |
|
Deeds |
$96,000 |
WALL NORMA J & JERRY D TRS WALL FAMILY TRUST |
GRIZZLE BILL E & ALTHA J |
|||||
|
1/25/1999 |
|
Historical |
$0 |
WALL JERRY D & NORMA J |
WALL NORMA J & JERRY D TRS |
|||||
| Last Mailed Notice of Value (N.O.V.) Information/History | ||||||||
|---|---|---|---|---|---|---|---|---|
| Year | Date | Market Value | Taxable Market Value | Gross Assessed | Exemption | Net Assessed | ||
|
2026 |
02/06/2026 |
237,000 |
176,718 |
19,438 |
1,000 |
18,438 |
||
|
2025 |
01/31/2025 |
229,000 |
171,571 |
18,872 |
1,000 |
17,872 |
||
|
2024 |
01/22/2024 |
224,500 |
166,574 |
18,322 |
1,000 |
17,322 |
||
|
2023 |
01/23/2023 |
211,000 |
161,723 |
17,789 |
1,000 |
16,789 |
||
|
2022 |
02/22/2022 |
184,500 |
157,013 |
17,271 |
1,000 |
16,271 |
||
| Property Building Permit History | |||||||||||
|---|---|---|---|---|---|---|---|---|---|---|---|
| Issued | Permit # | Provided by | Bldg # | Description | Est Construction Cost | Status | |||||
| No Building Permit records returned. | |||||||||||
| Click button on building number to access detailed information: | ||||||
|---|---|---|---|---|---|---|
| Bldg # | Vacant/Improved Land | Bldg Description | Year Built | SqFt | # Stories | |
|
1 |
Improved |
Ranch 1 Story |
1969 |
1,884 |
1 Stories |
|