|
|
|
| Larry Stein Oklahoma County Assessor (405) 713-1200 - Public Access System |
|
|
|
|
|
|
| Real Property Display - Screen Produced 3/17/2026 7:49:00 AM | ||||
|---|---|---|---|---|
| Account: R099161190 | Type: Residential | Location: |
1308 SW 71ST TER |
|
| Building Name/Occupant: |
|
OKLAHOMA CITY |
||
| Owner Name 1: | ALVARADO AURORA HERNANDEZ |
Parcel PIN#: |
1715-09-916-1190 |
|
| Owner Name 2: | 1/4 section #: |
1715 |
||
| Owner Name 3: | Parent Acct: |
|
||
| Billing Address: | 1308 SW 71ST TER | Tax District: |
|
|
| City, State, Zip | OKLAHOMA CITY, OK 73159-3414 | School System: |
Oklahoma City #89 |
|
|
Country: (If noted) |
Land Size: |
0.2097 Acres |
||
|
Land Value: 36,540 |
|
|||
|
Sect 29-T11N-R3W Qtr SW |
P B ODOMS HILLCREST PARK SEC 3
Block
009
Lot
003
|
|||
| Full Legal Description: P B ODOMS HILLCREST PARK SEC 3 009 003 |
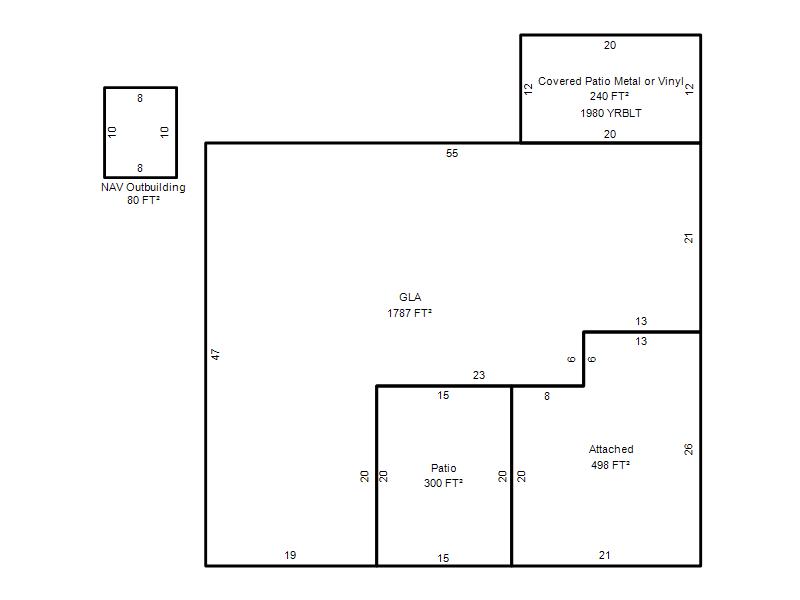
| Photo & Sketch (if available) | Comp Sales (ordered by relevancy) |
|
||||||||||||||||||
|
||||||||||||||||||||
| Value History (*The County Treasurer 405-713-1300 posts & collects actual tax amounts. Contact information HERE) | |||||||||||||
|---|---|---|---|---|---|---|---|---|---|---|---|---|---|
| Year | Market Value | Taxable Mkt Value | Gross Assessed | Exemption | Net Assessed | Millage | Est. Tax | Tax Savings | |||||
|
2025 |
208,000 |
148,964 |
16,385 |
1,000 |
15,385 |
119.02 |
$1,831 |
$892 |
|||||
|
2024 |
202,000 |
144,626 |
15,908 |
1,000 |
14,908 |
119.70 |
$1,785 |
$875 |
|||||
|
2023 |
185,500 |
140,414 |
15,444 |
1,000 |
14,444 |
118.33 |
$1,709 |
$705 |
|||||
|
2022 |
161,500 |
136,325 |
14,995 |
1,000 |
13,995 |
112.69 |
$1,577 |
$425 |
|||||
|
2021 |
141,000 |
132,355 |
14,559 |
1,000 |
13,559 |
112.29 |
$1,523 |
$219 |
|||||
| Property Account Status/Adjustments/Exemptions | ||||||
|---|---|---|---|---|---|---|
| Account # | Exemption Description | Amount | ||||
| No adjustment/exemption records returned. | ||||||
| Property Deed Transaction History (Recorded in the County Clerk's Office) | ||||||||||
|---|---|---|---|---|---|---|---|---|---|---|
| Date | Type | Book | Page | Price | Grantor | Grantee | ||||
|
8/29/2025 |
|
Deeds |
$203,000 |
ABURTO HECTOR QUIJANO |
ALVARADO AURORA HERNANDEZ |
|||||
|
8/28/2014 |
|
Deeds |
$115,000 |
LILES JOE V |
ABURTO HECTOR QUIJANO |
|||||
|
8/5/2013 |
|
Deeds |
$0 |
LILES JOE V & PAMELA G |
LILES JOE V |
|||||
|
9/23/2011 |
|
Deeds |
$0 |
LILES JOE V |
LILES JOE V & PAMELA G |
|||||
|
11/19/2010 |
|
Deeds |
$100,000 |
JUNCTION PROPERTIES LLC |
LILES JOE V |
|||||
| Last Mailed Notice of Value (N.O.V.) Information/History | ||||||||
|---|---|---|---|---|---|---|---|---|
| Year | Date | Market Value | Taxable Market Value | Gross Assessed | Exemption | Net Assessed | ||
|
2026 |
02/06/2026 |
211,000 |
211,000 |
23,210 |
0 |
23,210 |
||
|
2025 |
01/31/2025 |
208,000 |
148,964 |
16,385 |
1,000 |
15,385 |
||
|
2024 |
01/22/2024 |
202,000 |
144,626 |
15,908 |
1,000 |
14,908 |
||
|
2023 |
01/23/2023 |
185,500 |
140,414 |
15,444 |
1,000 |
14,444 |
||
|
2022 |
02/22/2022 |
161,500 |
136,325 |
14,995 |
1,000 |
13,995 |
||
| Property Building Permit History | |||||||||||
|---|---|---|---|---|---|---|---|---|---|---|---|
| Issued | Permit # | Provided by | Bldg # | Description | Est Construction Cost | Status | |||||
| No Building Permit records returned. | |||||||||||
| Click button on building number to access detailed information: | ||||||
|---|---|---|---|---|---|---|
| Bldg # | Vacant/Improved Land | Bldg Description | Year Built | SqFt | # Stories | |
|
1 |
Improved |
Ranch 1 Story |
1968 |
1,787 |
1 Stories |
|