|
|
|
| Larry Stein Oklahoma County Assessor (405) 713-1200 - Public Access System |
|
|
|
|
|
|
| Real Property Display - Screen Produced 3/12/2026 11:24:42 PM | ||||
|---|---|---|---|---|
| Account: R074505760 | Type: Residential | Location: |
1320 SW 61ST ST |
|
| Building Name/Occupant: |
|
OKLAHOMA CITY |
||
| Owner Name 1: | LUMLEY SANDI D |
Parcel PIN#: |
1716-07-450-5760 |
|
| Owner Name 2: | 1/4 section #: |
1716 |
||
| Owner Name 3: | Parent Acct: |
|
||
| Billing Address: | 1320 SW 61ST ST | Tax District: |
|
|
| City, State, Zip | OKLAHOMA CITY, OK 73159-2102 | School System: |
Oklahoma City #89 |
|
|
Country: (If noted) |
Land Size: |
0.1389 Acres |
||
|
Land Value: 21,175 |
|
|||
|
Sect 29-T11N-R3W Qtr NW |
HILLCREST HEIGHTS ADD
Block
089
Lot
006
|
|||
| Full Legal Description: HILLCREST HEIGHTS ADD 089 006 |
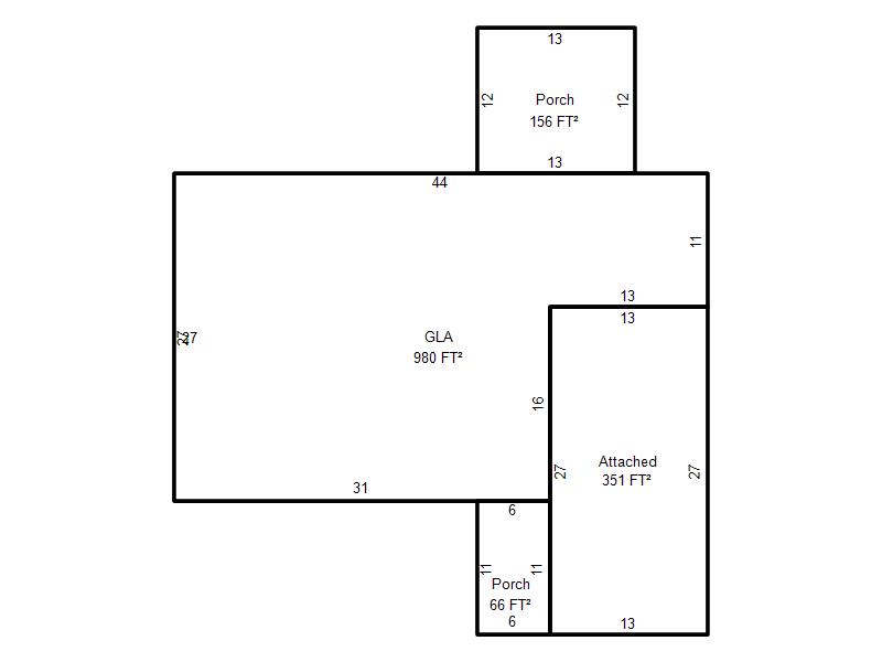
| Photo & Sketch (if available) | Comp Sales (ordered by relevancy) |
|
||||||||||||||||||
|
||||||||||||||||||||
| Value History (*The County Treasurer 405-713-1300 posts & collects actual tax amounts. Contact information HERE) | |||||||||||||
|---|---|---|---|---|---|---|---|---|---|---|---|---|---|
| Year | Market Value | Taxable Mkt Value | Gross Assessed | Exemption | Net Assessed | Millage | Est. Tax | Tax Savings | |||||
|
2025 |
140,000 |
83,629 |
9,198 |
1,000 |
8,198 |
119.02 |
$976 |
$857 |
|||||
|
2024 |
130,000 |
81,194 |
8,931 |
1,000 |
7,931 |
119.70 |
$949 |
$762 |
|||||
|
2023 |
117,500 |
78,830 |
8,670 |
1,000 |
7,670 |
118.33 |
$908 |
$622 |
|||||
|
2022 |
104,000 |
76,534 |
8,418 |
1,000 |
7,418 |
112.69 |
$836 |
$453 |
|||||
|
2021 |
86,500 |
74,305 |
8,173 |
1,000 |
7,173 |
112.29 |
$806 |
$263 |
|||||
| Property Account Status/Adjustments/Exemptions | ||
|---|---|---|
| Account # | Exemption Description | Amount |
|
R074505760 |
3% Cap Homestead |
0 |
|
R074505760 |
Homestead |
1,000 |
| Property Deed Transaction History (Recorded in the County Clerk's Office) | |||||||
|---|---|---|---|---|---|---|---|
| Date | Type | Book | Page | Price | Grantor | Grantee | |
|
5/14/1999 |
|
Deeds |
$45,000 |
DAVIS ERLENE |
LUMLEY SANDI D |
||
|
11/1/1978 |
|
Historical |
$0 |
|
DAVIS ERLENE |
||
| Last Mailed Notice of Value (N.O.V.) Information/History | ||||||||
|---|---|---|---|---|---|---|---|---|
| Year | Date | Market Value | Taxable Market Value | Gross Assessed | Exemption | Net Assessed | ||
|
2026 |
02/06/2026 |
138,500 |
86,137 |
9,474 |
1,000 |
8,474 |
||
|
2025 |
01/31/2025 |
140,000 |
83,629 |
9,198 |
1,000 |
8,198 |
||
|
2024 |
01/22/2024 |
130,000 |
81,194 |
8,931 |
1,000 |
7,931 |
||
|
2023 |
01/23/2023 |
117,500 |
78,830 |
8,670 |
1,000 |
7,670 |
||
|
2022 |
02/22/2022 |
104,000 |
76,534 |
8,418 |
1,000 |
7,418 |
||
| Property Building Permit History | |||||||||||
|---|---|---|---|---|---|---|---|---|---|---|---|
| Issued | Permit # | Provided by | Bldg # | Description | Est Construction Cost | Status | |||||
| No Building Permit records returned. | |||||||||||
| Click button on building number to access detailed information: | ||||||
|---|---|---|---|---|---|---|
| Bldg # | Vacant/Improved Land | Bldg Description | Year Built | SqFt | # Stories | |
|
1 |
Improved |
Ranch 1 Story |
1963 |
980 |
1 Stories |
|