Larry Stein Oklahoma County Assessor (405) 713-1200 - Public Access System
Home Contact Us Guest Book Map Search New Search
Real Property Display - Screen Produced   4/27/2026 7:41:13 PM 
Account: R201451100  Type: Residential

  

Location:

634 HOUSER DR

Building Name/Occupant:

 

CHOCTAW

Owner Name 1:  GAREN TRAVIS M & AMANDA J

Parcel PIN#:

1024-20-145-1100

Owner Name 2:    1/4 section #:

1024

Owner Name 3:    Parent Acct:

1024-19-415-3030

Billing Address:  634 HOUSER DR Tax District:

City, State, Zip  CHOCTAW, OK  73020-7499 School System:

Choctaw #4

Country: (If noted)

  

Land Size:

0.9750  Acres

Personal Property

Land Value: 47,775 

Treasurer:

Sect 6-T11N-R1E Qtr NW

 HOUSER HILLS SEC II   Block 001  Lot 011   Subdivision Sales
 Full Legal Description:  HOUSER HILLS SEC II BLK 001 LOT 011

NOTE:  The following sales may or may not be used to determine Fair Market Value

Photo & Sketch (if available) Sales  Sales Report

 18205 WHISPER CREEK DR UNINCORPORATED, OK

07/08/2025

 $325,000 

 16334 E RENO AVE CHOCTAW, OK

10/31/2025

 $400,000 

 2507 FERGUSON DR UNINCORPORATED, OK

07/18/2025

 $352,500 

 18205 WHISPER CREEK DR UNINCORPORATED, OK

11/16/2023

 $312,000 

 19806 AARON DR UNINCORPORATED, OK

02/28/2025

 $240,000 

 23 LIBERTY LN UNINCORPORATED, OK

01/10/2025

 $480,000 

Value History  (*The County Treasurer 405-713-1300 posts & collects actual tax amounts.  Contact information  HERE)
Year Market Value Taxable Mkt Value Gross Assessed Exemption Net Assessed Millage Est. Tax Tax Savings

2026

353,000 

266,271 

29,289 

1,000 

28,289 

117.21 

$3,316 

$1,235 

2025

379,500 

258,516 

28,436 

1,000 

27,436 

117.21 

$3,216 

$1,677 

2024

381,500 

250,987 

27,608 

1,000 

26,608 

116.35 

$3,096 

$1,787 

[1/9]
Property Account Status/Adjustments/Exemptions
Account # Exemption Description Amount

R201451100

3% Cap Homestead

R201451100

Homestead

1,000 

Property Deed Transaction History   (Recorded in the County Clerk's Office)
Date Type Book Page Price Grantor Grantee

12/3/2013

Deeds

12422

1562

 $225,000 

WEATHERFORD SHELLEY KAY

GAREN TRAVIS M & AMANDA J

8/11/2011

Deeds

11698

1117

 $0 

WEATHERFORD WILLIAM G & SHELLEY KAY

WEATHERFORD SHELLEY KAY

3/31/2004

Deeds

9264

365

 $184,000 

LACHANCE ROLAND M & CHAVELLE M

WEATHERFORD WILLIAM G & SHELLEY KAY

[1/2]
Last Mailed Notice of Value (N.O.V.) Information/History
Year Date Market Value Taxable Market Value Gross Assessed Exemption Net Assessed

2026

02/06/2026

353,000 

266,271 

29,289 

1,000 

28,289 

2025

01/31/2025

379,500 

258,516 

28,436 

1,000 

27,436 

2024

01/22/2024

381,500 

250,987 

27,608 

1,000 

26,608 

[1/5]
Property Building Permit History
Issued Permit # Provided by Bldg # Description Est Construction Cost Status

11/1/2005

10315592

CHOCTAW

1

Storage Buil

10,800 

Inactive

7/28/1999

10270538

OKLAHOMA CITY

1

Main Dwellin

100,000 

Inactive

Click button below to access detailed information and additional property photos:
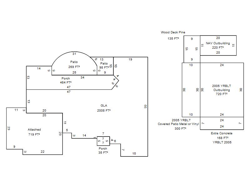
  Bldg # Vacant/Improved Land Bldg Description Year Built SqFt # Stories

Click

1

Improved

Ranch 1 Story

1999

2,008 

1 Stories