|
|
|
| Larry Stein Oklahoma County Assessor (405) 713-1200 - Public Access System |
|
|
|
|
|
|
| Real Property Display - Screen Produced 2/27/2026 5:13:52 AM | ||||
|---|---|---|---|---|
| Account: R203561060 | Type: Residential | Location: |
16328 RIVERROCK CIR |
|
| Building Name/Occupant: |
|
CHOCTAW |
||
| Owner Name 1: | OAKLEY TRUST |
Parcel PIN#: |
1024-20-356-1060 |
|
| Owner Name 2: | OAKLEY RICHARD L & CAROL M TRS | 1/4 section #: |
1024 |
|
| Owner Name 3: | Parent Acct: |
1021-16-867-0445 |
||
| Billing Address: | 16328 RIVER ROCK CIR | Tax District: |
|
|
| City, State, Zip | CHOCTAW, OK 73020 | School System: |
Choctaw #4 |
|
|
Country: (If noted) |
Land Size: |
1.1912 Acres |
||
|
Land Value: 90,531 |
|
|||
|
Sect 6-T11N-R1E Qtr NW |
STONEGATE CROSSING SEC 3
Block
005
Lot
007
|
|||
| Full Legal Description: STONEGATE CROSSING SEC 3 BLK 005 LOT 007 |
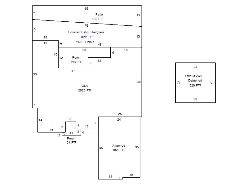
| Photo & Sketch (if available) | Comp Sales (ordered by relevancy) |
|
||||||||||||||||||
|
||||||||||||||||||||
| Value History (*The County Treasurer 405-713-1300 posts & collects actual tax amounts. Contact information HERE) | |||||||||||||
|---|---|---|---|---|---|---|---|---|---|---|---|---|---|
| Year | Market Value | Taxable Mkt Value | Gross Assessed | Exemption | Net Assessed | Millage | Est. Tax | Tax Savings | |||||
|
2025 |
539,000 |
521,001 |
57,309 |
1,000 |
56,309 |
117.21 |
$6,600 |
$349 |
|||||
|
2024 |
527,000 |
505,827 |
55,640 |
1,000 |
54,640 |
116.35 |
$6,357 |
$387 |
|||||
|
2023 |
520,500 |
491,095 |
54,020 |
1,000 |
53,020 |
118.06 |
$6,260 |
$500 |
|||||
|
2022 |
436,500 |
436,500 |
48,015 |
1,000 |
47,015 |
116.14 |
$5,460 |
$116 |
|||||
|
2021 |
337,500 |
332,175 |
36,539 |
1,000 |
35,539 |
116.17 |
$4,129 |
$184 |
|||||
| Property Account Status/Adjustments/Exemptions | ||
|---|---|---|
| Account # | Exemption Description | Amount |
|
R203561060 |
3% Cap Homestead |
0 |
|
R203561060 |
Homestead |
1,000 |
| Property Deed Transaction History (Recorded in the County Clerk's Office) | ||||||||||
|---|---|---|---|---|---|---|---|---|---|---|
| Date | Type | Book | Page | Price | Grantor | Grantee | ||||
|
2/16/2022 |
|
Deeds |
$0 |
OAKLEY RICHARD L |
OAKLEY TRUST |
|||||
|
10/19/2021 |
|
Deeds |
$445,000 |
PENNER D DWAINE & SHERI L |
OAKLEY RICHARD L |
|||||
|
10/19/2021 |
|
Deeds |
$445,000 |
PENNER D DWAINE & SHERI L |
OAKLEY RICHARD L |
|||||
|
10/1/2015 |
|
Deeds |
$332,000 |
SWM & SONS INC |
PENNER D DWAINE & SHERI L |
|||||
|
2/12/2015 |
|
Deeds |
$42,000 |
TERRAHOMA INC |
PENNER D DWAINE & SHERI L |
|||||
| Last Mailed Notice of Value (N.O.V.) Information/History | ||||||||
|---|---|---|---|---|---|---|---|---|
| Year | Date | Market Value | Taxable Market Value | Gross Assessed | Exemption | Net Assessed | ||
|
2026 |
02/06/2026 |
569,500 |
536,631 |
59,029 |
1,000 |
58,029 |
||
|
2025 |
01/31/2025 |
539,000 |
521,001 |
57,309 |
1,000 |
56,309 |
||
|
2024 |
01/22/2024 |
527,000 |
505,827 |
55,640 |
1,000 |
54,640 |
||
|
2023 |
03/02/2023 |
520,500 |
491,095 |
54,020 |
1,000 |
53,020 |
||
|
2022 |
02/22/2022 |
436,500 |
436,500 |
48,015 |
1,000 |
47,015 |
||
| Property Building Permit History | ||||||
|---|---|---|---|---|---|---|
| Issued | Permit # | Provided by | Bldg # | Description | Est Construction Cost | Status |
|
9/12/2022 |
|
|
1 |
Garage |
|
Inactive |
|
2/5/2015 |
10471105 |
CHOCTAW |
1 |
Main Dwellin |
273,300 |
Inactive |
| Click button on building number to access detailed information: | ||||||
|---|---|---|---|---|---|---|
| Bldg # | Vacant/Improved Land | Bldg Description | Year Built | SqFt | # Stories | |
|
1 |
Improved |
Ranch 1 Story |
2015 |
2,536 |
1 Stories |
|