|
|
|
| Larry Stein Oklahoma County Assessor (405) 713-1200 - Public Access System |
|
|
|
|
|
|
| Real Property Display - Screen Produced 2/27/2026 5:13:52 AM | ||||
|---|---|---|---|---|
| Account: R203561070 | Type: Residential | Location: |
16340 RIVERROCK CIR |
|
| Building Name/Occupant: |
|
CHOCTAW |
||
| Owner Name 1: | CORRIVEAU GARY |
Parcel PIN#: |
1024-20-356-1070 |
|
| Owner Name 2: | CORRIVEAU CHERYL | 1/4 section #: |
1024 |
|
| Owner Name 3: | Parent Acct: |
1021-16-867-0445 |
||
| Billing Address: | 16340 RIVERROCK CIR | Tax District: |
|
|
| City, State, Zip | CHOCTAW , OK 73020-6959 | School System: |
Choctaw #4 |
|
|
Country: (If noted) |
Land Size: |
1.0005 Acres |
||
|
Land Value: 76,038 |
|
|||
|
Sect 6-T11N-R1E Qtr NW |
STONEGATE CROSSING SEC 3
Block
005
Lot
008
|
|||
| Full Legal Description: STONEGATE CROSSING SEC 3 BLK 005 LOT 008 |
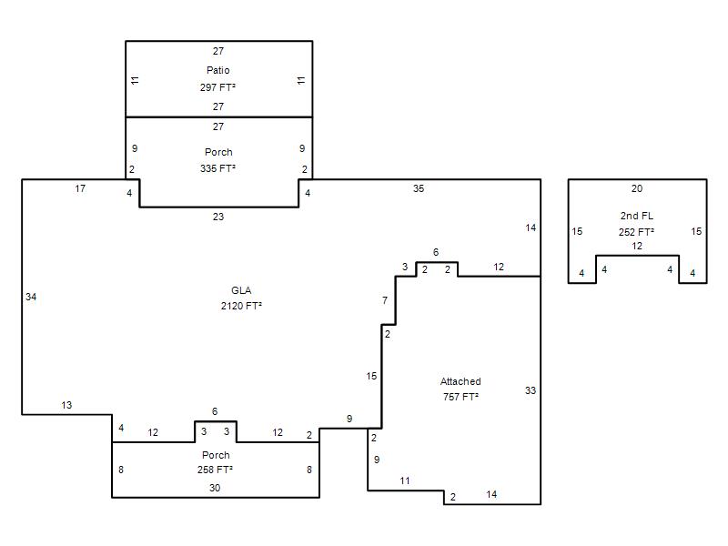
| Photo & Sketch (if available) | Comp Sales (ordered by relevancy) |
|
||||||||||||||||||
|
||||||||||||||||||||
| Value History (*The County Treasurer 405-713-1300 posts & collects actual tax amounts. Contact information HERE) | |||||||||||||
|---|---|---|---|---|---|---|---|---|---|---|---|---|---|
| Year | Market Value | Taxable Mkt Value | Gross Assessed | Exemption | Net Assessed | Millage | Est. Tax | Tax Savings | |||||
|
2025 |
474,000 |
358,472 |
39,431 |
1,000 |
38,431 |
117.21 |
$4,505 |
$1,607 |
|||||
|
2024 |
456,000 |
348,032 |
38,283 |
1,000 |
37,283 |
116.35 |
$4,338 |
$1,498 |
|||||
|
2023 |
456,000 |
337,896 |
37,168 |
1,000 |
36,168 |
118.06 |
$4,270 |
$1,652 |
|||||
|
2022 |
372,500 |
328,055 |
36,086 |
1,000 |
35,086 |
116.14 |
$4,075 |
$684 |
|||||
|
2021 |
318,500 |
318,500 |
35,035 |
1,000 |
34,035 |
116.17 |
$3,954 |
$116 |
|||||
| Property Account Status/Adjustments/Exemptions | ||
|---|---|---|
| Account # | Exemption Description | Amount |
|
R203561070 |
3% Cap Homestead |
0 |
|
R203561070 |
Homestead |
1,000 |
| Property Deed Transaction History (Recorded in the County Clerk's Office) | |||||||
|---|---|---|---|---|---|---|---|
| Date | Type | Book | Page | Price | Grantor | Grantee | |
|
9/6/2019 |
|
Deeds |
$325,000 |
RITZ MARK A & CARRI D |
CORRIVEAU GARY |
||
|
12/3/2007 |
|
Deeds |
$0 |
RITZ MARK A |
RITZ MARK A & CARRI D |
||
|
9/7/2006 |
|
Deeds |
$224,000 |
DAVIS RUSSELL & LYNDSAY |
RITZ MARK A |
||
|
5/14/2004 |
|
Deeds |
$30,000 |
ROYALE DEVELOPERS LLC |
DAVIS RUSSELL & LYNDSAY |
||
| Last Mailed Notice of Value (N.O.V.) Information/History | ||||||||
|---|---|---|---|---|---|---|---|---|
| Year | Date | Market Value | Taxable Market Value | Gross Assessed | Exemption | Net Assessed | ||
|
2026 |
02/06/2026 |
495,500 |
369,226 |
40,613 |
1,000 |
39,613 |
||
|
2025 |
01/31/2025 |
474,000 |
358,472 |
39,431 |
1,000 |
38,431 |
||
|
2024 |
01/22/2024 |
456,000 |
348,032 |
38,283 |
1,000 |
37,283 |
||
|
2023 |
01/23/2023 |
456,000 |
337,896 |
37,168 |
1,000 |
36,168 |
||
|
2022 |
02/22/2022 |
372,500 |
328,055 |
36,086 |
1,000 |
35,086 |
||
| Property Building Permit History | ||||||
|---|---|---|---|---|---|---|
| Issued | Permit # | Provided by | Bldg # | Description | Est Construction Cost | Status |
|
4/6/2007 |
10336159 |
CHOCTAW |
1 |
Swimming Pool |
25,000 |
Inactive |
|
8/20/2004 |
10294117 |
OKLAHOMA CITY |
1 |
Main Dwellin |
0 |
Inactive |
| Click button on building number to access detailed information: | ||||||
|---|---|---|---|---|---|---|
| Bldg # | Vacant/Improved Land | Bldg Description | Year Built | SqFt | # Stories | |
|
1 |
Improved |
1½ Story Fin |
2004 |
2,372 |
1.5 Stories |
|