Larry Stein Oklahoma County Assessor (405) 713-1200 - Public Access System
Home Contact Us Guest Book Map Search New Search
Real Property Display - Screen Produced   4/23/2026 1:47:23 PM 
Account: R206411150  Type: Residential

  

Location:

16542 SANDSTONE CIR

Building Name/Occupant:

 

CHOCTAW

Owner Name 1:  BEATY JAMES & PEGGY

Parcel PIN#:

1021-20-641-1150

Owner Name 2:    1/4 section #:

1021

Owner Name 3:    Parent Acct:

1021-16-867-0445

Billing Address:  16542 SANDSTONE CIR Tax District:

City, State, Zip  CHOCTAW, OK  73020-8292 School System:

Choctaw #4

Country: (If noted)

  

Land Size:

1.0876  Acres

Personal Property

Land Value: 79,177 

Treasurer:

Sect 6-T11N-R1E Qtr NE

 STONEGATE CROSSING SEC 5   Block 008  Lot 009   Subdivision Sales
 Full Legal Description:  STONEGATE CROSSING SEC 5 BLK 008 LOT 009

NOTE:  The following sales may or may not be used to determine Fair Market Value

Photo & Sketch (if available) Sales  Sales Report

 16542 SANDSTONE CIR CHOCTAW, OK

05/07/2025

 $665,000 

 16542 SANDSTONE CIR CHOCTAW, OK

11/01/2023

 $605,000 

 16371 SANDSTONE CIR CHOCTAW, OK

06/27/2025

 $550,000 

 16322 SANDSTONE CIR CHOCTAW, OK

07/15/2025

 $550,000 

 16382 ROSEROCK CIR CHOCTAW, OK

07/01/2024

 $489,000 

 16590 RIVERROCK CIR CHOCTAW, OK

11/03/2023

 $380,000 

Value History  (*The County Treasurer 405-713-1300 posts & collects actual tax amounts.  Contact information  HERE)
Year Market Value Taxable Mkt Value Gross Assessed Exemption Net Assessed Millage Est. Tax Tax Savings

2026

624,500 

624,500 

68,695 

1,000 

67,695 

117.21 

$7,935 

$117 

2025

582,500 

582,500 

64,075 

1,000 

63,075 

117.21 

$7,393 

$117 

2024

567,500 

567,500 

62,425 

1,000 

61,425 

116.35 

$7,147 

$116 

[1/7]
Property Account Status/Adjustments/Exemptions
Account # Exemption Description Amount

R206411150

Homestead

1,000 

Property Deed Transaction History   (Recorded in the County Clerk's Office)
Date Type Book Page Price Grantor Grantee

5/7/2025

Deeds

16097

72

 $665,000 

DEAN CORLISS P & SANDRA LEE TRS

BEATY JAMES & PEGGY

11/1/2023

Deeds

15596

139

 $605,000 

BOYDSTUN BRAD ROBERT & KRISTIE LYNN

DEAN CORLISS P & SANDRA LEE TRS

4/27/2018

Deeds

13735

536

 $425,000 

WATSON DAVID W & MICHELLE

BOYDSTUN BRAD ROBERT & KRISTIE LYNN

[1/3]
Last Mailed Notice of Value (N.O.V.) Information/History
Year Date Market Value Taxable Market Value Gross Assessed Exemption Net Assessed

2026

02/06/2026

624,500 

624,500 

68,695 

1,000 

67,695 

2025

01/31/2025

582,500 

582,500 

64,075 

1,000 

63,075 

2024

01/22/2024

567,500 

567,500 

62,425 

62,425 

[1/5]
Property Building Permit History
Issued Permit # Provided by Bldg # Description Est Construction Cost Status

8/26/2011

10433377

CHOCTAW

1

Swimming Pool

25,000 

Inactive

6/29/2011

10429935

CHOCTAW

1

Storage Buil

46,000 

Inactive

Click button below to access detailed information and additional property photos:
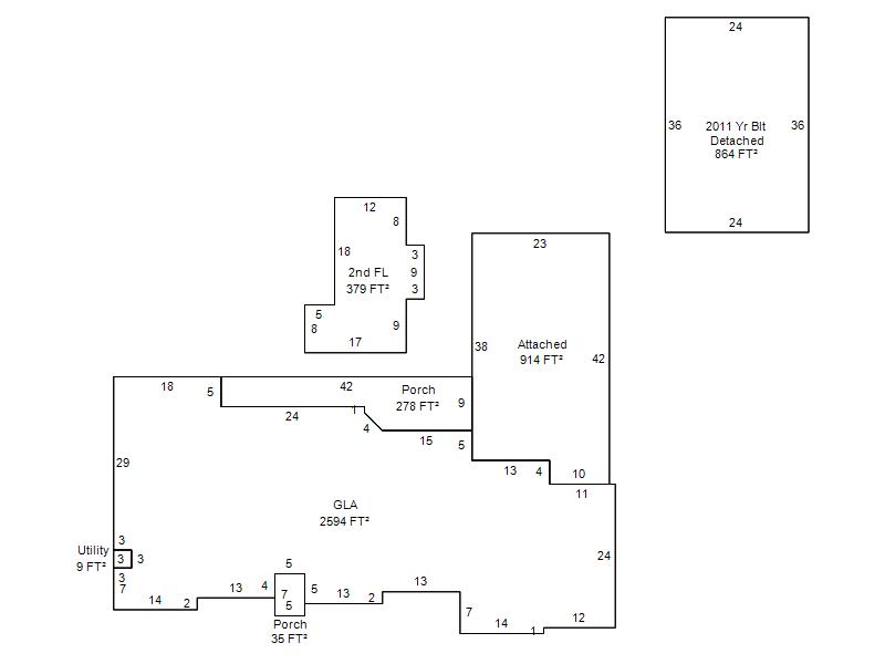
  Bldg # Vacant/Improved Land Bldg Description Year Built SqFt # Stories

Click

1

Improved

1½ Story Fin

2010

2,973 

1.5 Stories