|
|
|
| Larry Stein Oklahoma County Assessor (405) 713-1200 - Public Access System |
|
|
|
|
|
|
| Real Property Display - Screen Produced 3/12/2026 11:33:31 PM | ||||
|---|---|---|---|---|
| Account: R074671035 | Type: Residential | Location: |
3813 SW 37TH ST |
|
| Building Name/Occupant: |
|
OKLAHOMA CITY |
||
| Owner Name 1: | CARTER MARIA A |
Parcel PIN#: |
1854-07-467-1035 |
|
| Owner Name 2: | 1/4 section #: |
1854 |
||
| Owner Name 3: | Parent Acct: |
|
||
| Billing Address: | 10051 S FAIRVIEW DR | Tax District: |
|
|
| City, State, Zip | OKLAHOMA CITY, OK 73159 | School System: |
Oklahoma City #89 |
|
|
Country: (If noted) |
Land Size: |
0.1686 Acres |
||
|
Land Value: 10,649 |
|
|||
|
Sect 14-T11N-R4W Qtr SE |
CROCKER YOUNG
Block
001
Lot
004
|
|||
| Full Legal Description: CROCKER YOUNG 001 004 |
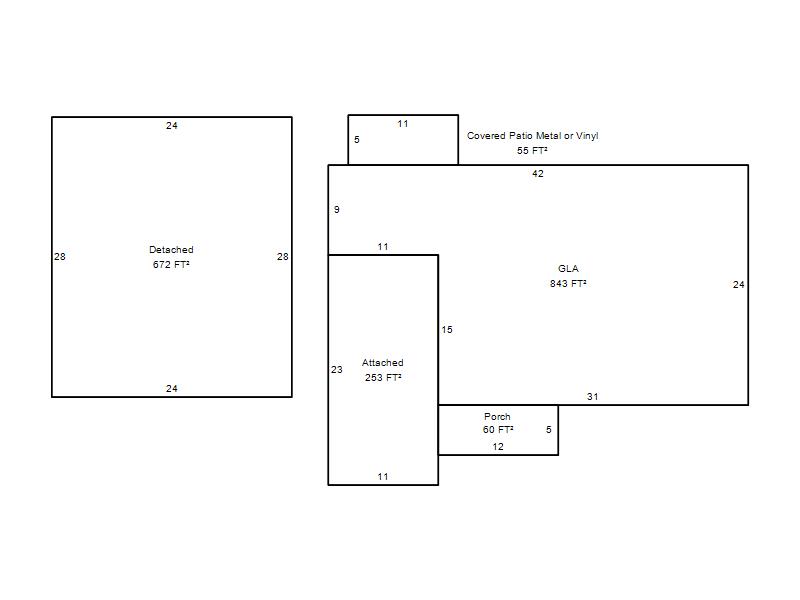
| Photo & Sketch (if available) | Comp Sales (ordered by relevancy) |
|
||||||||||||||||||
|
||||||||||||||||||||
| Value History (*The County Treasurer 405-713-1300 posts & collects actual tax amounts. Contact information HERE) | |||||||||||||
|---|---|---|---|---|---|---|---|---|---|---|---|---|---|
| Year | Market Value | Taxable Mkt Value | Gross Assessed | Exemption | Net Assessed | Millage | Est. Tax | Tax Savings | |||||
|
2025 |
76,000 |
58,275 |
6,410 |
0 |
6,410 |
119.02 |
$763 |
$232 |
|||||
|
2024 |
55,500 |
55,500 |
6,105 |
0 |
6,105 |
119.70 |
$731 |
$0 |
|||||
|
2023 |
64,000 |
64,000 |
7,040 |
0 |
7,040 |
118.33 |
$833 |
$0 |
|||||
|
2022 |
57,000 |
28,785 |
3,166 |
1,000 |
2,166 |
112.69 |
$244 |
$462 |
|||||
|
2021 |
48,000 |
28,785 |
3,166 |
1,000 |
2,166 |
112.29 |
$243 |
$350 |
|||||
| Property Account Status/Adjustments/Exemptions | ||
|---|---|---|
| Account # | Exemption Description | Amount |
|
R074671035 |
5% Capped Account |
0 |
| Property Deed Transaction History (Recorded in the County Clerk's Office) | |||||||
|---|---|---|---|---|---|---|---|
| Date | Type | Book | Page | Price | Grantor | Grantee | |
|
12/19/2022 |
|
Deeds |
$57,000 |
BRUNSON LINDA L |
CARTER MARIA A |
||
|
12/12/2022 |
|
Deeds |
$0 |
BRUNSON CHARLEY G |
BRUNSON LINDA L |
||
|
4/26/2019 |
|
Deeds |
$0 |
BRUNSON CHARLEY G |
BRUNSON CHARLEY G |
||
|
3/8/1996 |
|
Historical |
$22,000 |
ROBERSON STANLEY I & GAIL A |
BRUNSON CHARLEY G |
||
|
7/1/1983 |
|
Historical |
$0 |
|
ROBERSON STANLEY I & GAIL A |
||
| Last Mailed Notice of Value (N.O.V.) Information/History | ||||||||
|---|---|---|---|---|---|---|---|---|
| Year | Date | Market Value | Taxable Market Value | Gross Assessed | Exemption | Net Assessed | ||
|
2026 |
02/06/2026 |
78,500 |
61,188 |
6,730 |
0 |
6,730 |
||
|
2025 |
01/31/2025 |
76,000 |
58,275 |
6,410 |
0 |
6,410 |
||
|
2023 |
01/23/2023 |
64,000 |
64,000 |
7,040 |
0 |
7,040 |
||
|
2022 |
02/22/2022 |
57,000 |
28,785 |
3,166 |
1,000 |
2,166 |
||
|
2021 |
02/24/2021 |
48,000 |
28,785 |
3,166 |
1,000 |
2,166 |
||
| Property Building Permit History | |||||||||||
|---|---|---|---|---|---|---|---|---|---|---|---|
| Issued | Permit # | Provided by | Bldg # | Description | Est Construction Cost | Status | |||||
| No Building Permit records returned. | |||||||||||
| Click button on building number to access detailed information: | ||||||
|---|---|---|---|---|---|---|
| Bldg # | Vacant/Improved Land | Bldg Description | Year Built | SqFt | # Stories | |
|
1 |
Improved |
Ranch 1 Story |
1956 |
843 |
1 Stories |
|