|
|
|
| Larry Stein Oklahoma County Assessor (405) 713-1200 - Public Access System |
|
|
|
|
|
|
| Real Property Display - Screen Produced 3/12/2026 7:09:12 PM | ||||
|---|---|---|---|---|
| Account: R141445075 | Type: Residential | Location: |
8300 CEDAR CREST RD |
|
| Building Name/Occupant: |
|
OKLAHOMA CITY |
||
| Owner Name 1: | LOFTIS KRISTINA APRIL & TAYLOR MICHAEL |
Parcel PIN#: |
1926-14-144-5075 |
|
| Owner Name 2: | 1/4 section #: |
1926 |
||
| Owner Name 3: | Parent Acct: |
1926-16-865-4425 |
||
| Billing Address: | 928 PATCO SPUR AVE | Tax District: |
|
|
| City, State, Zip | YUKON, OK 73099-7166 | School System: |
Moore #2 |
|
|
Country: (If noted) |
Land Size: |
6.6100 Acres |
||
|
Land Value: 325,000 |
|
|||
|
Sect 32-T11N-R4W Qtr SE |
UNPLTD PT SEC 32 11N 4W
Block
000
Lot
000
|
|||
| Full Legal Description: UNPLTD PT SEC 32 11N 4W 000 000 PT SE4 SEC 32 11N 4W BEG 1055.83FT E & 382.83FT S OF NE/C SE4 TH S370.32FT E721.17FT N391.25FT W351.34FT W270.63FT SW95.72FT TO BEG SUBJ TO ESMTS OF RECORD |
| Photo & Sketch (if available) | Comp Sales (ordered by relevancy) |
|
||||||||||||||||||
|
||||||||||||||||||||
| Value History (*The County Treasurer 405-713-1300 posts & collects actual tax amounts. Contact information HERE) | |||||||||||||
|---|---|---|---|---|---|---|---|---|---|---|---|---|---|
| Year | Market Value | Taxable Mkt Value | Gross Assessed | Exemption | Net Assessed | Millage | Est. Tax | Tax Savings | |||||
|
2025 |
482,500 |
482,500 |
53,075 |
0 |
53,075 |
120.83 |
$6,413 |
$0 |
|||||
|
2024 |
325,000 |
325,000 |
35,750 |
0 |
35,750 |
119.82 |
$4,284 |
$0 |
|||||
|
2023 |
92,000 |
75,016 |
8,250 |
0 |
8,250 |
119.00 |
$982 |
$222 |
|||||
|
2022 |
92,000 |
71,444 |
7,858 |
0 |
7,858 |
121.59 |
$956 |
$275 |
|||||
|
2021 |
92,000 |
68,042 |
7,484 |
0 |
7,484 |
120.72 |
$904 |
$318 |
|||||
| Property Account Status/Adjustments/Exemptions | ||
|---|---|---|
| Account # | Exemption Description | Amount |
|
R141445075 |
5% Capped Account |
0 |
| Property Deed Transaction History (Recorded in the County Clerk's Office) | ||||||||||
|---|---|---|---|---|---|---|---|---|---|---|
| Date | Type | Book | Page | Price | Grantor | Grantee | ||||
|
5/17/2023 |
|
Deeds |
$325,000 |
MCINROE REVOCABLE TRUST |
LOFTIS KRISTINA APRIL & TAYLOR MICHAEL |
|||||
|
2/15/2019 |
|
Hmstd Off & |
$0 |
MCINROE JAMES K & SHELLY A |
MCINROE REVOCABLE TRUST |
|||||
|
12/19/2016 |
|
Deeds |
$92,000 |
SYKES LEE T |
MCINROE JAMES K & SHELLY A |
|||||
|
8/5/2013 |
|
Deeds |
$0 |
SYKES ANDREA NICOLE |
SYKES LEE T |
|||||
|
11/3/2010 |
|
Deeds |
$0 |
SYKES ANDREA |
SYKES LEE T |
|||||
| Last Mailed Notice of Value (N.O.V.) Information/History | ||||||||
|---|---|---|---|---|---|---|---|---|
| Year | Date | Market Value | Taxable Market Value | Gross Assessed | Exemption | Net Assessed | ||
|
2025 |
03/28/2025 |
482,500 |
482,500 |
53,075 |
0 |
53,075 |
||
|
2024 |
01/22/2024 |
325,000 |
325,000 |
35,750 |
0 |
35,750 |
||
|
2023 |
01/23/2023 |
92,000 |
75,016 |
8,250 |
0 |
8,250 |
||
|
2022 |
02/22/2022 |
92,000 |
71,444 |
7,858 |
0 |
7,858 |
||
|
2021 |
02/24/2021 |
92,000 |
68,042 |
7,484 |
0 |
7,484 |
||
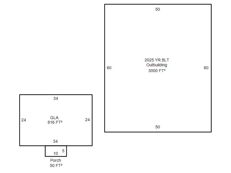
| Property Building Permit History | ||||||
|---|---|---|---|---|---|---|
| Issued | Permit # | Provided by | Bldg # | Description | Est Construction Cost | Status |
|
10/17/2024 |
BLDR-2024-05530 |
|
1 |
Barn |
100,000 |
Inactive |
|
2/1/2024 |
BLDR-2023-05780 |
|
|
Main Dwellin |
157,030 |
Inactive |
| Click button on building number to access detailed information: | ||||||
|---|---|---|---|---|---|---|
| Bldg # | Vacant/Improved Land | Bldg Description | Year Built | SqFt | # Stories | |
|
1 |
Improved |
Ranch 1 Story |
2023 |
816 |
1 Stories |
|