|
|
|
| Larry Stein Oklahoma County Assessor (405) 713-1200 - Public Access System |
|
|
|
|
|
|
| Real Property Display - Screen Produced 3/18/2026 10:57:29 PM | ||||
|---|---|---|---|---|
| Account: R197971120 | Type: Residential | Location: |
17793 NE 12TH ST |
|
| Building Name/Occupant: |
|
HARRAH |
||
| Owner Name 1: | KING GLEN M |
Parcel PIN#: |
2114-19-797-1120 |
|
| Owner Name 2: | 1/4 section #: |
2114 |
||
| Owner Name 3: | Parent Acct: |
|
||
| Billing Address: | 17793 NE 12TH ST | Tax District: |
|
|
| City, State, Zip | CHOCTAW, OK 73020-7456 | School System: |
Choctaw #4 |
|
|
Country: (If noted) |
Land Size: |
1.8500 Acres |
||
|
Land Value: 54,409 |
|
|||
|
Sect 29-T12N-R1E Qtr SE |
GILLESPIE ESTATES 2ND
Block
001
Lot
000
|
|||
| Full Legal Description: GILLESPIE ESTATES 2ND 001 000 LOTS 12 & 13 |
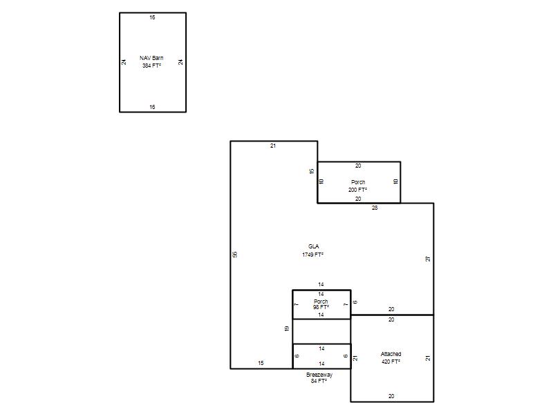
| Photo & Sketch (if available) | Comp Sales (ordered by relevancy) |
|
||||||||||||||||||
|
||||||||||||||||||||
| Value History (*The County Treasurer 405-713-1300 posts & collects actual tax amounts. Contact information HERE) | |||||||||||||
|---|---|---|---|---|---|---|---|---|---|---|---|---|---|
| Year | Market Value | Taxable Mkt Value | Gross Assessed | Exemption | Net Assessed | Millage | Est. Tax | Tax Savings | |||||
|
2025 |
240,500 |
157,500 |
17,325 |
1,000 |
16,325 |
117.21 |
$1,913 |
$1,187 |
|||||
|
2024 |
211,500 |
157,500 |
17,325 |
1,000 |
16,325 |
116.35 |
$1,899 |
$807 |
|||||
|
2023 |
211,000 |
157,500 |
17,325 |
1,000 |
16,325 |
117.10 |
$1,912 |
$806 |
|||||
|
2022 |
210,000 |
157,500 |
17,325 |
1,000 |
16,325 |
115.17 |
$1,880 |
$780 |
|||||
|
2021 |
157,500 |
157,500 |
17,325 |
1,000 |
16,325 |
115.06 |
$1,878 |
$115 |
|||||
| Property Account Status/Adjustments/Exemptions | ||
|---|---|---|
| Account # | Exemption Description | Amount |
|
R197971120 |
Freeze Senior Valuation |
0 |
|
R197971120 |
3% Cap Homestead |
0 |
|
R197971120 |
Homestead |
1,000 |
| Property Deed Transaction History (Recorded in the County Clerk's Office) | |||||||
|---|---|---|---|---|---|---|---|
| Date | Type | Book | Page | Price | Grantor | Grantee | |
|
6/18/1992 |
|
Historical |
$0 |
KING GLEN M & BARBARA S |
KING GLEN M |
||
|
3/1/1983 |
|
Historical |
$0 |
|
KING GLEN M & BARBARA S |
||
| Last Mailed Notice of Value (N.O.V.) Information/History | ||||||||
|---|---|---|---|---|---|---|---|---|
| Year | Date | Market Value | Taxable Market Value | Gross Assessed | Exemption | Net Assessed | ||
|
2026 |
02/06/2026 |
246,500 |
157,500 |
17,325 |
1,000 |
16,325 |
||
|
2025 |
01/31/2025 |
240,500 |
157,500 |
17,325 |
1,000 |
16,325 |
||
|
2024 |
01/22/2024 |
211,500 |
157,500 |
17,325 |
1,000 |
16,325 |
||
|
2023 |
01/23/2023 |
211,000 |
157,500 |
17,325 |
1,000 |
16,325 |
||
|
2022 |
02/22/2022 |
210,000 |
157,500 |
17,325 |
1,000 |
16,325 |
||
| Property Building Permit History | |||||||||||
|---|---|---|---|---|---|---|---|---|---|---|---|
| Issued | Permit # | Provided by | Bldg # | Description | Est Construction Cost | Status | |||||
| No Building Permit records returned. | |||||||||||
| Click button on building number to access detailed information: | ||||||
|---|---|---|---|---|---|---|
| Bldg # | Vacant/Improved Land | Bldg Description | Year Built | SqFt | # Stories | |
|
1 |
Improved |
Ranch 1 Story |
1975 |
1,749 |
1 Stories |
|