|
|
|
| Larry Stein Oklahoma County Assessor (405) 713-1200 - Public Access System |
|
|
|
|
|
|
| Real Property Display - Screen Produced 3/21/2026 5:53:57 AM | ||||
|---|---|---|---|---|
| Account: R192011160 | Type: Residential | Location: |
260 N PEEBLY RD |
|
| Building Name/Occupant: |
|
HARRAH |
||
| Owner Name 1: | NICHOLS GEORGE A & BARBARA A |
Parcel PIN#: |
2131-19-201-1160 |
|
| Owner Name 2: | 1/4 section #: |
2131 |
||
| Owner Name 3: | Parent Acct: |
|
||
| Billing Address: | 260 N PEEBLY RD | Tax District: |
|
|
| City, State, Zip | CHOCTAW, OK 73020-7426 | School System: |
Choctaw #4 |
|
|
Country: (If noted) |
Land Size: |
1.5400 Acres |
||
|
Land Value: 49,896 |
|
|||
|
Sect 33-T12N-R1E Qtr SW |
BILLINGS RIDGEWOOD ESTATES
Block
001
Lot
017
|
|||
| Full Legal Description: BILLINGS RIDGEWOOD ESTATES 001 017 |
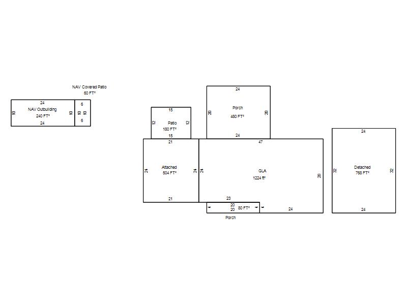
| Photo & Sketch (if available) | Comp Sales (ordered by relevancy) |
|
||||||||||||||||||
|
||||||||||||||||||||
| Value History (*The County Treasurer 405-713-1300 posts & collects actual tax amounts. Contact information HERE) | |||||||||||||
|---|---|---|---|---|---|---|---|---|---|---|---|---|---|
| Year | Market Value | Taxable Mkt Value | Gross Assessed | Exemption | Net Assessed | Millage | Est. Tax | Tax Savings | |||||
|
2025 |
239,500 |
82,745 |
9,101 |
1,000 |
8,101 |
117.21 |
$950 |
$2,138 |
|||||
|
2024 |
202,500 |
82,745 |
9,101 |
1,000 |
8,101 |
116.35 |
$943 |
$1,649 |
|||||
|
2023 |
202,000 |
82,745 |
9,101 |
1,000 |
8,101 |
117.10 |
$949 |
$1,653 |
|||||
|
2022 |
185,500 |
82,745 |
9,101 |
1,000 |
8,101 |
115.17 |
$933 |
$1,417 |
|||||
|
2021 |
152,500 |
82,745 |
9,101 |
1,000 |
8,101 |
115.06 |
$932 |
$998 |
|||||
| Property Account Status/Adjustments/Exemptions | ||
|---|---|---|
| Account # | Exemption Description | Amount |
|
R192011160 |
Freeze Senior Valuation |
0 |
|
R192011160 |
3% Cap Homestead |
0 |
|
R192011160 |
Homestead |
1,000 |
| Property Deed Transaction History (Recorded in the County Clerk's Office) | |||||||
|---|---|---|---|---|---|---|---|
| Date | Type | Book | Page | Price | Grantor | Grantee | |
|
8/1/1975 |
|
Historical |
$0 |
|
NICHOLS GEORGE A & BARBARA A |
||
| Last Mailed Notice of Value (N.O.V.) Information/History | ||||||||
|---|---|---|---|---|---|---|---|---|
| Year | Date | Market Value | Taxable Market Value | Gross Assessed | Exemption | Net Assessed | ||
|
2025 |
01/31/2025 |
239,500 |
82,745 |
9,101 |
1,000 |
8,101 |
||
|
2024 |
01/22/2024 |
202,500 |
82,745 |
9,101 |
1,000 |
8,101 |
||
|
2023 |
01/23/2023 |
202,000 |
82,745 |
9,101 |
1,000 |
8,101 |
||
|
2022 |
02/22/2022 |
185,500 |
82,745 |
9,101 |
1,000 |
8,101 |
||
|
2021 |
02/24/2021 |
152,500 |
82,745 |
9,101 |
1,000 |
8,101 |
||
| Property Building Permit History | ||||||
|---|---|---|---|---|---|---|
| Issued | Permit # | Provided by | Bldg # | Description | Est Construction Cost | Status |
|
10/2/1991 |
10261782 |
OKLAHOMA CITY |
1 |
Storage Buil |
3,000 |
Inactive |
| Click button on building number to access detailed information: | ||||||
|---|---|---|---|---|---|---|
| Bldg # | Vacant/Improved Land | Bldg Description | Year Built | SqFt | # Stories | |
|
1 |
Improved |
Ranch 1 Story |
1975 |
1,224 |
1 Stories |
|